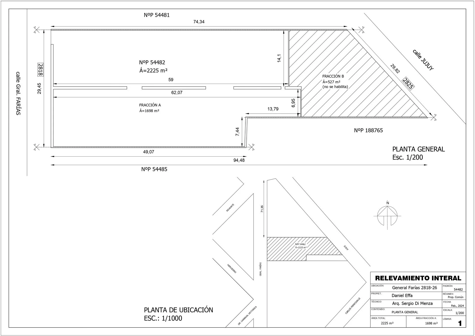
Bella Vista, General Farias 2800

$ 80,000

R$ ~10,800

Banheiros

1

M² construído

1700

Tipo de propriedade

Terra

mais do que

2 meses

Visualizações

253

Alquiler Terreno De 1700 M2 En Barrio Bella Vista

Corredor Responsable: -
Contacto: Fernando Pini
Alquiler de un terreno de 1700 m2 sobre la calle Gral Farias esq. Jujuy

Ancho: 30 m2
Largo: 56 m2

El terreno se encuentra totalmente cercado con muros laterales y frontales, con acceso por portón de hierro.

Se puede acordar la realización de mejoras (por ejemplo, techo) según las necesidades del arrendatario.

Cada Oficina es de propiedad, gestión y desarrollo independiente
La presente publicación describe las características esenciales del inmueble, debiéndose consultar al responsable de la operación por la eventual actualización de las medidas, descripciones arquitectónicas y funcionales, servicios, impuestos, precios y demás información, cuyos valores son aproximados.

Detalhes da propriedade

ID

Tipo de propriedade

Tipo de operação

M² construído

1207940

Terra

Aluguel

1700

M² da terra

Banheiros

Referência

Atualizada

17002

1

XDF5E1

2025-08-05

Localização

80к $

Localização

Montevideo

Endereço

Bella Vista, General Farias 2800

Ações Adicionais

RE/MAX Focus
099...377
598...377
Objeto similar
Carregando...
Ganhe dinheiro indicando colegas!

Convide outros corretores de imóveis e ganhe 10% de comissão por cada promoção que fizerem.