Paso de la Arena, Juan Burghi 2500

U$S 46,400

R$ ~249,000 / + U$S 6 gastos comuns

Banheiros

1

M² construído

18000

Ano de construção

2023

Tipo de propriedade

Outro

mais do que

7 meses

Visualizações

646

Alquiler Deposito Logístico, Paso De La Arena, Montevideo

Depósito, Montevideo

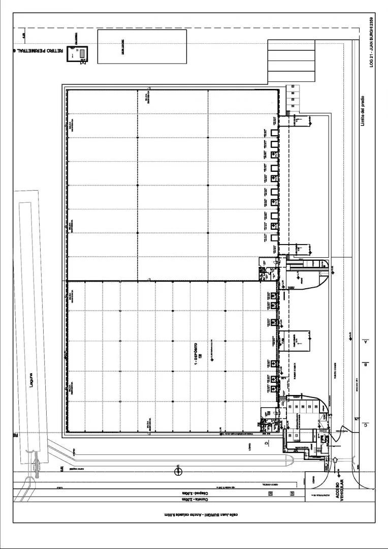
 Es un polo logístico ubicado sobre el corredor de Ruta 1, a solo 12 km del Puerto de Montevideo. Cuenta con 42.0360 m2 de terreno. Actualmente está construida la etapa 1 (4.685 m2) y se encuwntra alquilada y la etapa 2 (Nave 2) (5.950 m2) disponible en alquiler parabocupar en julio del 2025, sumando entre ambas 10.600 m2 totales construidos. Se construirán en tres etapas completando 18.500 m2 de naves de alta calidad para ser arrendadas a empresas de primer nivel. Actualmente se encuentra alquilada una de las naves y se ofrece la segunda.

Ubicado en la calle Juan Burghi, donde están instaladas importantes empresas tales como: Caterpillar (H. Petersen), PepsiCo, Tornometal, Volvo y Maersk. A menos de 500 metros sobre Ruta 1 se encuentra la planta del Diario el País.

Cuenta con proyecto hidráulico aprobado por la Intendencia Municipal de Montevideo a efectos de amortiguar pluviales en la laguna construida en un sector de este predio. También cuenta con Estudio de Impacto Ambiental aprobado por IMM.

Cuenta con excelente playa de maniobras de 1.800 m2 en hormigón de 20 cm de espesor y muy buenos accesos para transporte pesado.

Características de la nave:

- Altura mínima bajo viga: 12 m.

- Altura máxima en cumbrera: 15 m.

- Estructura metálica en alma llena.

- Muro perimetral de bloques de hormigón de 2,50 m de altura.

- Chapa lateral de 0,5 mm con aislación de lana de vidrio de 50 mm de espesor.

- Cubierta de chapa galvanizada U-45 de 0,7 mm de espesor conformada "in situ" en todo el rango del faldón con el sistema engrafado, constituyendo una cubierta 100% estanca.

- Estructura y cubierta preparadas para instalación de paneles solares.

- Aislación de cubierta en lana de vidrio de 80 mm de espesor con polipropileno blanco.

- Piso interno de hormigón de alta calidad de 18 cm de espesor, con colocación de film de polietileno 200 micrones, tendido de hormigón con enrasadora "Laser Screed" de resistencia característica 30 mpa a los 28 días, colocación de fibras estructurales plásticas para control de movimientos de retracción y expansión, distribución de capa de endurecedor superficial no metálico con dosificadora "Topping Spreader".

- 1 puerta de carga y descarga Dock Altura mínima bajo viga de 12mtrs.

- 2 rampas de acceso de maquinaria de 2,80 x 3,30 con cierre automatizado.

- Oficinas de 49 m2 en planta, con 2 baños con duchas, vestuarios y comedor, y posibilidad de construir hasta 700 m2 adicionales de oficinas en entrepiso sobre docks.

- Sistema de protección contra incendios.

- Seguridad 24 x 7. Videovigilancia en todo el predio (perímetro y acceso).

Costo de alquiler por m2:

- Depósito U$S 8

- Gatos comunes U$S 1,2

- Estacionamiento y playa exclusiva U$S 1,3

Condiciones:

Contrato mínimo de 3 años, ajustable por inflación de EEUU. Garantía

Consulte por espacios menores o mayores y para visitarlo!
Disponible a partir de Noviembre 2026

Nota Legal: La información contenida en esta publicación ha sido proporcionada por el cliente. Sures Real Estate no se responsabiliza por cualquier cambio o diferencia que pueda existir en los datos suministrados. Honorarios de intermediación para compraventas: 3% + IVA, para alquileres: 1 mes de alquiler + IVA.


.
Caracteristicas: DEPOSITO, CERRAMIENTO PTRAL, CONEXIóN A INTERNET, PORTERIA, SEGURIDAD, LUZ ELECTRICA, TRIFASICA, VIGILANCIA, ESTACIONAMIENTO PARA VISITAS, BARRIO CERRADO

XINTEL (SRS-SRS-11815)

Detalhes da propriedade

ID

Tipo de propriedade

Tipo de operação

M² construído

M² da terra

1141283

Outro

Aluguel

5800

180002

Banheiros

Ano de construção

Gastos comuns

Referência

Atualizada

1

2023

U$S6

T340C0

2025-09-10

Localização

46.4к U$S

Localização

Montevideo

Endereço

Paso de la Arena, Juan Burghi 2500

Ações Adicionais

Sures Real Estate
598...100
598...288
Objeto similar
Carregando...
Ganhe dinheiro indicando colegas!

Convide outros corretores de imóveis e ganhe 10% de comissão por cada promoção que fizerem.