Centro, Alquiler De Oficina En El Centro - Planta Libre 645 M2

U$S 4,800

R$ ~25,200

Banheiros

3

M² construído

775

Ano de construção

1986

Tipo de propriedade

Escritório

mais do que

2 semanas

Visualizações

68

Alquiler De Oficina En El Centro - Planta Libre 645 M2

Alquiler Oficina en el Centro de Montevideo — Planta Exclusiva.

Ubicada en corazón del Centro, esta oficina ofrece una ubicación estratégica, conectividad inmejorable y rodeada de todos los servicios.

Un espacio corporativo único por su tamaño, funcionalidad y posibilidades de adaptación.  Ideal para empresas que necesitan escalar, reorganizar equipos o consolidar operaciones en un solo lugar con imagen corporativa sólida.

Características principales: 

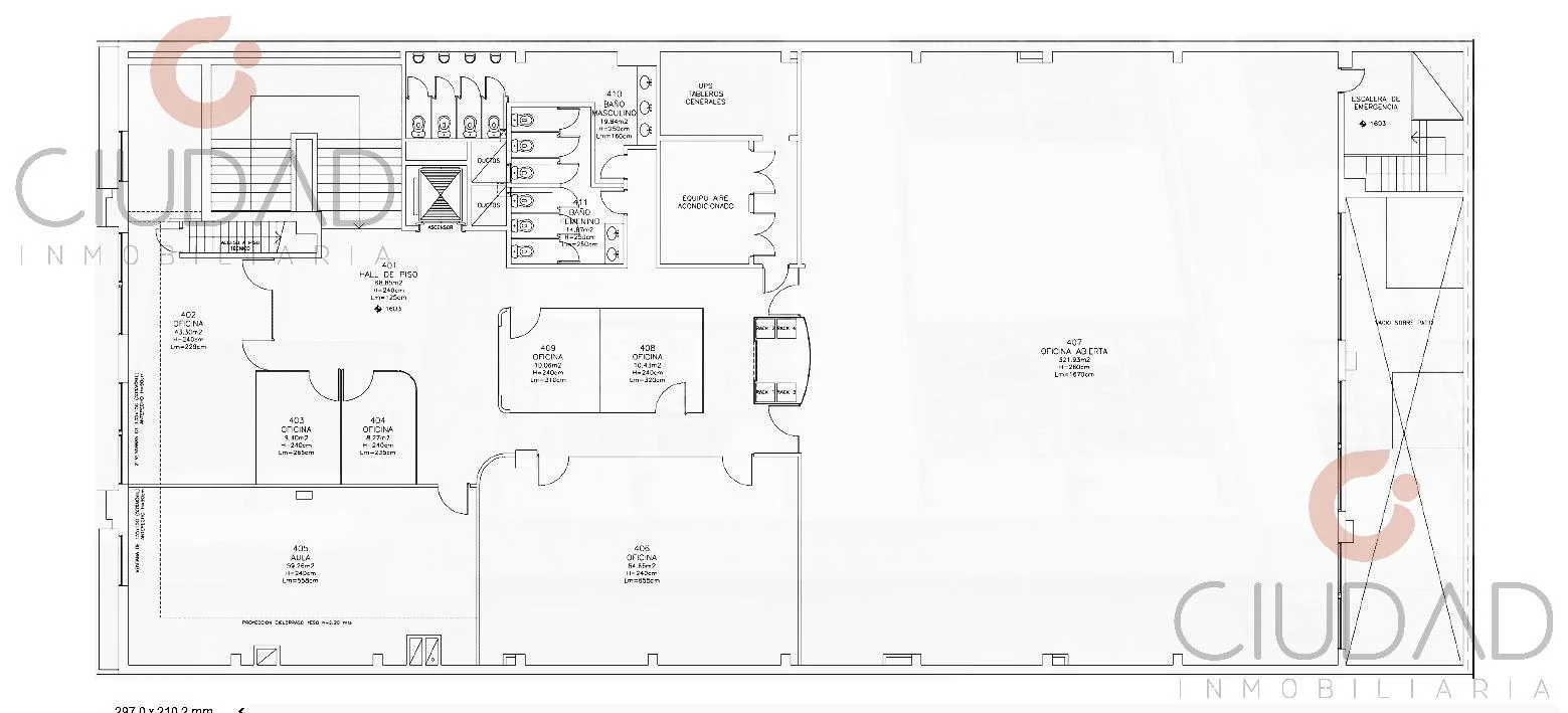
- 645m² en una sola planta

- Piso 4 con ascensor

- Recepción definida

- 6 oficinas privadas

- Gran área de 320m² 

- Baños sectorizados 

- Gran sala de reuniones

- 10 aires acondicionados aires

Tu empresa en el corazón de Montevideo, en un espacio que podés diseñar a tu medida.

¡Contactanos hoy mismo para recibir más información!

Detalhes da propriedade

ID

Tipo de propriedade

Tipo de operação

M² construído

1443697

Escritório

Aluguel

645

Banheiros

Ano de construção

Referência

Atualizada

3

1986

HA7276

2026-03-18

Localização

4.8к U$S

Localização

Montevideo

Endereço

Centro, Alquiler De Oficina En El Centro - Planta Libre 645 M2

Confortos de propriedade

Elevador

Instalação de TV a Cabo

Ações Adicionais

Ciudad Inmobiliaria
+59...424 +59...657
598...657
Objeto similar
Carregando...
Ganhe dinheiro indicando colegas!

Convide outros corretores de imóveis e ganhe 10% de comissão por cada promoção que fizerem.