Colinas de Solymar, Camino De Los Horneros 0

U$S 585,000

R$ ~3,070,000 / U$S 2,208/m2

Quartos de dormir

4

Banheiros

3

Garagem

2

M² construído

265

Ano de construção

2025

Tipo de propriedade

Lar

mais do que

1 mês

Visualizações

135

Venta De Casa De 3 Dormitorios- Cavas De La Tahona

Corredor Responsable: -
Contacto: Ignacio Iccardi
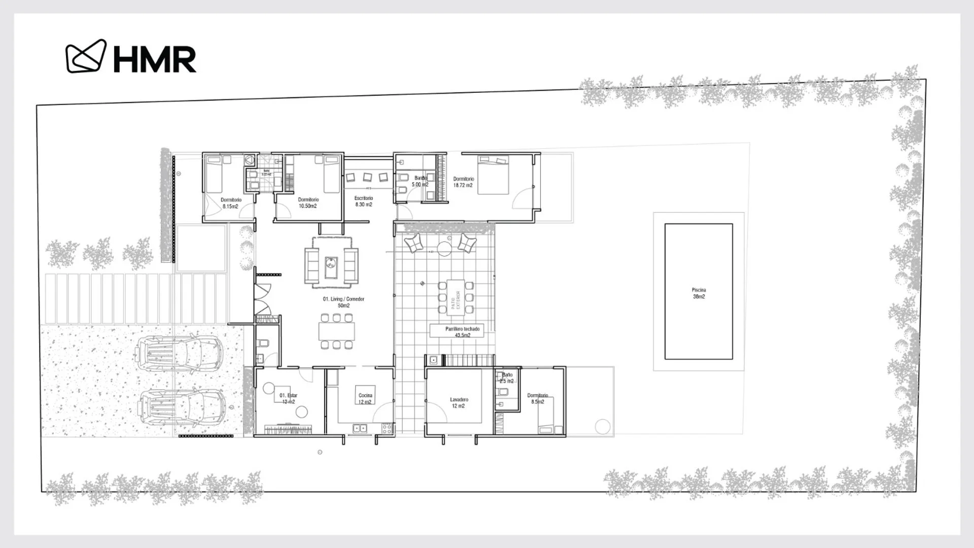
Casa a estrenar en Cavas de la Tahona

Moderna casa de 1 planta desarrollada por HMR, empresa con más de 20 años de experiencia. Ubicada en la primera etapa del barrio, con excelente orientación noreste y vistas únicas hacia Campo de la Tahona y la zona ecuestre.

Superficie total 265 m² (170 m² interiores + 95 m² exteriores). Construcción en Steel Framing, aberturas PVC DVH, previsión de aire acondicionado en todos los ambientes, estufa de alto rendimiento, cochera techada para 2 autos y lavadero independiente.

La casa ofrece un amplio living-comedor con grandes ventanales, salida al jardín, pérgola con parrillero y espacio previsto para piscina. Cocina con isla central, estar definido y toilette.
Área íntima con suite principal, dos dormitorios secundarios y baño completo. Además, dormitorio de servicio con baño.

El comprador puede elegir terminaciones según avance de obra.
No incluye piscina, equipos de aire acondicionado ni placares (opcionales).

Cavas de la Tahona ofrece seguridad 24 hs, transporte privado, naturaleza, vistas increíbles y futuros amenities: club house, piscina, gimnasio, canchas de tenis y pádel, cowork y más.
Cada Oficina es de propiedad, gestión y desarrollo independiente
La presente publicación describe las características esenciales del inmueble, debiéndose consultar al responsable de la operación por la eventual actualización de las medidas, descripciones arquitectónicas y funcionales, servicios, impuestos, precios y demás información, cuyos valores son aproximados.

Detalhes da propriedade

ID

Tipo de propriedade

Tipo de operação

M² construído

M² da terra

Quartos de dormir

1451475

Lar

Oferta

170

2652

4

Banheiros

Garagem

Ano de construção

Referência

Atualizada

3

2

2025

JA360D

2026-03-07

Localização

585к U$S

Localização

Canelones

Endereço

Colinas de Solymar, Camino De Los Horneros 0

Confortos de propriedade

Piscina

Ações Adicionais

RE/MAX
099...994
598...994
Objeto similar
Carregando...
Ganhe dinheiro indicando colegas!

Convide outros corretores de imóveis e ganhe 10% de comissão por cada promoção que fizerem.