Solymar, 16 De Marzo De 1984 700

U$S 175,000

U$S 1,768/m2

Quartos de dormir

2

Banheiros

1

Garagem

1

M² construído

99

Ano de construção

2025

Tipo de propriedade

Lar

mais do que

2 meses

Visualizações

324

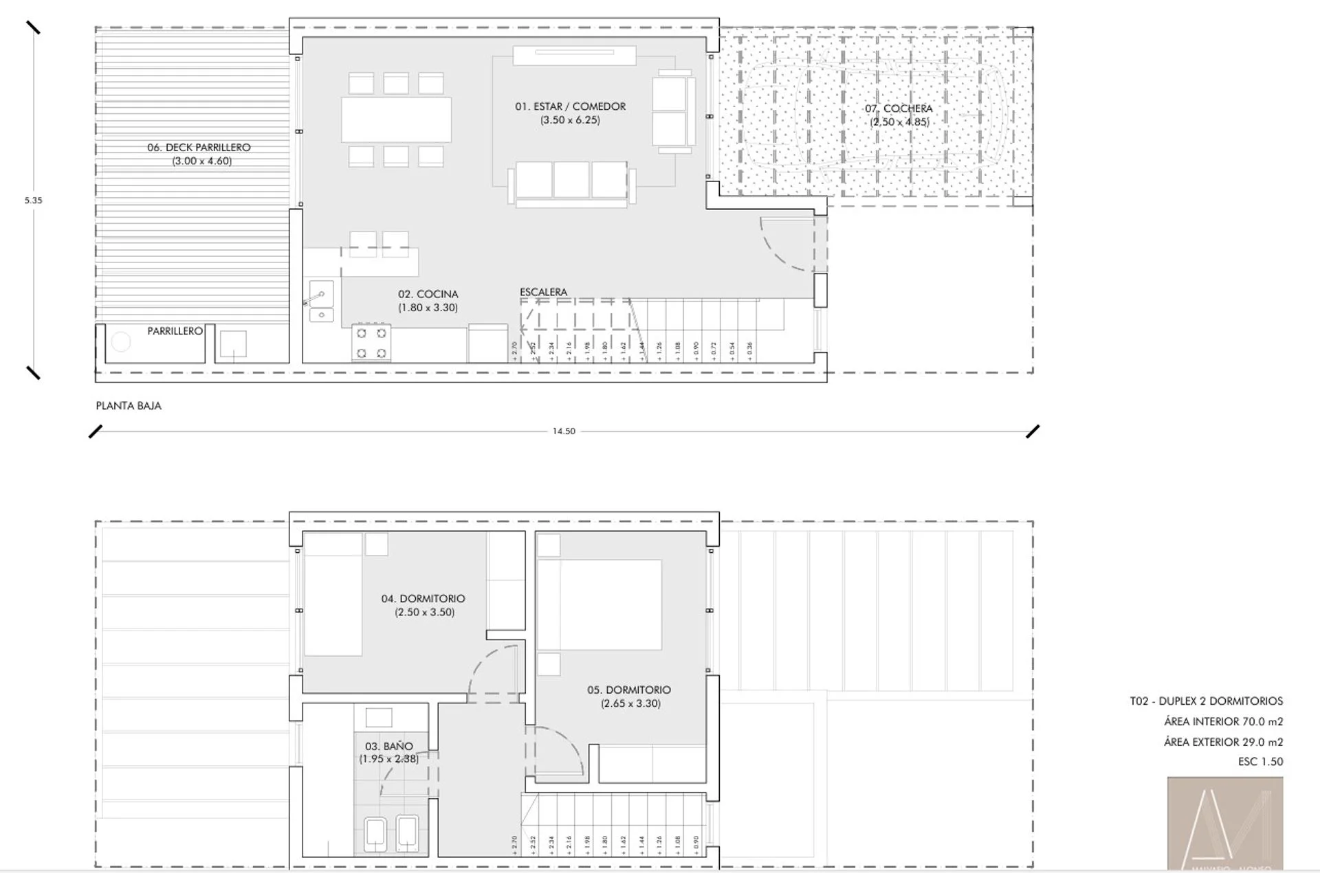
Venta Casa A Estrenar 2 Dormitorios Cochera

Corredor Responsable: -
Contacto: Valeria Cruz
Proyecto exclusivo en Solymar (al sur de Ruta Interbalnearia), muy buena ubicación muy próximo a Car One y Almenara.

Ultima de 2 dormitorios, 1 baños y toillete (actualmente despojador con previsión sanitaria para convertir en baño desp de la final)
Patio con parrillero y cochera exclusiva.
Dormitorios con placares.
Estrena Ya!

Excelentes terminaciones y construcción tradicional.

Acepta Financiación bancaria.


Preinstalación para aire acondicionado.

Beneficios:
Espacios verdes con área de uso común.
Cerramiento perimetral, portón eléctrico.
saneamiento en toda la zona

Conexiones 3%



Cada Oficina es de propiedad, gestión y desarrollo independiente
La presente publicación describe las características esenciales del inmueble, debiéndose consultar al responsable de la operación por la eventual actualización de las medidas, descripciones arquitectónicas y funcionales, servicios, impuestos, precios y demás información, cuyos valores son aproximados.

Detalhes da propriedade

ID

Tipo de propriedade

Tipo de operação

M² construído

M² da terra

Quartos de dormir

1313586

Lar

Oferta

70

992

2

Banheiros

Garagem

Ano de construção

Referência

Atualizada

1

1

2025

B21AAC

2025-11-15

Localização

175к U$S

Localização

Canelones

Endereço

Solymar, 16 De Marzo De 1984 700

Confortos de propriedade

Área de Churrasco

Ações Adicionais

RE/MAX
099001901
Objeto similar
Carregando...
Ganhe dinheiro indicando colegas!

Convide outros corretores de imóveis e ganhe 10% de comissão por cada promoção que fizerem.