Ciudad de la Costa, Interbalnearia Km 23

$ 36,000

Quartos de dormir

2

Banheiros

1

Garagem

2

M² construído

66

Ano de construção

2025

Tipo de propriedade

Lar

mais do que

3 meses

Visualizações

370

Alquiler Casa 2 Dormitorios Lagomar Norte Jardín Cochera

Alquiler de Casa en Ciudad de la Costa, Canelones, Uruguay.

Ubicada en Lagomar norte, sobre Interbalnearia km 23, Manzana 63, Solar 9.
A 550 metros de Almenara Mall (paseo de compras y servicios), lo que brinda excelente conectividad y una amplia variedad de opciones comerciales y recreativas.
1,5 km de Car One, (Gran centro comercial que ofrece diversos servicios: supermercado, tiendas de ropa, decoración, red de cobranza, estación de servicio, entre otros).
2.9 km de Costa Urbana Shopping
3,9 km de la Rambla Costanera

La propiedad se encuentra pronta para ingresar, en excelente estado y todo a estrenar.
Son 56,5 m2 totales de interior, de construcción sólida, realizada con materiales de calidad.
Su orientación norte garantiza una iluminación natural excepcional durante todo el día.

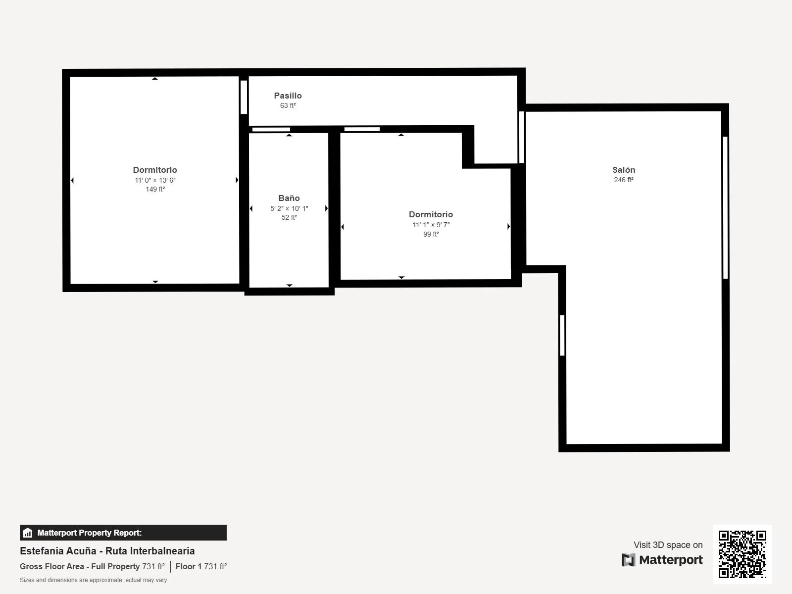
Distribución (una planta):
* Living-comedor con cocina integrada (13,8 m2)
Ubicado al frente con orientación norte. Desde la cocina se accede a un amplio patio interno.
Pisos y una pared revestidos en cerámica. Aberturas de aluminio con hojas corredizas.

*Cocina: Integrada al comedor, con mesada de granito negro, pileta de acero inoxidable y grifería monocomando.
Incluye mueble bajomesada y estanterías aéreas.

*Patio: Acceso desde cocina y living-comedor.
Incluye espacio semicubierto para instalación de lavarropas.

*Baño completo (1,5 x 3 m)
Iluminación y ventilación natural, con extractor instalado.

*Dormitorio 1 (3,3 x 3 m)
Orientación este. Piso cerámico, abertura de aluminio con persiana de PVC.

*Dormitorio 2 (3,3 x 4,1 m)
Orientación este. Piso cerámico, abertura de aluminio con persiana de PVC.

*Otros detalles:
El padrón cuenta con tres casas totalmente independientes, cada una con ingreso exclusivo, sin servicios ni espacios compartidos.
Jardín al frente con piedra partida, cómodo y amplio, con espacio para dos vehículos

Precio de alquiler $36.000
Garantías aseguradoras.

Los datos, disponibilidad y vigencia de las propiedades pueden variar y/o no ser exactos. Los mismos son publicados a modo de referencia y deberán ser confirmados por los inquilinos.
Honorarios inmobiliarios 1 mes de alquiler + IVA.

¡Llámenos para conocer más en detalle esta propiedad!
Tel: 098823891
web: www.estefaniaacuña.uy
Estefanía Acuña

Detalhes da propriedade

ID

Tipo de propriedade

Tipo de operação

M² construído

Quartos de dormir

1263334

Lar

Aluguel

66

2

Banheiros

Garagem

Ano de construção

Referência

Atualizada

1

2

2025

O47EEF

2025-10-06

Localização

36к $

Localização

Canelones

Endereço

Ciudad de la Costa, Interbalnearia Km 23

Confortos de propriedade

Garagem

Água Quente Central

Jardim

Pátio

Ações Adicionais

Properfy
+59899597794
Objeto similar
Carregando...
Ganhe dinheiro indicando colegas!

Convide outros corretores de imóveis e ganhe 10% de comissão por cada promoção que fizerem.