Tres Cruces, Doctor Salvador Ferrer Serra 2200

U$S 420,000

$ ~17,100,000 / U$S 1,203/m2

Baños

1

M² edificados

349

Tipo de Propiedad

Terreno

hace más de

4 semanas

Vistas

89

Venta Terreno Para Desarrollo, Tres Cruces

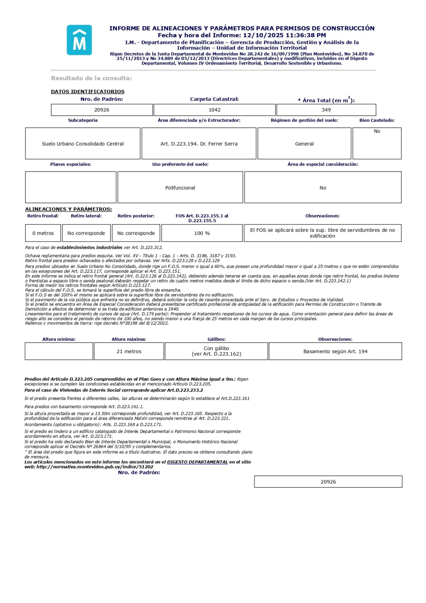
Corredor Responsable: - Contacto: Nicolás Folle Delgado Se vende padrón de 349m2 ubicado sobre Dr. Salvador Ferrer Serra. Oportunidad estratégica en Tres Cruces, una de las zonas de mayor dinamismo residencial e inversión de Montevideo. + Informe de Alineaciones del padrón: Número de padrón: 20926 Terreno: 349 m² / Construido: 153 m² FOS (Factor de ocupación del suelo): 100 % Frente: 9.52m / Profundidad: 36.83m Retiro frontal: 0 m Sin retiro lateral ni posterior Altura máxima: 21 m + opción de gálibo Oportunidad para inversores y desarrolladores: Excelente ubicación, con conectividad de transporte, servicios, comercios y gran demanda de vivienda en altura. Cada Oficina es de propiedad, gestión y desarrollo independiente La presente publicación describe las características esenciales del inmueble, debiéndose consultar al responsable de la operación por la eventual actualización de las medidas, descripciones arquitectónicas y funcionales, servicios, impuestos, precios y demás información, cuyos valores son aproximados.

Detalles de la Propiedad

ID

Tipo de Propiedad

Tipo de Operación

M² del terreno

1451461

Terreno

Venta

3492

Habitaciones

Baños

Referencia

Actualizado

1

1

V99D43

2026-03-03

Ubicación

420к U$S

Ubicación

Montevideo

Dirección

Tres Cruces, Doctor Salvador Ferrer Serra 2200

Acciones Adicionales

RE/MAX
098...878
598...878
Objeto similar
Cargando...
¡Gana dinero refiriendo colegas!

Invita a otros agentes inmobiliarios y gana 10% de comisión por cada promoción que realicen.