U$S 227,000

U$S 791/m2

Dormitorios

5

Baños

3

M² edificados

287

Año de Construcción

1918

Tipo de Propiedad

Casa

hace más de

2 semanas

Vistas

64

Venta Terreno Con 4 Unidades, Ideal Proyecto. Cordon Norte



En venta en CORDON , TERRENO CON 4 UNIDADES EN UN METRAJE de 287mts.

Excelente oportunidad en zona en constante desarrollo, sobre calle Defensa y Justicia.
El terreno cuenta con cuatro propiedades independientes.

Ideal para desarrollo habitacional
Buen metraje y potencial de crecimiento
Entorno con servicios, locomoción y nuevas construcciones en expansión
Ideal para proyectos, buena opción para edificio, reciclar etc.


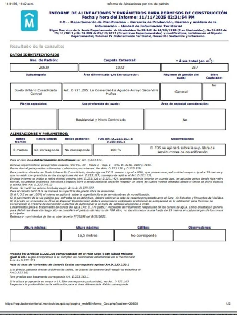
INFORMACION SIG MONTEVIDEO

ÁREA TOTAL: 287 m2.
ALTURA MAXIMA: 16,5 m. (5 Pisos)
FOS: 100%.
RETIRO FRONTAL: No corresponde.
RETIRO LATERAL: No corresponde.
RETIRO POSTERIOR: No corresponde


*NO DUDE EN CONSULTAR*
Comercializa Silvina Pose por CLASS Negocios Inmobiliarios.
Comisión inmobiliaria 3% +IVA

Detalles de la Propiedad

ID

Tipo de Propiedad

Tipo de Operación

M² edificados

Habitaciones

1313871

Casa

Venta

215

6

Baños

Dormitorios

Año de Construcción

Referencia

Actualizado

3

5

1918

VE70C3

2025-11-11

Ubicación

227к U$S

Ubicación

Montevideo

Dirección

Cordón

Comodidades de la propiedad

Parrillero

Acciones Adicionales

Class Negocios Inmobiliarios
099168616
Objeto similar
Cargando...
¡Gana dinero refiriendo colegas!

Invita a otros agentes inmobiliarios y gana 10% de comisión por cada promoción que realicen.