Cordón, Daniel Muñoz 2000

U$S 110,000

U$S 2,391/m2

Baños

1

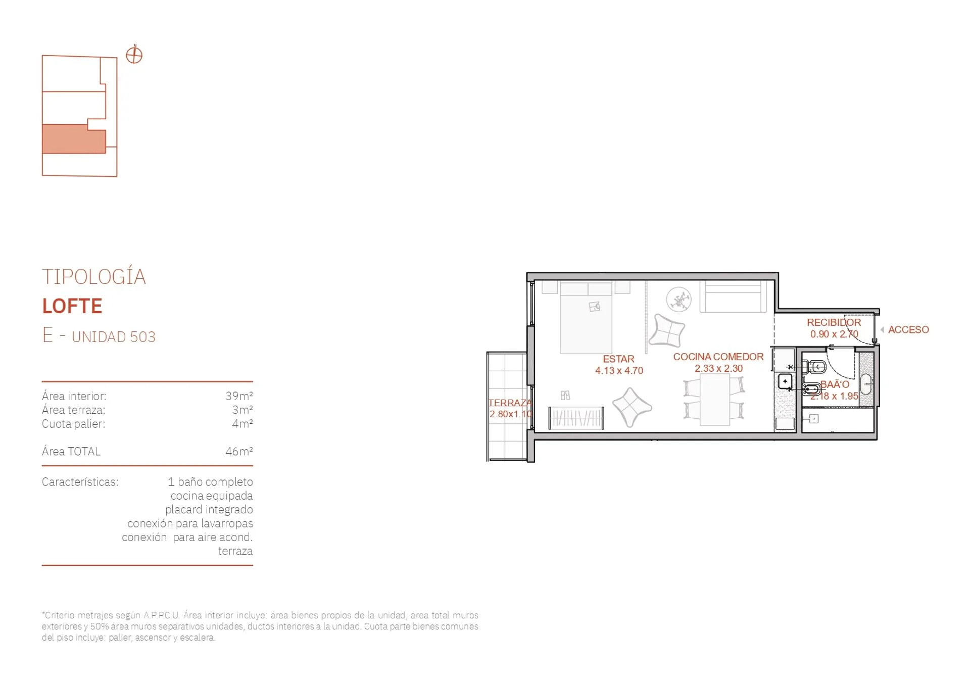
M² edificados

46

Año de Construcción

2025

Tipo de Propiedad

Apartamento

hace más de

2 meses

Vistas

238

Venta Monoambiente. Cordón.

Corredor Responsable: - Contacto: Ana Carol Urciuoli ENTREGANDO EN ESTE MOMENTO!! VENTA AMPLIO MONOAMBIENTE EN CORDÓN CON DIMENCIONES DE 1 DORMITORIO. Excelente asoleamiento, al frente sobre calle Defensa. Construcción tradicional. LEY VIVIENDA PROMOVIDA. Importantes beneficios impositivos. Ideal para renta, ya que no paga IRPF de las rentas durante 10 años. Se vende amplio Monoambiente a estrenar en quinto piso con cocheras opcionales a u$s 13.000 en el edificio MAÓ en construcción, calle Daniel Muñoz esquina Defensa. APARTAMENTO MONOAMBIENTE de 46 m2. CARACTERÍSTICAS: Quinto piso 1 baño completo Cocina equipada con aéreo y bajo mesada Placard integrado conexión para lavarropas y aire acondicionado terraza Consiste en un edificio de 20 apartamentos, ocho cocheras y un local comercial localizado en la Calles Daniel Muñoz y Defensa, en el barrio Cordón de la ciudad de Montevideo. Se desarrolla en un bloque en una estructura de hormigón armado y mampostería de bloques de hormigón celular curado en autoclave. Revestimiento exterior en hormigón y ladrillo. Aberturas de aluminio anodizado negro y barandas de terrazas en hierro galvanizado pintado negro. Fachada principal con entrada sobre calle Daniel Muñoz 2053 y entrada para autos sobre calle Defensa. Terminaciones: Cielorrasos: Hormigón visto en área principal Yeso enduído y pintado en baños Paredes: Revoque enduído y pintado Pisos: Porcelanato o Vinílico sistema click SPC Aberturas: Aluminio anodizado negro com vidrio DVH. Carpintería: Mdf con melamínico hecha a medida para cocina y armario calefón Puertas: Mdf con terminación PU Griferías: Monocomandos marca y modelo a definir Loza sanitaria: Color blanco marca y modelo a definir Barandas: Hierro Galvanizado en caliente pintado Equipamiento: Carpintería bajo y sobre mesada en cocinas Previsión para futura instalación de aires acondicionados y lavarropas Amenities: SUM con terraza y parrillero cerrado Solarium con parrillero abierto Bicicletero Cocheras cubiertas para las unidades asignadas Costos de ocupación: 4% Cocheras dobles opcionales disponibles: USD 13.000 Comisión inmobiliaria: 3% mas iva Se encuentra con el 100% de los beneficios de exoneración tributaria de la ley promovida. BENEFICIOS POR LEY: MAÓ es un proyecto desarrollado con los beneficios y exoneraciones tributarias para los compradores previstos por la Ley de Vivienda Promovida. www.anv.gub.uy RENTISTAS: -Exoneración del Impuesto a la Renta de los Alquileres por 10 años (IRPF/IRAE ó IRNR). CONSUMIDORES FINALES: -Exoneración del ITP (2% sobre el valor de Catastro). -Exoneración del IVA del precio en la primer compra-venta. -Exoneración del Impuesto al Patrimonio por 10 años. Cada Oficina es de propiedad, gestión y desarrollo independiente La presente publicación describe las características esenciales del inmueble, debiéndose consultar al responsable de la operación por la eventual actualización de las medidas, descripciones arquitectónicas y funcionales, servicios, impuestos, precios y demás información, cuyos valores son aproximados.

Detalles de la Propiedad

ID

Tipo de Propiedad

Tipo de Operación

M² edificados

Habitaciones

1261810

Apartamento

Venta

46

1

Baños

Año de Construcción

Referencia

Actualizado

1

2025

CF9EFE

2025-09-26

Ubicación

110к U$S

Ubicación

Montevideo

Dirección

Cordón, Daniel Muñoz 2000

Acciones Adicionales

RE/MAX Focus
Objeto similar
Cargando...
¡Gana dinero refiriendo colegas!

Invita a otros agentes inmobiliarios y gana 10% de comisión por cada promoción que realicen.