La Blanqueada, Carlos Anaya 2600

U$S 112,000

$ ~4,470,000 / U$S 2,732/m2

Baños

1

M² edificados

41

Año de Construcción

2025

Tipo de Propiedad

Apartamento

hace más de

4 meses

Vistas

394

Venta Monoambiente Con Patio La Blanqueada Rentado

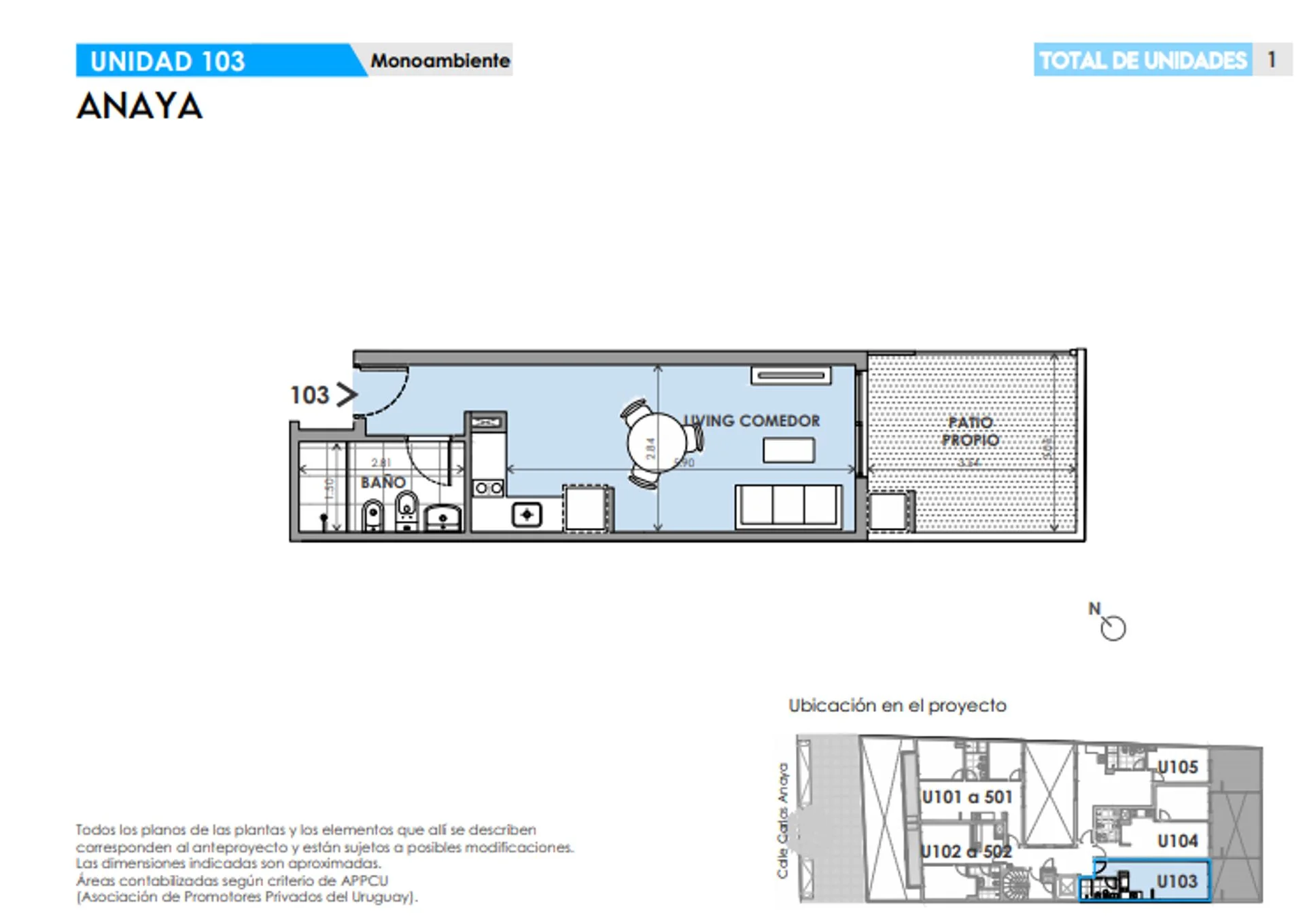
Corredor Responsable: - Contacto: Mónica Volkmann Bares Venta precioso monoambiente semi equipado, con amplio patio, y en una excelente ubicación en La Blanqueada, Carlos Anaya entre Av. Garibaldi y Ramón y Cajal. Se estrenó fines de abril 2025, se vende con excelente renta y listo para escriturar! Alquilado en $24.500 mensuales Exonera pago de IRPF sobre renta por 10 años Gastos comunes $2.800 mensuales No cuenta con fondo de reserva (tiene garantía constructiva) Plazo contrato 2 años Finalización Abril 2027 Garantía Porto Seguros La unidad publicada se trata de un apartamento de tipología monoambiente con patio (unidad 103), situada al contra frente en primer piso, orientación Suroeste, y se rentó semi equipado: horno eléctrico empotrado, anafe vitrocerámico dos hornallas, campana de cocina, aire acondicionado 12.000 btu Inverter Airway con Wifi, calefón 30 lts, mampara blindex baño y otros accesorios; cuenta con previsión para instalación de lavarropas en el patio; puerta reja en patio y cerca eléctrica perimetral en el Edificio; el Edificio cuenta con rooftop (nivel 6) con parrilleros de uso común Se emplaza en un edificio de 5 pisos con una inmejorable ubicación en La Blanqueada, zona en pleno crecimiento, amparado bajo la Ley de Vivienda Promovida, es una muy atractiva oportunidad para quien busca rentabilidad. Rodeado de variedad de servicios, muy buen trasporte a todas partes de la capital así como una distancia a pie de los siguientes puntos de referencia: 2\\\ Universidad Católica 2\\\ del Gran Parque Central 8\\\ Parque Batlle y Ordóñez 10\\\ Estadio Centenario 10\\\ Terminal de Ómnibus y Shopping Tres Cruces Dirección: Carlos Anaya 2662 entre Avda. Garibaldi y Ramón y Cajal COMPARTIMOS CON TODOS LOS COLEGAS COMISION INMOBILIARIA 3% MAS IVA SOBRE PRECIO DE VENTA Cada Oficina es de propiedad, gestión y desarrollo independiente La presente publicación describe las características esenciales del inmueble, debiéndose consultar al responsable de la operación por la eventual actualización de las medidas, descripciones arquitectónicas y funcionales, servicios, impuestos, precios y demás información, cuyos valores son aproximados.

Detalles de la Propiedad

ID

Tipo de Propiedad

Tipo de Operación

M² edificados

Habitaciones

1224922

Apartamento

Venta

41

1

Baños

Año de Construcción

Referencia

Actualizado

1

2025

O4119F

2025-08-22

Ubicación

112к U$S

Ubicación

Montevideo

Dirección

La Blanqueada, Carlos Anaya 2600

Comodidades de la propiedad

Parrillero

Acciones Adicionales

RE/MAX Focus
092...422
598...422
Objeto similar
Cargando...
¡Gana dinero refiriendo colegas!

Invita a otros agentes inmobiliarios y gana 10% de comisión por cada promoción que realicen.