La Blanqueada, 8 Monte Caseros

U$S 429,000

$ ~17,200,000 / U$S 3,488/m2

Baños

1

M² edificados

123

Año de Construcción

2026

Tipo de Propiedad

Local Comercial

hace más de

4 meses

Vistas

498

Venta - Local Comercial - En ConstrucciÓn -la Blanqueda

Workplace Real Estate ofrece:
LOCAL COMERCIAL EN EXCELENTE UBICACIÓN.
En La Blanqueada se ubica este excelente local con 123 metros cuadrados, apto para todo rubro.
Proyecto localizado en una arteria principal.

EL LOCAL DISPONE DE:
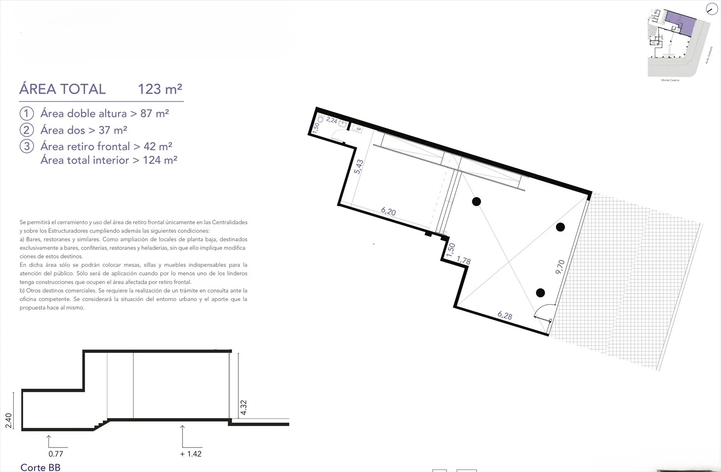
Área total: 123 m2:
Área doble altura > 87 m2
Área dos > 37 m2
Área retiro frontal > 42 m2
Área total interior > 123 m2

- 1 Baño
- 1 cocina

*ENTREGA 2026*
**GASTOS DE OCUPACIÓN 4% (Incluye conexiones, reglamentos y planos)
CONSULTE: En WORKPLACE REAL ESTATE Somos especialistas en inmuebles corporativos.

* La información contenida en el presente documento ha sido proporcionada íntegramente por el/los propietarios del inmueble. WRE no garantizar la exactitud o exhaustividad de la información aquí recogida, ni se responsabiliza por las diferencias o modificaciones que puedan surgir a partir de esta publicación.
* Honorarios por intermediación: 3% + IVA para operaciones de compra-venta. Un mes de alquiler + IVA para operaciones de alquiler
(CW237018)

Detalles de la Propiedad

ID

Tipo de Propiedad

Tipo de Operación

M² edificados

M² del terreno

1235616

Local Comercial

Venta

123

1242

Habitaciones

Baños

Año de Construcción

Referencia

Actualizado

1

1

2026

G31A57

2025-09-10

Ubicación

429к U$S

Ubicación

Montevideo

Dirección

La Blanqueada, 8 Monte Caseros

Acciones Adicionales

Workplace Real Estate
097...030 099...656
598...030
Objeto similar
Cargando...
¡Gana dinero refiriendo colegas!

Invita a otros agentes inmobiliarios y gana 10% de comisión por cada promoción que realicen.