Cordón, Juan Paullier 1400

U$S 128,018

U$S 1,422/m2

Dormitorios

1

Baños

1

M² edificados

90

Año de Construcción

2025

Tipo de Propiedad

Apartamento

hace más de

3 meses

Vistas

240

Venta 1 Dormitorio Cordon, 2 Terrazas Construccion

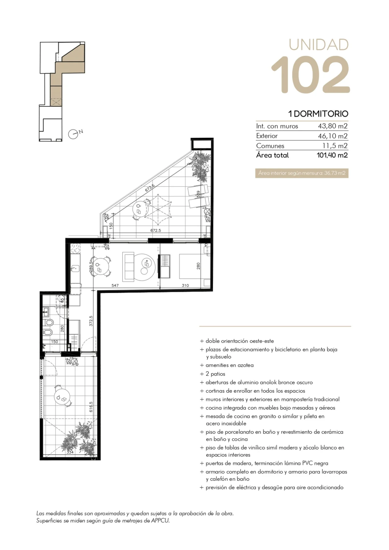
Corredor Responsable: - Contacto: Silvina Viola DEPARTAMENTO DE UN 1 DORMITORIO CON 2 TERRAZAS EN VENTA EN CORDÓN, MONTEVIDEO - EN POZO Departamento 1 dormitorio ubicado sobre la calle Juan Paullier, en el barrio de Cordón, Montevideo. Situado en el piso 1 de un edificio de 10 pisos. Cuenta con una superficie total construida de 43,80 mts. internos y 46,10 exteriores : una terraza al frente (con desagüé para lavarropa) y una terraza al fondo. (Ver plano). Distribuido en living con cocina integrada al frente. Terraza al frente. 1 baño, 1 Dormitorio con armario completo y otro independiente para el calefon. Muros interiores en mampostería tradicional. Cocina integrada con muebles bajo mesada y aéreos. . Previsión eléctrica para desagüe para aire acondicionado. AMENITIES - Salón cerrado con parrillero, kitchenette, y equipamiento de uso común. - Amplias terrazas. - Laundry. Todos los beneficios fiscales de la Ley de Promoción de Vivienda COSTOS - Comisión inmobiliaria: 3% + IVA - Gastos de ocupación: 4% - Garajes disponibles por U$S 19.000(2-3-9-10) y U$S 21.000 (1-8) FORMA DE PAGO - Compromiso 40% - Cuotas obra 50% - Ocupación 10% Entrega prevista : MARZO 2027 Desarrolla Bangkok Group. Compartimos con todos los colegas inmobiliarios. No dudes en consultarnos! Cada Oficina es de propiedad, gestión y desarrollo independiente La presente publicación describe las características esenciales del inmueble, debiéndose consultar al responsable de la operación por la eventual actualización de las medidas, descripciones arquitectónicas y funcionales, servicios, impuestos, precios y demás información, cuyos valores son aproximados.

Detalles de la Propiedad

ID

Tipo de Propiedad

Tipo de Operación

M² edificados

Habitaciones

1262017

Apartamento

Venta

90

2

Baños

Dormitorios

Año de Construcción

Referencia

Actualizado

1

1

2025

ZA50C1

2025-10-14

Ubicación

128.0к U$S

Ubicación

Montevideo

Dirección

Cordón, Juan Paullier 1400

Acciones Adicionales

RE/MAX
099001901
Objeto similar
Cargando...
¡Gana dinero refiriendo colegas!

Invita a otros agentes inmobiliarios y gana 10% de comisión por cada promoción que realicen.