Cordón, José Enrique Rodó & Acevedo Díaz

U$S 92,000

$ ~3,670,000 / U$S 3,172/m2

Baños

1

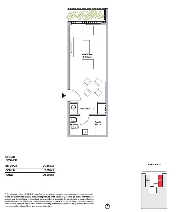
M² edificados

29

Año de Construcción

2025

Tipo de Propiedad

Apartamento

hace más de

3 meses

Vistas

494

Venta De Monoambiente En Doo Rodó En Cordón

Monoambiente en venta en Doo Rodó, ubicado en Cordón Sur, Rodó y Acevedo Díaz, a pasos de universidades, del centro y con excelente locomoción.

Un edificio de diseño contemporáneo, con espacios confortables y luminosos. Un proyecto de calidad arquitectónica, que suma a su privilegiada ubicación, importantes beneficios.
Con terminaciones de calidad, desarrollado en 6 niveles, con 42 apartamentos de 1 y 2 dormitorios, más 23 garajes.

Todos los apartamentos contarán con una gran luminosidad y disfrutan de la luz del sol a través de amplios ventanales y terrazas.
A cuadras de los principales espacios verdes de la ciudad como la rambla y el Parque Rodó; a pasos de la movida gastronómica de la zona.

Funcional monoambiente en planta baja al frente con orientación norte.

Contará con Variedad de amenities: salón de Usos Múltiples con espectaculares vistas a la ciudad. Con parrillero, baño y kitchenette. Gimnasio. Bicicletas para moverte en el barrio, laundry. Seguridad Integral con CCTV y portero eléctrico con control de acceso.

A estrenar en Agosto 2026.
Amparado por la Ley de Vivienda Promovida.

El precio no incluye los gastos de ocupación del 4% ni los honorarios del 3% + IVA.

¡Consultanos!


REF: P001743

Detalles de la Propiedad

ID

Tipo de Propiedad

Tipo de Operación

M² edificados

M² del terreno

1238918

Apartamento

Venta

26

292

Habitaciones

Baños

Año de Construcción

Referencia

Actualizado

1

1

2025

I5525D

2025-09-07

Ubicación

92к U$S

Ubicación

Montevideo

Dirección

Cordón, José Enrique Rodó & Acevedo Díaz

Comodidades de la propiedad

Ascensor

GYM

Lavandería

Salón de uso común

Acciones Adicionales

PROP
092...222
598...222
Objeto similar
Cargando...
¡Gana dinero refiriendo colegas!

Invita a otros agentes inmobiliarios y gana 10% de comisión por cada promoción que realicen.