Pocitos, Doctor Enrique Muñoz 900

U$S 42,000

U$S 2,100/m2

Baños

1

M² edificados

20

Año de Construcción

2022

Tipo de Propiedad

Negocio Especial

hace más de

1 semana

Vistas

35

Venta De Cochera Amplia A Metros De Ort, Pocitos.

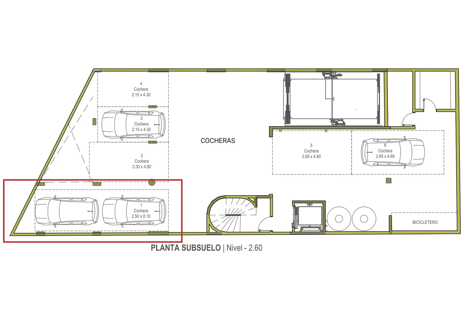
Corredor Responsable: - Contacto: Gabriela Sierra Venta de cochera en un punto de gran demanda en el barrio de Pocitos. Ubicado en el edificio Yass Pocitos sobre la calle Enrique Muñoz. Zona de colegios y Universidades, con alta demanda de estacionamientos. Cochera ubicada en el subsuelo del edificio. El acceso a la misma es través del portón exterior del edificio y cuenta con un ascensor montacargas que conecta con los distintos niveles de estacionamiento. Dimensiones: 2.5 x 8.10 Gastos comunes: $ 3.390 Tributos domiciliarios bimensuales: $ 1.558 Contribución anual: $ 1600 Consulte por bauleras disponibles. Cada Oficina es de propiedad, gestión y desarrollo independiente La presente publicación describe las características esenciales del inmueble, debiéndose consultar al responsable de la operación por la eventual actualización de las medidas, descripciones arquitectónicas y funcionales, servicios, impuestos, precios y demás información, cuyos valores son aproximados.

Detalles de la Propiedad

ID

Tipo de Propiedad

Tipo de Operación

M² edificados

Habitaciones

1335959

Negocio Especial

Venta

20

1

Baños

Año de Construcción

Referencia

Actualizado

1

2022

I2C221

2025-12-04

Ubicación

42к U$S

Ubicación

Montevideo

Dirección

Pocitos, Doctor Enrique Muñoz 900

Acciones Adicionales

RE/MAX
099001901
Objeto similar
Cargando...
¡Gana dinero refiriendo colegas!

Invita a otros agentes inmobiliarios y gana 10% de comisión por cada promoción que realicen.