Bella Vista, A 250 M. De Agraciada

U$S 118,000

$ ~4,790,000 / U$S 1,035/m2

Dormitorios

1

Baños

1

M² edificados

114

Año de Construcción

2017

Tipo de Propiedad

Casa

hace más de

1 mes

Vistas

180

Venta De Casa Padrón único De 1 Dormitorio En Bella Vista. Calle Progreso.

Venta de casa padrón único de 1 dormitorio en Bella Vista. A 250 m de Agraciada

Multimedia disponible (solicitar link):
- Fotos profesionales.
- Video HD
- Recorrido virtual.
- Amoblamiento virtual de referencia.
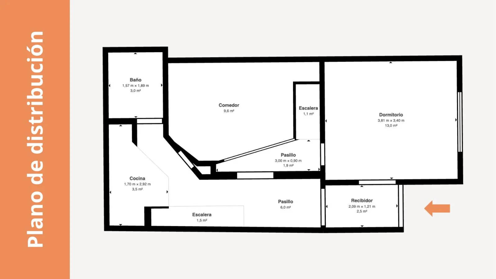
- Plano de distribución.

General
Padrón único.
Terreno de 53 m2.
Superficie cubierta de 61 m2 aprox. más 53 m2 aprox. de azotea transitable. En 1 planta con entrepiso.
Construcción de 1928. Reciclada en 2009. Muy buen estado general.
Electricidad a nuevo.
Terraza impermeabilizada alto transito
Cañería termofusión nueva al igual que desagües y conexiones.
Sin garaje. Existen garajes en venta y alquiler en los alrededores.
Ubicación en planta: al frente.

Living-comedor:
Ambiente principal desarrollado en doble altura con entrepiso de madera, pisos de madera en buen estado, aberturas originales de madera con vidrio repartido y rejas, ingreso de luz natural a través de claraboya central, iluminación empotrada en cielorraso, baranda de madera maciza y estructura metálica en escalera.

1 dormitorio:
Dormitorio al frente con ventana de madera con postigos y reja, pisos de madera originales, muros con terminación texturada, buena ventilación natural y dimensiones aptas para cama matrimonial y placard.

1 baño:
Baño completo en planta baja, con ducha y mampara de aluminio, revestimientos cerámicos en paredes, piso cerámico, sanitario y lavatorio actualizados, instalación para calefón.

Cocina independiente.
Cocina definida, con mesada de granito, mueble bajo mesada en madera, revestimiento cerámico en paredes, extractor de acero inoxidable, piso cerámico, conexión a gas por garrafa. Sector contiguo con instalación para lavarropas y salida a azotea transitable.

Otras consideraciones:
Ingreso con puerta principal de época en madera.
Pasillo central con claraboya que aporta iluminación natural constante.
Entrepiso estructural de madera que amplía superficie útil y genera estar o escritorio.
Azotea transitable de uso exclusivo, con superficie continua y potencial recreativo.
Estructura tradicional en muros portantes de mampostería y cubierta plana impermeabilizada.
Sin gastos comunes.

Contribución: $ 2600 anual
Primaria: $ 1600 anual
Tributos domiciliarios: $ 1100 bimensual
Tarifa de saneamiento: $ 700 bimensual

Venta: U$S 118.000. Permuta.
Admite préstamo bancario.

Colegas: esta propiedad se comparte.

Los datos, disponibilidad y vigencia de las propiedades pueden variar y/o no ser exactos. Los mismos son publicados a modo de referencia y deberán ser confirmados por los compradores. Aplica comisión inmobiliaria de 3% + IVA.

Detalles de la Propiedad

ID

Tipo de Propiedad

Tipo de Operación

M² edificados

M² del terreno

Habitaciones

1448496

Casa

Venta

61

532

2

Baños

Dormitorios

Año de Construcción

Referencia

Actualizado

1

1

2017

MA3A7C

2026-03-24

Ubicación

118к U$S

Ubicación

Montevideo

Dirección

Bella Vista, A 250 M. De Agraciada

Comodidades de la propiedad

Agua Caliente Central

Acciones Adicionales

Properfy
59899911900
Objeto similar
Cargando...
¡Gana dinero refiriendo colegas!

Invita a otros agentes inmobiliarios y gana 10% de comisión por cada promoción que realicen.