Carrasco Norte, Capri 2200

U$S 230,000

U$S 2,840/m2

Dormitorios

2

Baños

1

Garaje o Cochera

1

M² edificados

81

Año de Construcción

2026

Tipo de Propiedad

Casa

hace más de

3 semanas

Vistas

52

Venta Casa 2d Cochera Jardin Carrasco Norte - Pozo

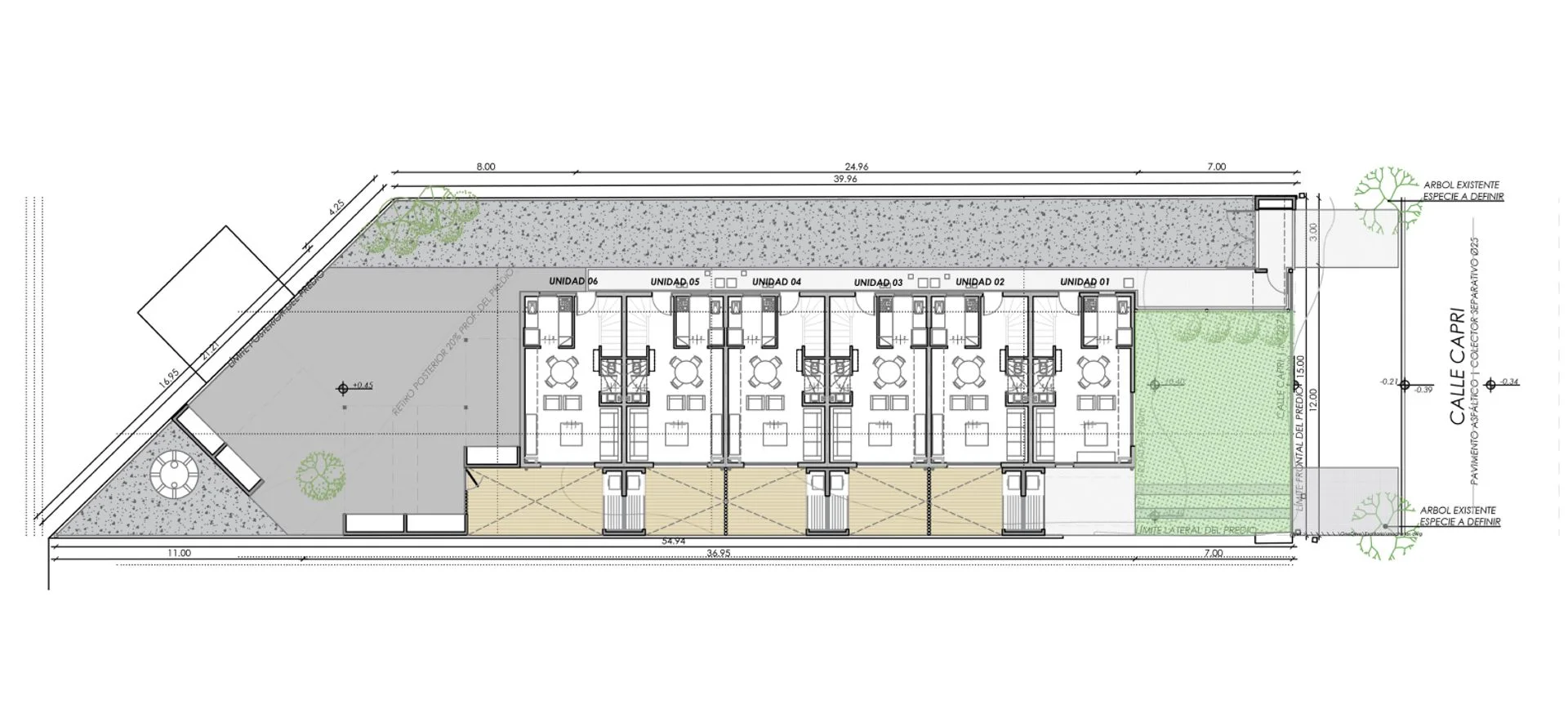
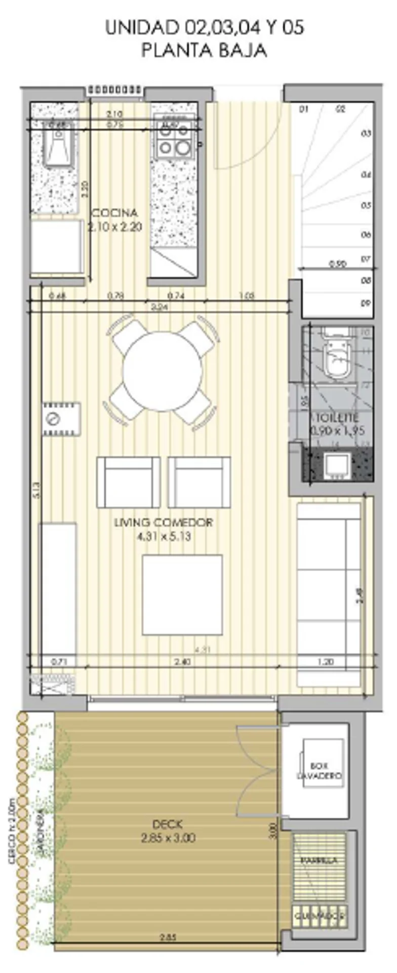
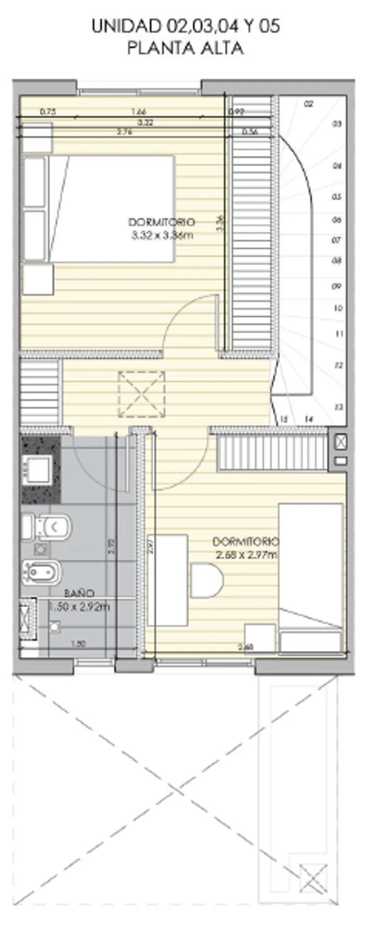
Corredor Responsable: - Contacto: Maria Florencia Fertitta PLAZA CAPRI HOUSING - ESTRENA DICIEMBRE 2026 Ubicado frente a la plaza Capri, en una de las zonas con mayor crecimiento y valorización de Montevideo, ofrece el equilibrio ideal entre tranquilidad, conectividad y entorno natural. El proyecto destaca por sus ambientes luminosos, excelente calidad de terminaciones y una distribución pensada para aprovechar cada metro con funcionalidad y estilo. Cada unidad cuenta con espacios de guardado ampliados, parrillero propio, cochera con box adicional y previsión para cargador de auto eléctrico, reflejando una propuesta moderna, eficiente y adaptada al estilo de vida actual. UNIDADES 002, 003, 005 2 baños completos Living-comedor con estufa de alto rendimiento Cocina integrada con horno, anafe y campana incluidos Patio con deck y parrillero Box exterior + segundo box en cochera Cochera individual con acceso propio Previsión para aire acondicionado en dormitorios y estar Cortinas de enrollar eléctricas en dormitorio principal Aberturas de aluminio negro con DVH (doble vidriado hermético) Pisos vinílicos símil madera y porcelanatos en baños Ideal para familias, parejas o quienes buscan calidad de vida y valorización futura. Forma de Pago 10% reserva 20% promesa 60% en etapas de avance de obra 10% contra entrega Gastos de ocupación: 3% Cada Oficina es de propiedad, gestión y desarrollo independiente La presente publicación describe las características esenciales del inmueble, debiéndose consultar al responsable de la operación por la eventual actualización de las medidas, descripciones arquitectónicas y funcionales, servicios, impuestos, precios y demás información, cuyos valores son aproximados.

Detalles de la Propiedad

ID

Tipo de Propiedad

Tipo de Operación

M² edificados

M² del terreno

Habitaciones

1313900

Casa

Venta

70

812

3

Baños

Dormitorios

Garaje o Cochera

Año de Construcción

Referencia

Actualizado

1

2

1

2026

NE4B92

2025-11-10

Ubicación

230к U$S

Ubicación

Montevideo

Dirección

Carrasco Norte, Capri 2200

Acciones Adicionales

RE/MAX
099001901
Objeto similar
Cargando...
¡Gana dinero refiriendo colegas!

Invita a otros agentes inmobiliarios y gana 10% de comisión por cada promoción que realicen.