Carrasco, Alamos 2200

U$S 158,970

$ ~6,460,000 / U$S 2,650/m2

Dormitorios

1

Baños

1

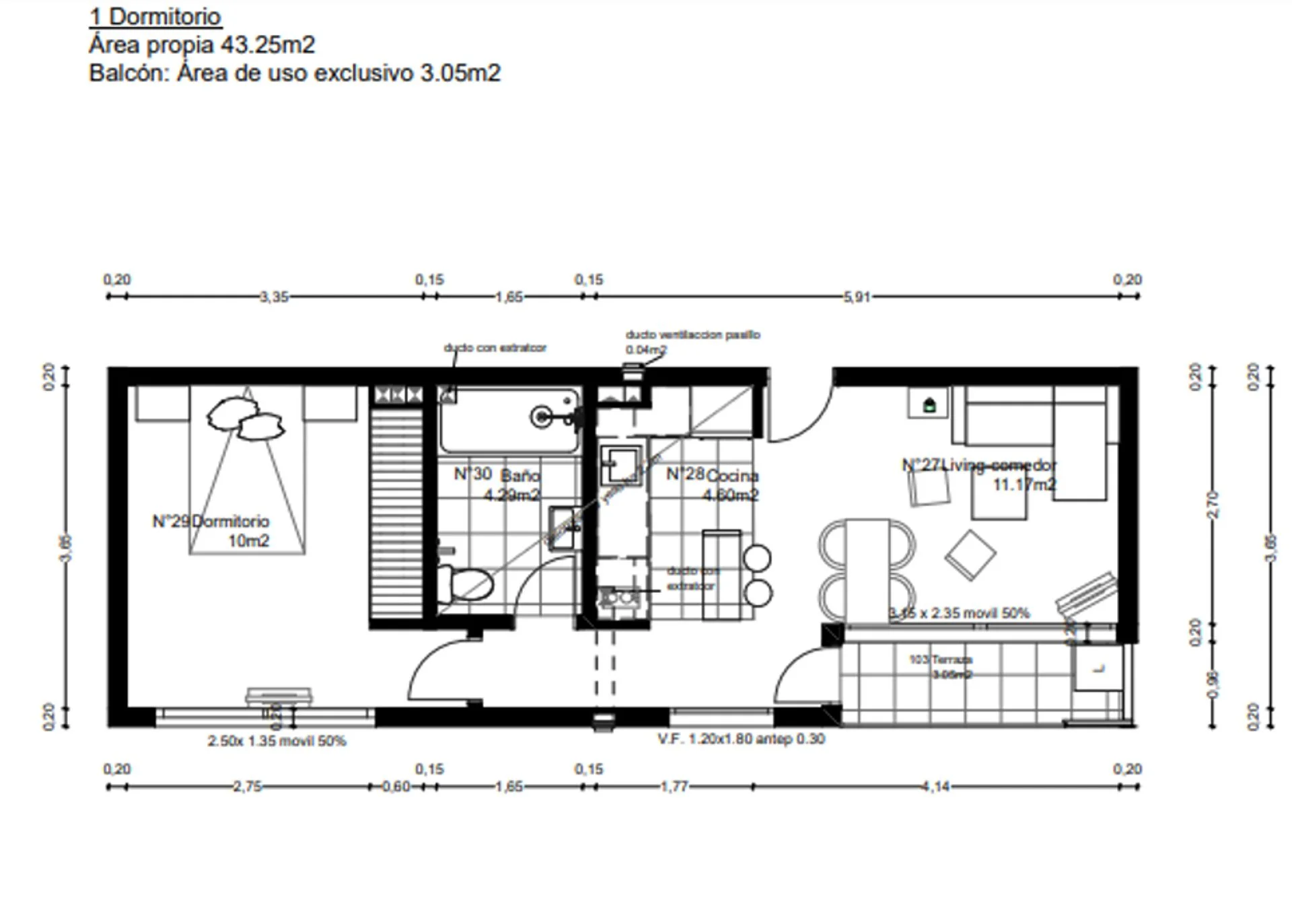
M² edificados

60

Año de Construcción

2026

Tipo de Propiedad

Apartamento

hace más de

1 semana

Vistas

44

Venta Carrasco Apartamento 2 Dormitorios Ley Vis

Corredor Responsable: - Contacto: Norma Bueno Venta Carrasco Parkside! UNIDAD 108 VENTA CON LEY PROMOVIDA DE VIVIENDA Nuevo proyecto ubicado en una de las zonas más exclusivas y deseadas de la ciudad. A metros del Estadio Charrúa y metros de zona de servicios y shoppings de Carrasco. Puntos destacados del proyecto - Excelente ubicación y conectividad, a metros de Portones Shopping. - Terminaciones de gran calidad. - Terrazas o patios propios en cada unidad. - Cocheras opcionales. - Mínimos costos de gastos comunes. - Proyecto promovido por MVOTMA ley 18.795. - Video vigilancia. - Vistas despejadas en todas las unidades. El edificio cuenta con 27 unidades de varias Tipologías, apartamentos de 1, 2 y 3 dormitorios, todos diseñados con acabados de alta gama y atención a cada detalle. Financiación: Flexibilidad en planes de pago y opciones de financiación directa con la desarrolladora. BENEFICIOS FISCALES PARA EL COMPRADOR Ley 18.795 de inversión privada en vivienda de interés social: “Ley de Vivienda Promovida” Exoneración de Impuestos: - Exoneración del IVA en el precio de compra. - Exoneración de ITP por la primera enajenación de la vivienda. o Esto a su vez reduce los costos de escrituración. - Exoneración del Impuesto a la Renta (IRPF/IRAE) de los alquileres por 10 años. - Exoneración del Impuesto al Patrimonio por 10 años. Plusvalía: Una inversión segura en una zona con alta demanda y constante revalorización, asegurando una excelente rentabilidad a futuro. El edificio cuenta con: Cocheras abiertas: U$S 21000 Cocheras techadas U$S 25200 Cocheras grandes U$S 27825 Gastos de conexión 4% No pierdas la oportunidad de ser parte de este exclusivo proyecto. Carrasco Parkside te ofrece no solo una vivienda, sino un estilo de vida privilegiado. Fecha estimada de entrega febrero 2027 Contáctanos hoy mismo para más información de otras unidades disponibles y asegúrate de reservar tu lugar en este inigualable desarrollo. ¡Tu futuro hogar te espera! Compartimos con todos los colegas Cada Oficina es de propiedad, gestión y desarrollo independiente La presente publicación describe las características esenciales del inmueble, debiéndose consultar al responsable de la operación por la eventual actualización de las medidas, descripciones arquitectónicas y funcionales, servicios, impuestos, precios y demás información, cuyos valores son aproximados.

Detalles de la Propiedad

ID

Tipo de Propiedad

Tipo de Operación

Habitaciones

Baños

1450808

Apartamento

Venta

2

1

Dormitorios

Año de Construcción

Referencia

Actualizado

1

2026

F5B617

2026-03-21

Ubicación

159.0к U$S

Ubicación

Montevideo

Dirección

Carrasco, Alamos 2200

Comodidades de la propiedad

Parrillero

Acciones Adicionales

RE/MAX
099...582
598...582
Objeto similar
Cargando...
¡Gana dinero refiriendo colegas!

Invita a otros agentes inmobiliarios y gana 10% de comisión por cada promoción que realicen.