La Blanqueada, Monte Caseros 2700

U$S 184,400

$ ~7,490,000 / + $ 5,500 gastos comunes / U$S 3,293/m2

Dormitorios

2

Baños

1

M² edificados

56

Año de Construcción

2026

Tipo de Propiedad

Apartamento

hace más de

3 semanas

Vistas

78

Venta Apartamento 2 Dormitorios La Blanqueada

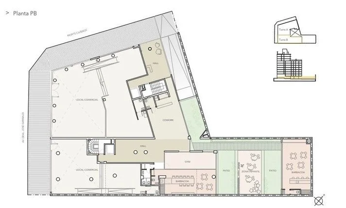
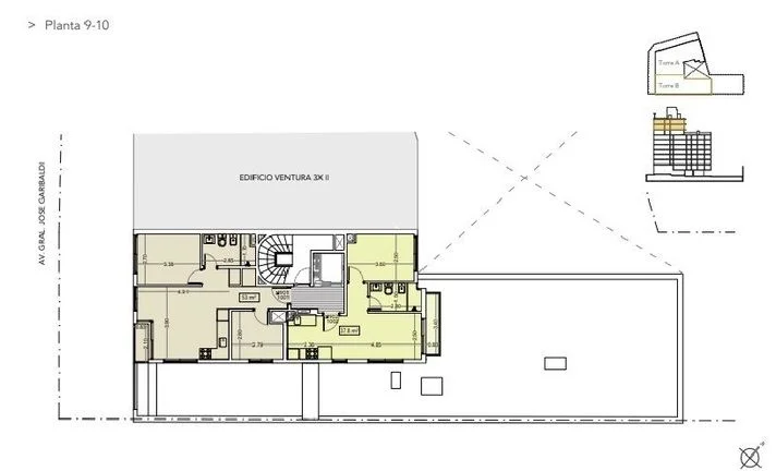
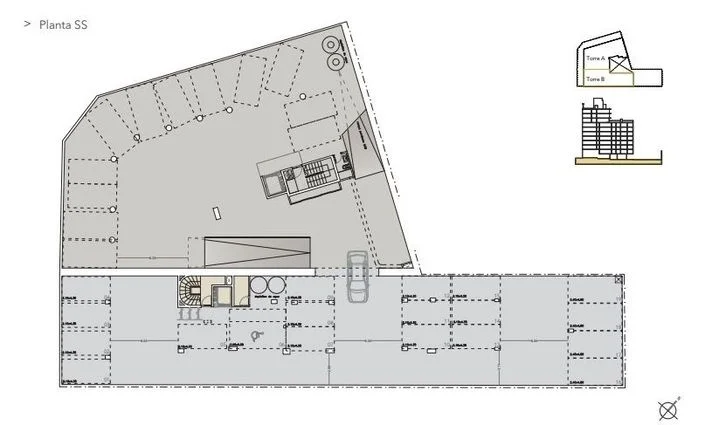
¡TreeHouse Bienes Raíces Vende! Apartamento de 2 dormitorios con terraza en La Blanqueada. Fecha de entrega estimada: Marzo 2026. Ventura Tres Cruces II es un proyecto innovador que combina gran arquitectura con excelentes servicios y espacios comunes para poder brindar confort a todos sus propietarios. Ubicado en el cruce de Gral. Garibaldi y Monte Caseros, una zona privilegiada, con buenos valores en sus propiedades y perfecta para vivir en familia, rodeado de servicios y a pasos de facultades como centros de salud. También nos encontraremos a cuadras de unos de los bulevares mas importantes de Montevideo, como lo es Bv. Artigas, dándonos acceso rápido a diferentes puntos de Montevideo. Unidad 708: Se trata de un apartamento de 50,5 m² compuesto por: dos dormitorios, un baño, cocina integrada, living comedor y terraza. Disposición al frente con orientación Suroeste, brindándole excelente ventilación y sol directo durante las horas de la tarde. Las unidades contaran con: -Grifería monocomando cromado. -Pileta simple. -Placares bajo mesadas . -Previsión para calefones eléctricos. -Previsión para lavarropas en terrazas o baños. Para garantizar el disfrute de los residentes, el proyecto contará con excelentes espacios de uso común y servicios ideales para trabajar o disfrutar con familia y amigos: -SUM. -Solarium. -Espacios de trabajo. -Barbacoas. equipadas. -Porteros inteligentes. -Patio. -Garajes en subsuelo. Para la mayor tranquilidad de los propietarios, las instalaciones contarán con: -Cerca eléctrica en perímetro de fondo. -Circuito cerrado de TV. -Puertas principales del palieres de excelente calidad con cerradura de seguridad. -Portero eléctrico individual en acceso a edificio. Beneficios de la Ley de Vivienda Promovida (Nº18.795) -Exoneración de ITP (2% sobre el valor de catastro). -Exoneración de IVA del precio de compra. -Exoneración del Impuesto al Patrimonio por 10 años. -Garajes opcionales desde: U$S 17.500 -Consulte por otras unidades monoambientes o de 1 y 2 dormitorios. Excelente oportunidad de vivienda o inversión, con rentabilidad anual asegurada y una revalorización día a día. . Caracteristicas: LIVING COMEDOR, SALA DE JUEGOS, COCINA, SAL?N DE USO COM?N XINTEL (TBR-TBR-912)

Detalles de la Propiedad

ID

Tipo de Propiedad

Tipo de Operación

M² edificados

Habitaciones

Baños

1451357

Apartamento

Venta

53

3

1

Dormitorios

Año de Construcción

Gastos Comunes

Referencia

Actualizado

2

2026

$5500

F4DBF5

2026-03-11

Ubicación

184.4к U$S

Ubicación

Montevideo

Dirección

La Blanqueada, Monte Caseros 2700

Comodidades de la propiedad

Parrillero

Placard en cocina

Terraza

Terraza Lavadero

Ascensor

Barbacoa

GYM

Living comedor

Acciones Adicionales

TreeHouse Bienes Raíces
598...457
598...457
Objeto similar
Cargando...
¡Gana dinero refiriendo colegas!

Invita a otros agentes inmobiliarios y gana 10% de comisión por cada promoción que realicen.