Centro, Andes 1200

U$S 180,000

$ ~7,310,000 / U$S 2,500/m2

Dormitorios

2

Baños

1

Garaje o Cochera

1

M² edificados

72

Año de Construcción

2016

Tipo de Propiedad

Apartamento

hace más de

2 semanas

Vistas

81

Venta Apartamento 2 Dormitorios Centro Garaje

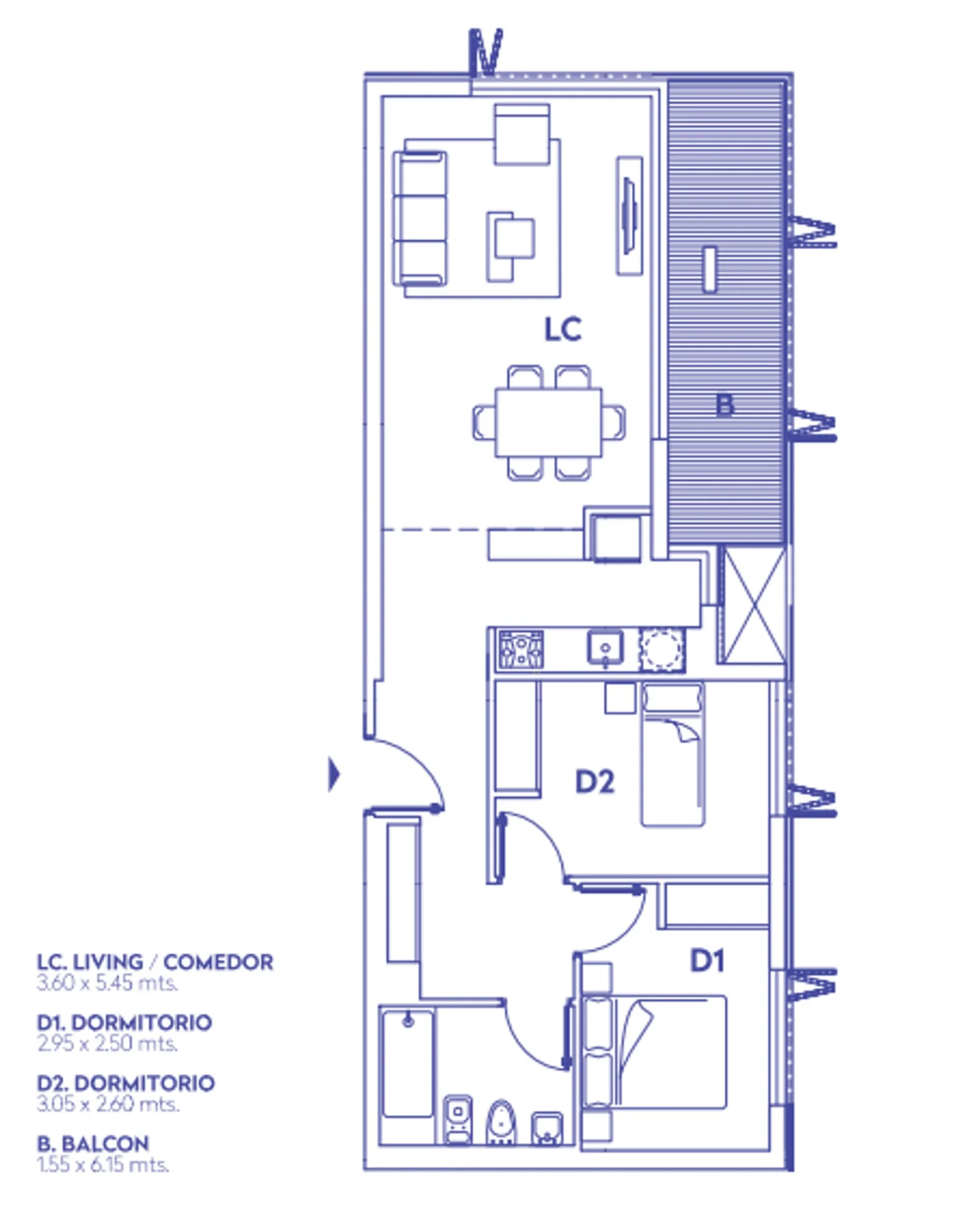
Corredor Responsable: - Contacto: Mariana Raffaglio Venta de apartamento de 2 dormitorios con garaje en edificio Alma Brava, Andes y Soriano. Apartamento de diseño moderno, construido con materiales de muy buena calidad. El edificio cuenta con portería presencial y acceso digital a las unidades. La unidad está alquilada en $34.000 mensual, con renta neta aprox. 5%. El living comedor tiene grandes ventanales que aportan muy buena luz natural y salida a una cómoda terraza. La cocina semi integrada ofrece buen espacio de guardado y está equipada con campana, horno, anafe y calefón. Los dos dormitorios, con placares de puertas espejadas y amplios ventanales, se ubican en un sector más privado de la vivienda, separados del área social. El hall de distribución cuenta además con espacio para armario o pequeño escritorio. Todos los ambientes tienen aire acondicionado, aberturas de gran calidad con vidrios DVH y sistema de postigones de diseño. La unidad incluye garaje en planta baja. En el piso 11 el edificio ofrece un espacio de uso común con muy lindas vistas de la ciudad, estufa a leña y áreas pensadas tanto para trabajar como para encuentros sociales. Puede utilizarse libremente por los residentes o mediante reserva previa. Una muy buena oportunidad para vivir o invertir en una ubicación céntrica y bien conectada. Cada Oficina es de propiedad, gestión y desarrollo independiente La presente publicación describe las características esenciales del inmueble, debiéndose consultar al responsable de la operación por la eventual actualización de las medidas, descripciones arquitectónicas y funcionales, servicios, impuestos, precios y demás información, cuyos valores son aproximados.

Detalles de la Propiedad

ID

Tipo de Propiedad

Tipo de Operación

Habitaciones

Baños

1436754

Apartamento

Venta

3

1

Dormitorios

Garaje o Cochera

Año de Construcción

Referencia

Actualizado

2

1

2016

V5611F

2026-03-17

Ubicación

180к U$S

Ubicación

Montevideo

Dirección

Centro, Andes 1200

Acciones Adicionales

RE/MAX
099...218
598...218
Objeto similar
Cargando...
¡Gana dinero refiriendo colegas!

Invita a otros agentes inmobiliarios y gana 10% de comisión por cada promoción que realicen.