Punta Carretas, Williman 500

U$S 245,000

$ ~9,780,000 / U$S 2,552/m2

Dormitorios

1

Baños

1

Garaje o Cochera

1

M² edificados

96

Año de Construcción

2025

Tipo de Propiedad

Apartamento

hace más de

5 meses

Vistas

497

Venta Apartamento 1 Dormitorio Pta Carretas Cocher

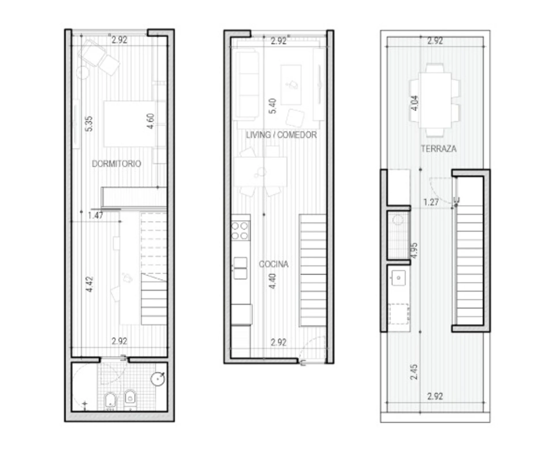
Corredor Responsable: - Contacto: Nicolás Calzada Hermosos apartamentos de diseño en PUNTA CARRETAS. EDIFICIO AIME. Edificio en construcción a estrenar en julio de 2025. El proyecto desarrolla 31 unidades, contando con confortables tipologías MONOAMBIENTE, 1-2-3 DORMITORIOS tradicionales y en DUPLEX con expansión a terrazas y patios privados, privilegiando el diseño y la luminosidad. Amenities: GIMNASIO, LAVADERO, GARAJES, BOXES, sector de guardado de bicicletas y amplias TERRAZAS CON PARRILLERO de uso común en el último nivel. La unidad 306 se desarrolla de la siguiente manera: El apartamento se desarrolla en tres plantas. Planta baja: Living comedor con salida a patio de 17 m2 y cocina integrada. Primer piso: 1 dormitorio y 1 baño completo. Terraza de 30 m2 Incluye cochera de muy buenas dimensiones y fácil accesibilidad. No dudes en consultar! Cada Oficina es de propiedad, gestión y desarrollo independiente La presente publicación describe las características esenciales del inmueble, debiéndose consultar al responsable de la operación por la eventual actualización de las medidas, descripciones arquitectónicas y funcionales, servicios, impuestos, precios y demás información, cuyos valores son aproximados.

Detalles de la Propiedad

ID

Tipo de Propiedad

Tipo de Operación

M² edificados

Habitaciones

Baños

1232509

Apartamento

Venta

96

2

1

Dormitorios

Garaje o Cochera

Año de Construcción

Referencia

Actualizado

1

1

2025

UC4928

2025-08-30

Ubicación

245к U$S

Ubicación

Montevideo

Dirección

Punta Carretas, Williman 500

Acciones Adicionales

RE/MAX
098...461
099001901
Objeto similar
Cargando...
¡Gana dinero refiriendo colegas!

Invita a otros agentes inmobiliarios y gana 10% de comisión por cada promoción que realicen.