La Blanqueada, Monte Caseros 2700

U$S 146,900

$ ~5,970,000 / + U$S 4,000 gastos comunes / U$S 3,970/m2

Dormitorios

1

Baños

1

M² edificados

37

Año de Construcción

2026

Tipo de Propiedad

Apartamento

hace más de

3 semanas

Vistas

111

Venta Apartamento 1 Dormitorio La Blanqueada

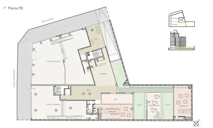
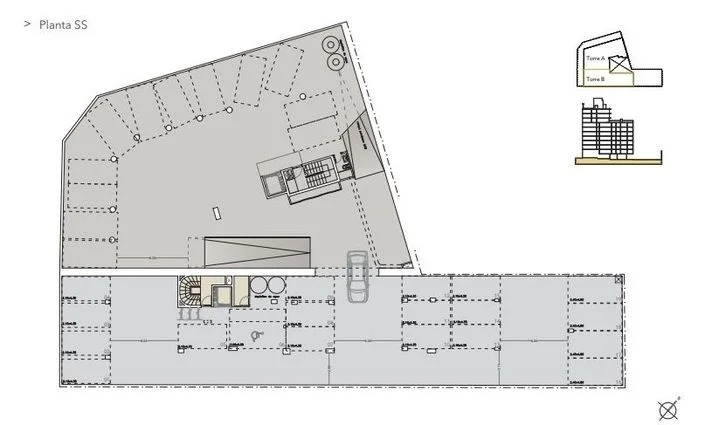
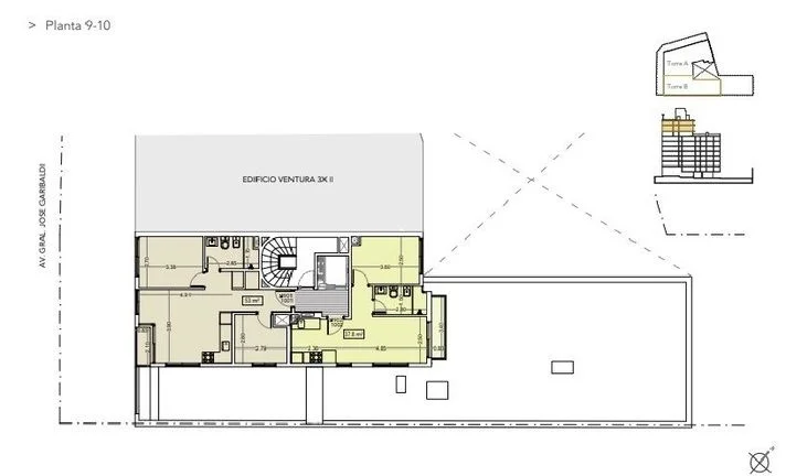
¡TreeHouse Bienes Raíces Vende! Apartamento de 1 dormitorio con terraza en La Blanqueada. Fecha de entrega estimada: Marzo 2026. Ventura Tres Cruces II es un proyecto innovador que combina gran arquitectura con excelentes servicios y espacios comunes para poder brindar confort a todos sus propietarios. Ubicado en el cruce de Gral. Garibaldi y Monte Caseros, una zona privilegiada, con buenos valores en sus propiedades y perfecta para vivir en familia, rodeado de servicios y a pasos de facultades como centros de salud. También nos encontraremos a cuadras de unos de los bulevares mas importantes de Montevideo, como lo es Bv. Artigas, dándonos acceso rápido a diferentes puntos de Montevideo. Unidad 710: Se trata de un apartamento de 37.1 m² compuesto por: Living-comedor con salida a terraza, 1 dormitorio, cocina integrada y baño. Disposición al lateral con orientación Nortoeste, brindándole excelente asoleamiento durante la mayor parte del día. Las unidades contaran con: -Grifería monocomando cromado. -Pileta simple. -Placares bajo mesadas . -Previsión para calefones eléctricos. -Previsión para lavarropas en terrazas o baños. Para garantizar el disfrute de los residentes, el proyecto contará con excelentes espacios de uso común y servicios ideales para trabajar o disfrutar con familia y amigos: -SUM. -Solarium. -Espacios de trabajo. -Barbacoas. equipadas. -Porteros inteligentes. -Patio. -Garajes en subsuelo. Para la mayor tranquilidad de los propietarios, las instalaciones contarán con: -Cerca eléctrica en perímetro de fondo. -Circuito cerrado de TV. -Puertas principales del palieres de excelente calidad con cerradura de seguridad. -Portero eléctrico individual en acceso a edificio. Beneficios de la Ley de Vivienda Promovida (Nº18.795) -Exoneración de ITP (2% sobre el valor de catastro). -Exoneración de IVA del precio de compra. -Exoneración del Impuesto al Patrimonio por 10 años. -Garajes opcionales desde: U$S 18.500 -Consulte por otras unidades monoambientes o de 1 y 2 dormitorios. Excelente oportunidad de vivienda o inversión, con rentabilidad anual asegurada y una revalorización día a día. . Caracteristicas: LIVING COMEDOR, SALA DE JUEGOS, SOLARIUM, COCINA XINTEL (TBR-TBR-2252)

Detalles de la Propiedad

ID

Tipo de Propiedad

Tipo de Operación

M² edificados

Habitaciones

Baños

1447795

Apartamento

Venta

35

2

1

Dormitorios

Año de Construcción

Gastos Comunes

Referencia

Actualizado

1

2026

U$S4000

X29F93

2026-03-11

Ubicación

146.9к U$S

Ubicación

Montevideo

Dirección

La Blanqueada, Monte Caseros 2700

Comodidades de la propiedad

Parrillero

Placard en cocina

Terraza

Terraza Lavadero

Ascensor

Barbacoa

GYM

Solárium

Living comedor

Acciones Adicionales

TreeHouse Bienes Raíces
+59896902941
Objeto similar
Cargando...
¡Gana dinero refiriendo colegas!

Invita a otros agentes inmobiliarios y gana 10% de comisión por cada promoción que realicen.