La Blanqueada, Bv. JosÉ Batlle Y OrdoÑez 2500

U$S 125,813

$ ~5,020,000 / + $ 4,000 gastos comunes / U$S 2,621/m2

Dormitorios

1

Baños

1

M² edificados

48

Año de Construcción

2025

Tipo de Propiedad

Apartamento

hace más de

4 meses

Vistas

332

Venta Apartamento 1 Dormitorio La Blanqueada

¡TreeHouse Bienes Raíces Vende!






Apartamento de 1 dormitorio con terraza en La Blanqueada. Fotos de unidad similar, Ver planos.

Edificio en Construcción, Fecha de entrega: Noviembre de 2025.

Se ubica sobre Bv. José Batlle y Ordóñez esquina Justo Maeso, reuniendo conectividad, locomoción y variedad de servicios. Zona con alta demanda de vivienda dada la cantidad de puestos de trabajo.

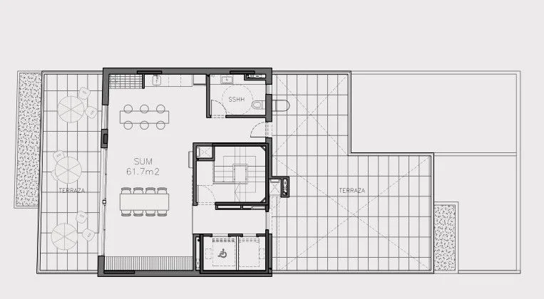
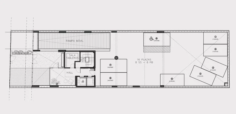
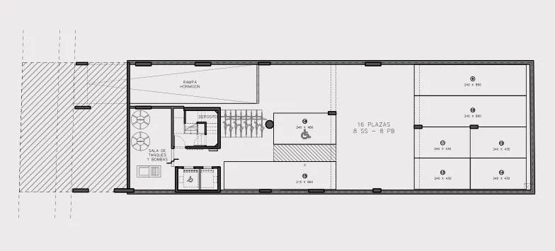
Site Propios es un proyecto pensado para el público inversor que logra un perfecto equilibrio entre rentabilidad, calidad y seguridad. El proyecto se compone de 32 unidades de vivienda donde encontraremos unidades de 1 y 2 dormitorios. Además cuenta con 16 plazas de cochera en planta baja y subsuelo, terrazas y zona de parrilleros.

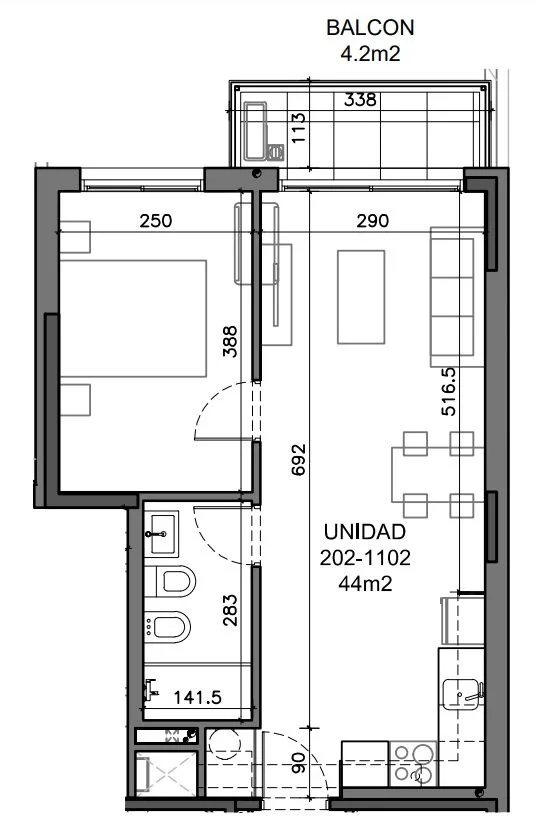
Unidad 1002 - Apartamento que cuenta con 48 m2 totales, compuesto por un living comedor con salida a terraza y cocina integrada, baño y 1 dormitorio.

El apartamento contará con las siguientes características: placares sobre y bajo mesada en cocina, pre-instalación de aire acondicionado, aberturas de aluminio con persiana integrada, revestimiento de porcelanato en baño y cocina, pisos de vinílico símil madera y muros de mampostería tradicional tanto exteriores como interiores.

Proyecto desarrollado bajo el amparo de la Ley de Viviendas Promovidas (Ley Nº 18.795) por lo que ofrece exoneración del ITP (2% del valor catastral), exoneración de IRAEIRPF a las rentas generadas por 10 años y exoneración del IP por 10 años.

Cocheras opcionales.

Gastos de ocupación 4%.

Consulte por otras unidades similares de 1 y 2 dormitorios.


.
Caracteristicas: PORTERO ELECTRICO, APTO PARA FAMILIASNIñOS, PERMITE MASCOTAS, LIVING COMEDOR, PLACARD EN COCINA, COCINA

XINTEL (TBR-TBR-2842)

Detalles de la Propiedad

ID

Tipo de Propiedad

Tipo de Operación

M² edificados

Habitaciones

Baños

1205422

Apartamento

Venta

44

2

1

Dormitorios

Año de Construcción

Gastos Comunes

Referencia

Actualizado

1

2025

$4000

K31290

2025-09-10

Ubicación

125.8к U$S

Ubicación

Montevideo

Dirección

La Blanqueada, Bv. JosÉ Batlle Y OrdoÑez 2500

Comodidades de la propiedad

Parrillero

Placard en cocina

Terraza

Terraza Lavadero

Ascensor

Living comedor

Acciones Adicionales

TreeHouse Bienes Raíces
598...673
598...673
Objeto similar
Cargando...
¡Gana dinero refiriendo colegas!

Invita a otros agentes inmobiliarios y gana 10% de comisión por cada promoción que realicen.