Punta Carretas, Francisco Ros

$ 29,000

+ $ 1,200 gastos comunes

Baños

1

M² edificados

41

Año de Construcción

2018

Tipo de Propiedad

Local Comercial

hace más de

1 semana

Vistas

24

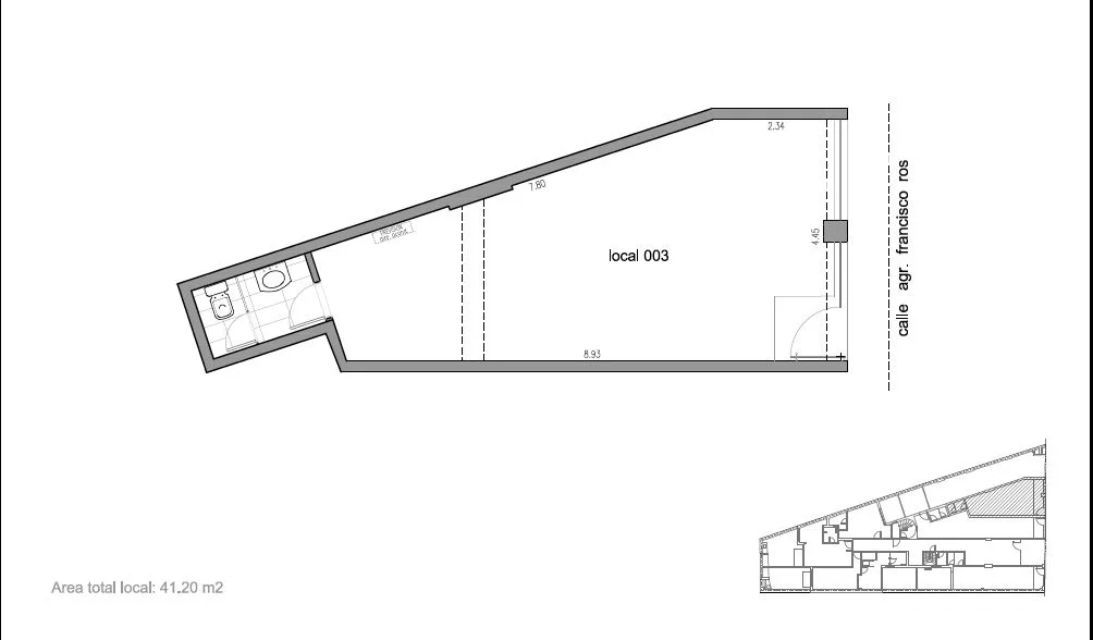
Local Con 5mts De Vidriera

UBICACIÓN DE PRIVILEGIO, sobre calle Francisco Ros, a mts de 21 de Setiembre. Desarrollado en una planta cuenta con doble vidriera, baño completo, actualmente cuenta con divisiones en yeso generando espacios definidos, pero eso puede modificarse dependiendo del rubro y/o necesidad.

Alquiler $ 29.000.-

Gastos comunes $ 1400.-

Tributos domiciliarios: $ 1600 c/2 meses.
(CW220427)

Detalles de la Propiedad

ID

Tipo de Propiedad

Tipo de Operación

M² edificados

Habitaciones

1341752

Local Comercial

Alquiler

41

1

Baños

Año de Construcción

Gastos Comunes

Referencia

Actualizado

1

2018

$1200

UE0E03

2025-12-05

Ubicación

29к $

Ubicación

Montevideo

Dirección

Punta Carretas, Francisco Ros

Comodidades de la propiedad

Calefacción Individual

Aire Acondicionado

Acciones Adicionales

TEJERA Y ASOCIADOS
+59897070720
Objeto similar
Cargando...
¡Gana dinero refiriendo colegas!

Invita a otros agentes inmobiliarios y gana 10% de comisión por cada promoción que realicen.