Parque Rodó, Av. Julio Herrera Y Reissig

$ 32,000

$ ~788 / + $ 3,600 gastos comunes

Dormitorios

2

Baños

1

M² edificados

53

Tipo de Propiedad

Apartamento

hace más de

1 semana

Vistas

34

2 Dorm Reciclado A Nuevo | Parque Rodó | Maggiolo Y Nardone

Ubicado en Maggiolo 520, a metros de la Rambla, el Golf y el Shopping, este apartamento ofrece ubicación estratégica y la tranquilidad de una unidad contrafrente.

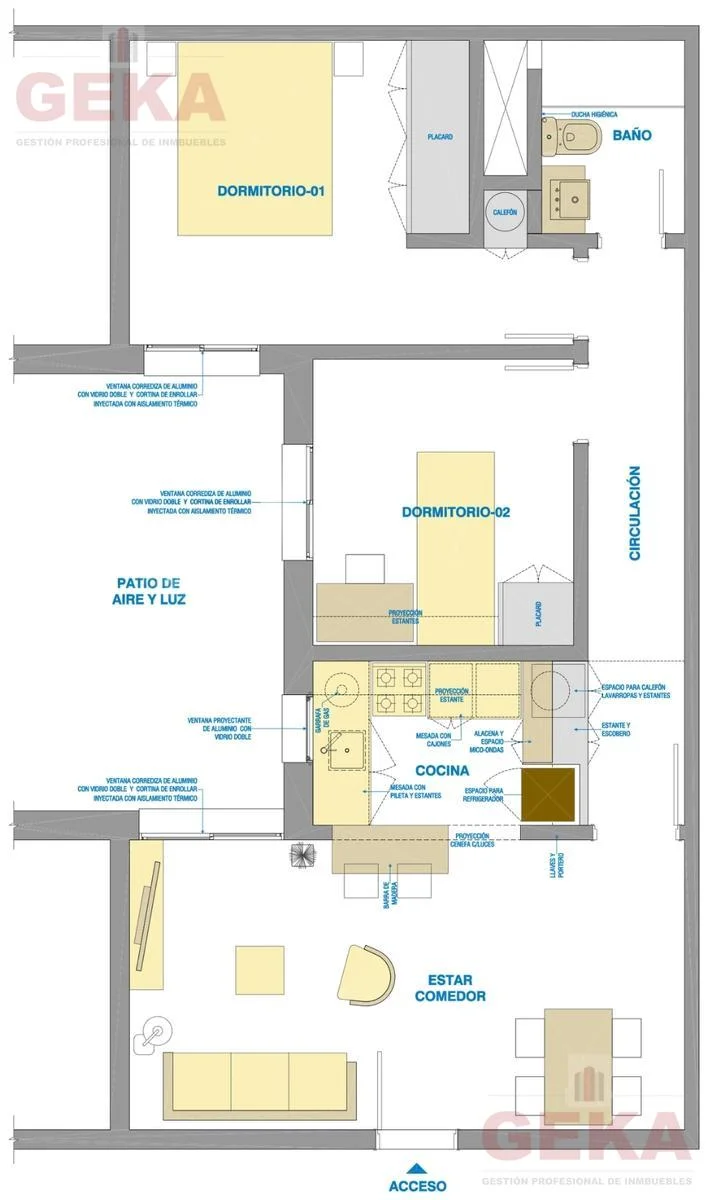
Son 53 m² en segundo piso por escalera, en edificio clásico de los años 50 totalmente reciclado. Unidad lista para entrar.

Living comedor amplio con cocina integrada de diseño y buen espacio de guardado.
Dos dormitorios cómodos con placares.
Baño amplio.
Placard independiente en pasillo con conexión para lavarropas, manteniendo el orden en los ambientes principales.

Todos los ambientes cuentan con aberturas nuevas con DVH y persianas, lo que mejora el aislamiento térmico y el confort térmico durante todo el año.

El edificio dispone de azotea de uso común para colgar la ropa.

Alquiler: $32.000
Gastos comunes: $3.600
Garantías aceptadas: ANDA, CGN y aseguradoras.

Una opción clara para quienes buscan independizarse en Punta Carretas, con todo cerca y en un apartamento reciclado a nuevo.

Coordiná visita tu visita.



Por cualquier consulta o para coordinar una visita llámenos que con gusto le atenderemos!
. GEKA PROPIEDADES.
. Comisión por venta: 3% + i.v.a
. Comisión por alquiler 1 mes + iva
. http://www.geka.com.uy/
. [email protected]
. Cel.: ***
. Whatsapp: (+598) ***

Detalles de la Propiedad

ID

Tipo de Propiedad

Tipo de Operación

M² edificados

Habitaciones

1475480

Apartamento

Alquiler

53

3

Baños

Dormitorios

Gastos Comunes

Referencia

Actualizado

1

2

$3600

D12F44

2026-04-06

Ubicación

32к $

Ubicación

Montevideo

Dirección

Parque Rodó, Av. Julio Herrera Y Reissig

Acciones Adicionales

Geka
+59...204
598...204
Objeto similar
Cargando...
¡Gana dinero refiriendo colegas!

Invita a otros agentes inmobiliarios y gana 10% de comisión por cada promoción que realicen.