La Comercial, Ramón Del Valle Inclán 2500

U$S 178,000

$ ~7,230,000 / U$S 805/m2

Baños

1

M² edificados

221

Año de Construcción

1941

Tipo de Propiedad

Terreno

hace más de

3 semanas

Vistas

110

Venta Galpón Con Casa 222 Mt2. Villa Muñoz

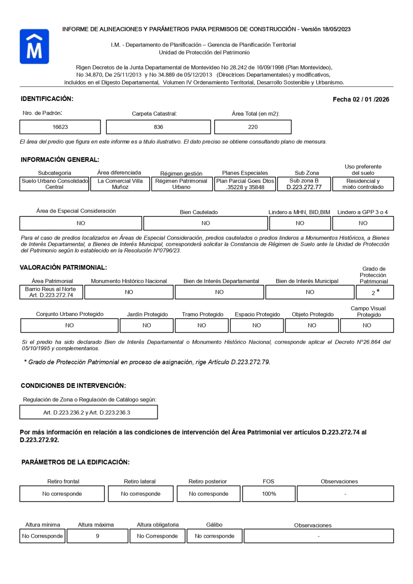
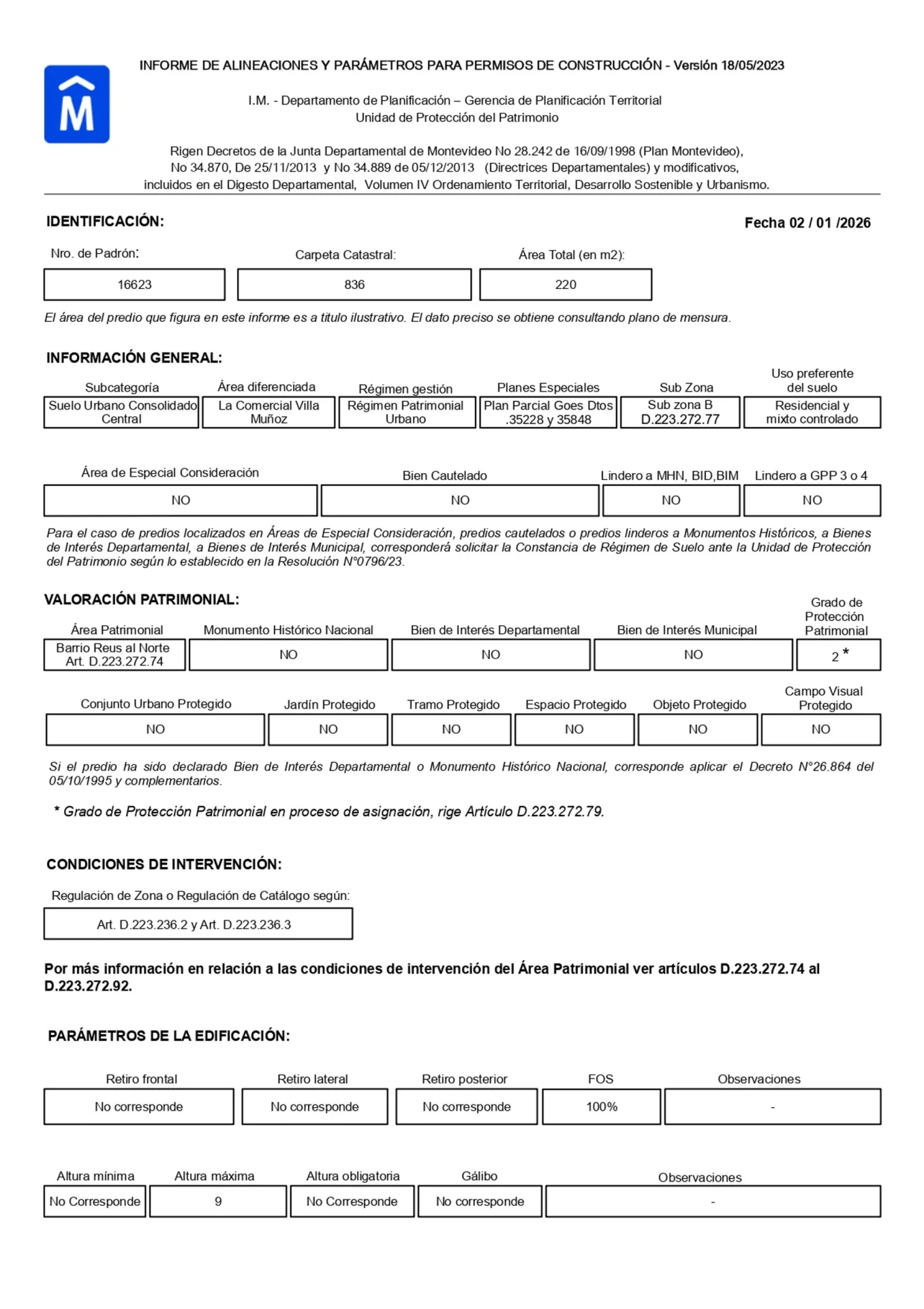
Corredor Responsable: - Contacto: Karina Urrutia Da Rocha OPORTUNIDAD GALPON Y CASA 2 AMBIENTES LA COMERCIAL MONTEVIDEO - APTO CRÉDITO Propiedad de inversión con extraordinario potencial de desarrollo inmobiliario, ubicada estratégicamente en La Comercial sobre Ramón del Valle Inclán. CARACTERÍSTICAS PRINCIPALES Inmueble histórico del año 1941 con superficie total construida de 301 m² emplazado en terreno de 221 m², diseñado con criterios de flexibilidad y funcionalidad contemporánea. DISTRIBUCIÓN INTERIOR • Amplio living • Cocina equipada con bajo mesada y placares • Sector de comedor funcional • Dormitorio principal al frente, entrepisos, Oficina • Baño completo • Altillo con potencial de transformación • Azotea semi techada con parrillero • Sótano incluido como valor agregado DETALLES TÉCNICOS • Construcción tradicional con características estructurales destacables • Portón de entrada de 2,90 x 2,70 metros • Sistema de seguridad con rejas internas y externas • Circuito de vigilancia • Dimensiones: 8,52 metros de ancho, 25,80 metros de largo • Altura interior variable UBICACIÓN ESTRATÉGICA • Zona privilegiada entre Reus-Villa Muñoz y La Comercial • Excelente conectividad urbana • Entorno comercial dinámico • Alta accesibilidad POTENCIAL DE INVERSIÓN • Múltiples opciones de desarrollo: • Uso residencial, Comercial y Empresarial • Emprendimientos comerciales • Reciclaje y ampliación permite hasta 9 mts de Altura. INFORMACIÓN FINANCIERA • Impuestos anuales: $9.617 • Contribución primaria $1.448 Propiedad que combina ubicación estratégica, dimensiones óptimas y potencial de transformación para inversores con visión de desarrollo urbano. Cada Oficina es de propiedad, gestión y desarrollo independiente La presente publicación describe las características esenciales del inmueble, debiéndose consultar al responsable de la operación por la eventual actualización de las medidas, descripciones arquitectónicas y funcionales, servicios, impuestos, precios y demás información, cuyos valores son aproximados.

Detalles de la Propiedad

ID

Tipo de Propiedad

Tipo de Operación

M² del terreno

Habitaciones

1427636

Terreno

Venta

2212

1

Baños

Año de Construcción

Referencia

Actualizado

1

1941

LB7560

2026-03-19

Ubicación

178к U$S

Ubicación

Montevideo

Dirección

La Comercial, Ramón Del Valle Inclán 2500

Acciones Adicionales

RE/MAX
099001901
Objeto similar
Cargando...
¡Gana dinero refiriendo colegas!

Invita a otros agentes inmobiliarios y gana 10% de comisión por cada promoción que realicen.