La Blanqueada, Mariano Moreno 2618

U$S 162,000

$ ~6,470,000 / + $ 2,300 gastos comunes / U$S 1,670/m2

Dormitorios

2

Baños

1

M² edificados

97

Año de Construcción

1945

Tipo de Propiedad

Casa

hace más de

4 meses

Vistas

486

Casa En Venta En La Blanqueada

LA ZONA
Ubicada en una zona estratégica de La Blanqueada, la casa ofrece una gran conectividad que facilita la vida diaria. Dispone de acceso inmediato a transporte público, así como cercanía a centros de salud, diversas instituciones educativas, instalaciones deportivas y espacios recreativos, lo que la convierte en una opción ideal para familias o profesionales en busca de calidad de vida.

EL INMUEBLE
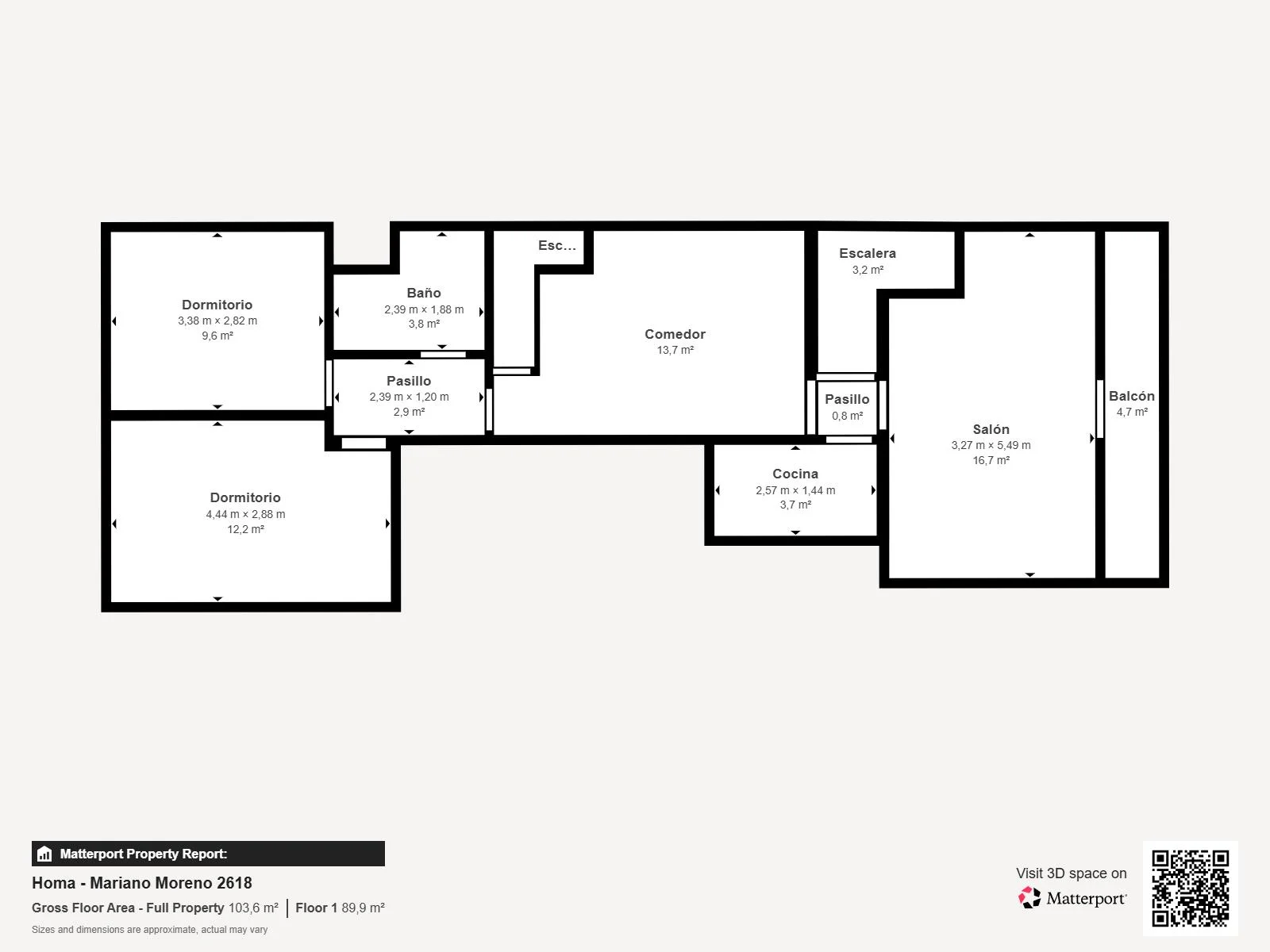
Casa de altos en PH, al frente y en excelente estado de conservación. Ideal para quienes buscan comodidad y amplitud en su hogar. Esta propiedad cuenta con espacios generosos. distribuidos de la siguiente manera: dos dormitorios amplios, altillo con condiciones para ser utilizado como tercer dormitorio u oficina, living, comedor diario, cocina definida, baño de cómodas dimensiones, balcón al frente y azotea transitable con parrillero de uso exclusivo para disfrutar de momentos al aire libre.
Su orientación ESTE permite el ingreso de luz natural que realza buena parte del inmueble, brindando un ambiente cálido y acogedor.
Además, esta unidad posee instalación eléctrica totalmente actualizada y sanitaria nueva con tanque de agua propio, asegurando autonomía y presión constante.


Gastos Comunes $2.300 Fondo de reserva inc.
Contribución Inmobiliaria $2.400 ANUAL
Tributos domiciliarios $3.600 ANUAL
Imp. Primaria $1.300
- Honorarios inmobiliarios: 3% + IVA -

Apta para crédito hipotecario, lo que la convierte en una oportunidad accesible para invertir en un hogar que combina confort y funcionalidad. No deje pasar la oportunidad de adquirir un espacio que reúne todo lo necesario para una vida plena y satisfactoria.

Comercializa en exclusividad Leonardo Menéndez - Agente Asociado a HOMA Real State.


¡Contactános para coordinar una visita!




Detalles de la Propiedad

ID

Tipo de Propiedad

Tipo de Operación

M² edificados

Habitaciones

Baños

1232078

Casa

Venta

91

3

1

Dormitorios

Año de Construcción

Gastos Comunes

Referencia

Actualizado

2

1945

$2300

XE9456

2025-09-17

Ubicación

162к U$S

Ubicación

Montevideo

Dirección

La Blanqueada, Mariano Moreno 2618

Comodidades de la propiedad

Balcón

Parrillero

Aire Acondicionado

Acciones Adicionales

Properfy
094...668
598...668
Objeto similar
Cargando...
¡Gana dinero refiriendo colegas!

Invita a otros agentes inmobiliarios y gana 10% de comisión por cada promoción que realicen.