Aguada, Gral. Fausto Aguilar 1200

U$S 125,000

$ ~5,080,000 / U$S 1,563/m2

Dormitorios

2

Baños

2

M² edificados

80

Año de Construcción

2026

Tipo de Propiedad

Apartamento

hace más de

3 semanas

Vistas

106

Apartamento Tipo Duplex En Venta A Estrenar 2 Dormitorios Y Patio En Aguada

Apartamento/ Casa tipo dúplex en venta de 2 dormitorio en Aguada

A ESTRENAR!!!
LEY DE VIVIENDA PROMOVIDA Ley 18.795
– Exoneración del ITP (2% sobre el valor de catastro)
– Exoneración de IRAE/IRPF a las rentas de alquileres por 10 años
– Exoneración del Impuesto al Patrimonio por 10 años

AMBIENTES
Living comedor con Cocina integrada /2 Baños / 2 Dormitorios / Patio con parrillero

SUPERFICIES
Cubierto: 60m2 / Descubierto: 20m2 / Total: 80m2

DESTACADOS
A estrenar/ Ley de Vivienda Promovida /Ubicación a metros de Agraciada- zona Canal 12
DESCRIPCIÓN
Apartamento tipo duplex a estrenar! En Aguada - Gral Aguilar y Zapicán (Zona canal 12)
Ideal para vivir o para inversión ya que está incluido dentro de la ley de vivienda promovida
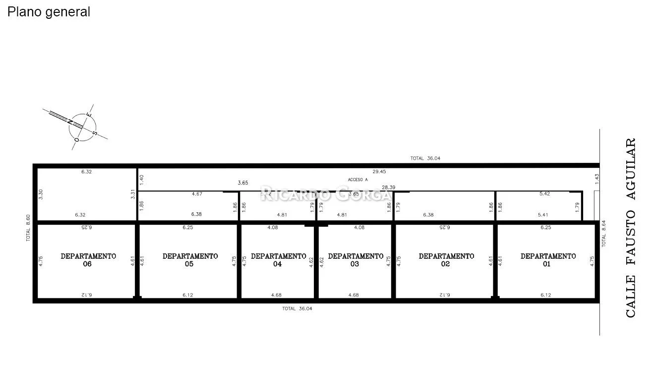
El proyecto cuenta con un total de 6 unidades; 4 unidades de 2 dormitorios y 2 unidades de 1 dormitorio.
Unidades de 2 dormitorios
Planta baja: Living comedor con cocina integrada, salida a patio y baño social
Planta alta: 2 dormitorios y baño completo

UNIDADES DISPONIBLES de 2 dormitorios
06 USD 125.000* (con patio con parrillero)
01., 02 y 05 tipo dúplex USD 118.000*
*Precios + 2.5% de reglamento de copropiedad

UNIDADES DE 1 DORMITORIO RESERVADAS

COMERCIALIZA
Inmobiliaria Ricardo Gorga
Arancel Inmobiliario: 3% + iva
Referencia del inmueble: 84157

Detalles de la Propiedad

ID

Tipo de Propiedad

Tipo de Operación

M² edificados

Habitaciones

1447919

Apartamento

Venta

60

3

Baños

Dormitorios

Año de Construcción

Referencia

Actualizado

2

2

2026

QFE867

2026-03-23

Ubicación

125к U$S

Ubicación

Montevideo

Dirección

Aguada, Gral. Fausto Aguilar 1200

Comodidades de la propiedad

Agua Caliente Central

Patio

Acciones Adicionales

Inmobiliaria Ricardo Gorga
+59891561515
Objeto similar
Cargando...
¡Gana dinero refiriendo colegas!

Invita a otros agentes inmobiliarios y gana 10% de comisión por cada promoción que realicen.