Punta Carretas, Bv Artigas 500

U$S 465,000

U$S 3,690/m2

Dormitorios

2

Baños

2

Garaje o Cochera

1

M² edificados

126

Año de Construcción

2025

Tipo de Propiedad

Apartamento

hace más de

3 meses

Vistas

429

Venta Apartamento, 2 Dormitorios, Punta Carretas, Oda

Venta apartamento, 2 dormitorio, Punta Carretas, ODA

Ubicado sobre Bulevar Artigas, en el corazón de Punta Carretas, uno de los barrios más emblemáticos de la ciudad, nace ODA, como una alegoría a la arquitectura y el diseño de primer nivel. 

Un proyecto donde la luz juega un papel central en la composición arquitectónica. ODA cuenta con apartamentos de 1, 2 y 3 dormitorios con terraza, grandes áreas de estar y ventanales que aprovechan todo el recorrido del sol. Orientados hacia tres frentes: Este, Norte y Oeste, generan espacios únicos para disfrutar del día a día.

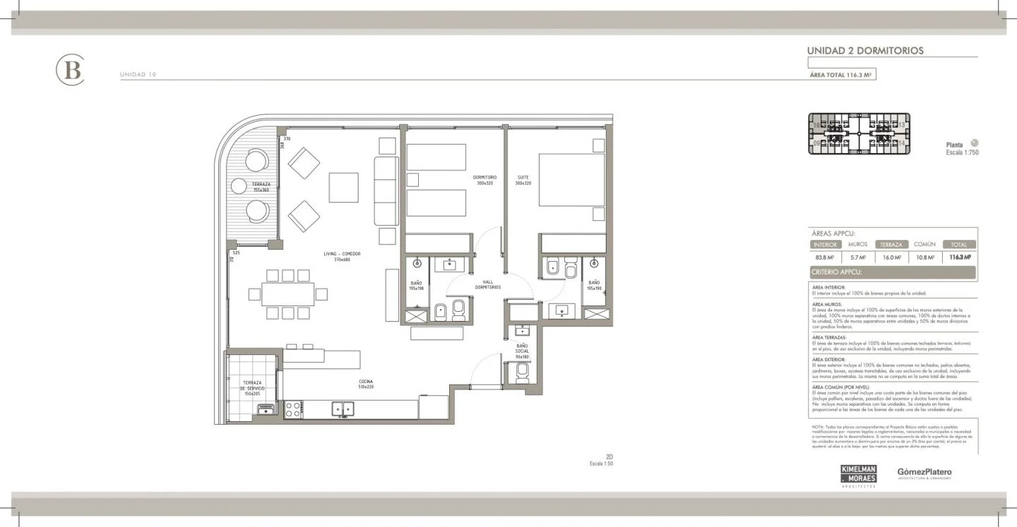
Esta unidad cuenta con 77 m2 de interiores y 25 m2 de terraza. Superficie APPCU 126 m2. El apartamento se desarrolla en un luminoso living comedor con salida al balcón, cocina integrada con barra, horno, anafe y campana incluidos. Cuenta con un dormitorio con placard, un baño completo y área de lavadero.

AMENITIES 

- Piscina con solarium.
- Gimnasio equipado.
- Rooftop con barbacoa, parrillero interior y exterior, y estar con estufa a leña.

TERMINACIONES 

- Losa radiante eléctrica sectorizada con termostato.
- Aberturas color negro línea Gala o similar.
- DVH con control térmico selectivo.
- Cerraduras digitales.
- Vanity en todos los apartamentos.
- Mesada de silestone o similar.
- Grifería de primer nivel. 
- Aire acondicionado tipo inverter. 
- Diseño paisajístico integrado.
- Calefón.

SERVICIOS

- Estacionamiento de bicicletas.
- Laundry con tender en rooftop.
- Espacio de reciclaje de residuos.
- Package room en planta baja para recepción de envíos.
- Seguridad con CCTV.

GARAJES

- Previsión para boxes y cargadores de autos eléctricos.

DESARROLLA
Sures Real Estate

ARQUITECTURA
Ponce de León Architects
Estudio Zip

CONSTRUYE
Arca Construcciones

PAISAJISMO
Identidad 

ASESORÍA LEGAL
Estudio Posadas

En Sures Bienes Raíces, nos especializamos en el desarrollo de modernos edificios de apartamentos en Punta Carretas, diseñados para ofrecer lujo y confort. Nuestra experiencia en el mercado inmobiliario nos permite brindar excelentes oportunidades de inversión inmobiliaria en Uruguay. Somos un equipo confiable y serio que busca la mejor inversión para vos, con un enfoque humano y personalizado en cada proyecto. Confía en nosotros para encontrar la propiedad ideal que se ajuste a tus necesidades. 



.
Caracteristicas: BOX, DORMITORIO EN SUITE, GARAJE, LIVING COMEDOR, TOILETTE, APTO PARA FAMILIASNIñOS, LAUNDRY, LOSA RADIANTE, PLACARD EN COCINA, LAVADERO, PORTERIA, PERMITE MASCOTAS, SEGURIDAD, VIGILANCIA

XINTEL (SRS-SRS-9562)

Detalles de la Propiedad

ID

Tipo de Propiedad

Tipo de Operación

M² edificados

M² de terraza

Habitaciones

1273724

Apartamento

Venta

77

252

3

Baños

Dormitorios

Garaje o Cochera

Año de Construcción

Referencia

Actualizado

2

2

1

2025

T4597A

2025-11-07

Ubicación

465к U$S

Ubicación

Montevideo

Dirección

Punta Carretas, Bv Artigas 500

Comodidades de la propiedad

Box

Losa Radiante

Parrillero

Placard en cocina

Terraza

Terraza Lavadero

Ascensor

Barbacoa

GYM

Piscina

Aire Acondicionado

Jardín

Lavadero

Living comedor

Acciones Adicionales

Sures Real Estate
59897442288
+59897442288
Objeto similar
Cargando...
¡Gana dinero refiriendo colegas!

Invita a otros agentes inmobiliarios y gana 10% de comisión por cada promoción que realicen.