Cordón, Constituyente 1800

U$S 199,000

+ $ 4,000 gastos comunes / U$S 2,584/m2

Dormitorios

2

Baños

1

Garaje o Cochera

2

M² edificados

77

Año de Construcción

2025

Tipo de Propiedad

Apartamento

hace más de

3 semanas

Vistas

91

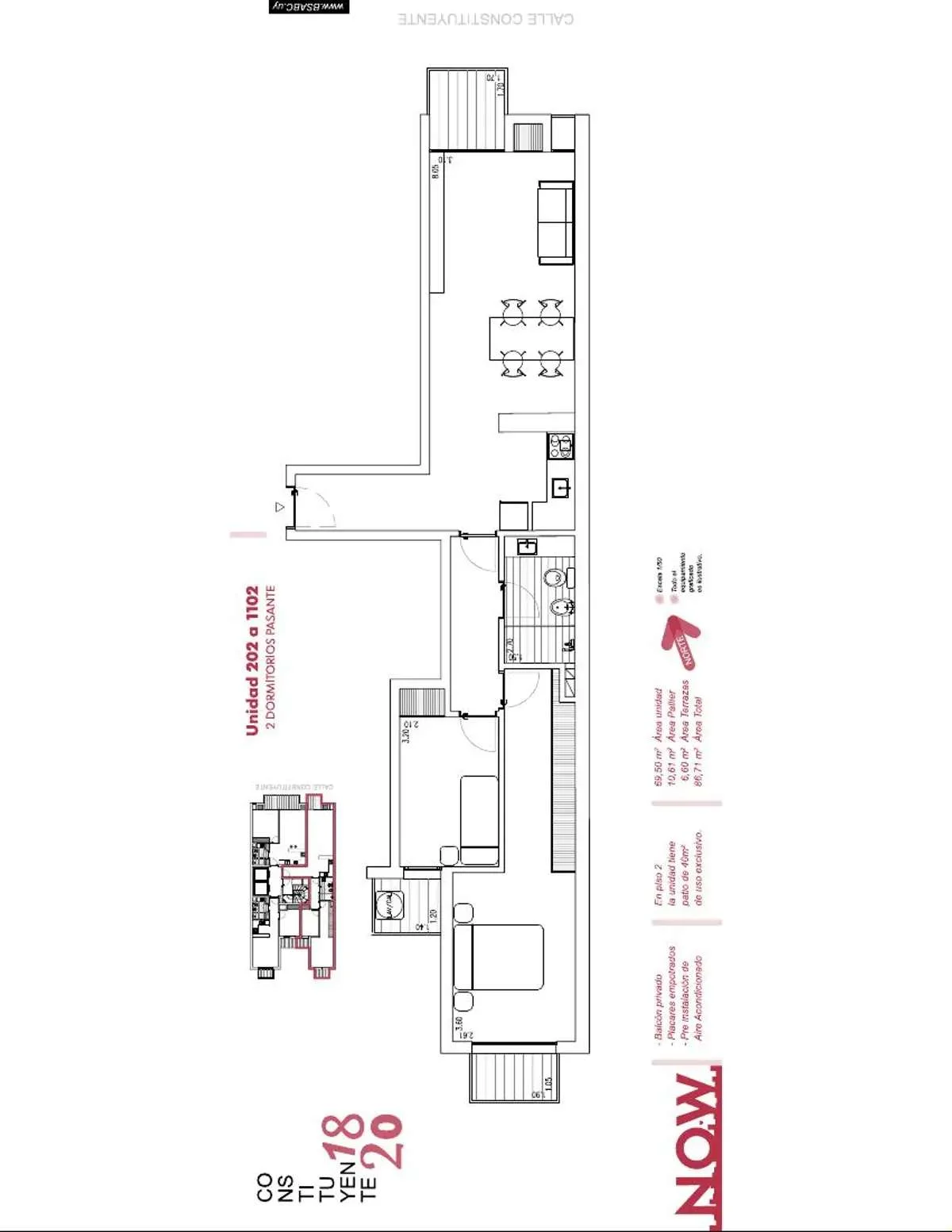
Apartamento En Venta De 2 Dormitorios C/ Cochera En Cordón

En la buscada zona de Cordón Sur, se encuentra este atractivo apartamento en venta, ideal para quienes buscan comodidad y funcionalidad. Con un precio de U$D 199.000, este inmueble de 77 m² totales ofrece un living comedor luminoso con terraza al frente, orientado al norte, lo que garantiza una excelente luz natural durante todo el día. La cocina integrada, equipada con una moderna barra y placares tanto sobre como bajo mesada, es perfecta para quienes disfrutan de la gastronomía. Los dos dormitorios cuentan con amplios placares y ventanales que permiten acceso a una terraza, complementados con cortinas de enrollar que brindan privacidad y confort.

Este apartamento también incluye características distintivas como un parrillero/barbacoa y un salón de uso común, ideales para disfrutar de momentos de entretenimiento. La previsión de aire acondicionado y un lavadero funcional añaden aún más valor a la propiedad. Además, se destaca por su cerradura electrónica, asegurando un acceso seguro. Con un garage en subsuelo que ofrece espacio para dos autos, este apartamento se adapta a diversas necesidades. Construido bajo la Ley de vivienda promocional, este hogar es apto para quienes buscan una inversión inteligente en una ubicación privilegiada. Los gastos comunes son de UY$ 4.000, lo cual es razonable para las comodidades que ofrece. Se aceptan mascotas, lo que lo convierte en un lugar ideal para familias.
Gasto de ocupación 4%.

¡Llámenos para conocer más en detalle esta propiedad!
Virginia Correa
INMOBILIARIA PLATINUM

Detalles de la Propiedad

ID

Tipo de Propiedad

Tipo de Operación

M² edificados

Habitaciones

Baños

1329536

Apartamento

Venta

77

3

1

Dormitorios

Garaje o Cochera

Año de Construcción

Gastos Comunes

Referencia

Actualizado

2

2

2025

$4000

T6CFE8

2025-12-02

Ubicación

199к U$S

Ubicación

Montevideo

Dirección

Cordón, Constituyente 1800

Comodidades de la propiedad

Cochera

Parrillero

Placard en dormitorio

Agua Caliente Central

Acciones Adicionales

Platinum
097687948
Objeto similar
Cargando...
¡Gana dinero refiriendo colegas!

Invita a otros agentes inmobiliarios y gana 10% de comisión por cada promoción que realicen.