La Blanqueada, Bv. José Batlle Y Ordóñez 2428

$ 24,000

$ ~603 / + $ 4,500 gastos comunes

Dormitorios

1

Baños

1

M² edificados

33

Año de Construcción

2023

Tipo de Propiedad

Apartamento

hace más de

1 mes

Vistas

253

Apartamento En Alquiler En La Blanqueada 1 Dormitorio

Camila Paez Negocios inmobiliarios alquila en exclusividad Apartamento de 1 Dormitorio en la Blanqueada, Montevideo.

LA ZONA
Ubicado sobre Bv. José Batlle y Ordóñez 2428, a tan solo una cuadra de Avenida Italia, en una zona de excelente conectividad y crecimiento constante.
Su ubicación estratégica permite rápido acceso hacia distintos puntos de Montevideo, con cercanía a centros de salud, universidades, supermercados, locomoción y servicios diarios.

EL EDIFICIO
Ventura Boulevard es un edificio moderno que combina diseño contemporáneo, funcionalidad y amenities pensados para el día a día.
Cuenta con:
-Dos barbacoas de uso común, una de ellas equipada con horno a leña, plancha, paellera a gas y parrilla tradicional
-Gimnasio equipado
-Espacio de lectura y estudio
-Rincón de juegos para niños
-Huerta orgánica en planta baja
-Seguridad y excelente mantenimiento de áreas comunes

EL APARTAMENTO
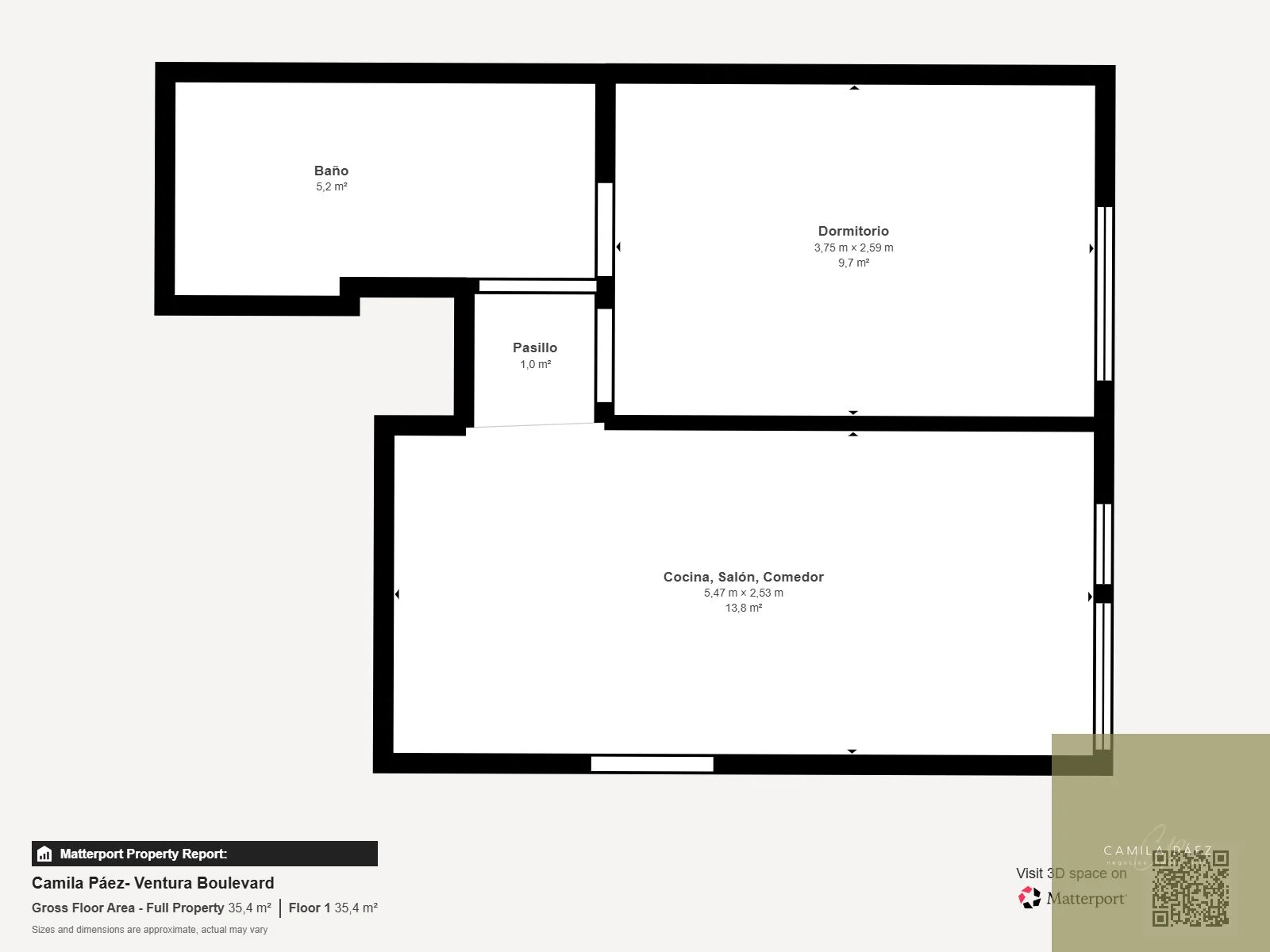
Apartamento de 1 dormitorio ubicado en piso 9, con excelente luminosidad natural y una distribución muy funcional.
Su superficie interior es de aproximadamente 33 m², con ambientes bien resueltos que optimizan cada metro cuadrado.

Distribución interior:
-Living comedor con cocina integrada de aproximadamente 5,47 m x 2,53 m
-Dormitorio independiente de 3,75 m x 2,59 m, de muy buenas dimensiones, con espacio para cama de dos plazas y mobiliario complementario.
-Baño completo de 5,2 m², de buen tamaño y cómoda circulación.
Pequeño hall de distribución que independiza el sector privado del apartamento.
La orientación y altura favorecen muy buena entrada de luz natural durante gran parte del día.

CARACTERISTICAS DESTACADAS
-Cortinas eléctricas
-Previsión para aire acondicionado
-Excelente luminosidad
-Distribución funcional

GASTOS
Alquiler: $24.000
Gastos comunes: aproximadamente $4.000

Garantías aceptadas
ANDA
Contaduría
Consultar por aseguradoras

Honorarios Inmobiliarios: 1 mes de alquiler + IVA
¿Te gustaría conocer más? ¡Contáctanos!

Detalles de la Propiedad

ID

Tipo de Propiedad

Tipo de Operación

M² edificados

Habitaciones

Baños

1452694

Apartamento

Alquiler

30

2

1

Dormitorios

Año de Construcción

Gastos Comunes

Referencia

Actualizado

1

2023

$4500

RDA17B

2026-05-14

Ubicación

24к $

Ubicación

Montevideo

Dirección

La Blanqueada, Bv. José Batlle Y Ordóñez 2428

Comodidades de la propiedad

Balcón

Parrillero

Terraza

Agua Caliente Central

Acciones Adicionales

Properfy
598...360
598...360
Objeto similar
Cargando...
¡Gana dinero refiriendo colegas!

Invita a otros agentes inmobiliarios y gana 10% de comisión por cada promoción que realicen.