La Blanqueada, Bvar. José Batlle Y Ordóñez Y Juan Jacobo Rousseau - U706

U$S 114,597

$ ~4,660,000 / U$S 3,016/m2

Dormitorios

1

Baños

1

Garaje o Cochera

1

M² edificados

38

Año de Construcción

2027

Tipo de Propiedad

Apartamento

hace más de

1 semana

Vistas

31

Apartamento De Un Dormitorio En Venta En La Blanqueada - 706

Edificio en construcción a estrenar en octubre de 2027.
Apartamento de 1 dormitorio en venta en La Blanqueada.
Torre I, piso 7 al lateral con orientación sudeste.
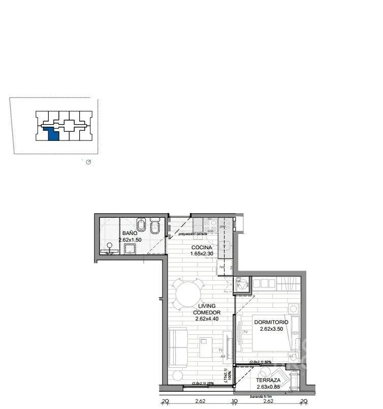
Living comedor con terraza, cocina integrada con placares, 1 dormitorio y 1 baño.

El edificio cuenta con smart lockers, sala de reuniones, un espacio de coworking, espacios exteriores enjardinados, área exterior con juegos
infantiles, pet garden, estacionamientos techados y bike parking.
Además, contará en el piso 16 con un rooftop con terraza panorámica perimetral y un salón de usos múltiples con cocina, baño y parrillero.
Gimnasio, sala de juegos y dos parrilleros exteriores pergolados. En el subsuelo, se encontrará un lavadero inteligente, taller de herramientas,
taller de reparación de bicicletas y áreas técnicas.
Garaje opcional desde U$S 16.000, no incluido en el precio.

Cuenta con los beneficios de la Ley de vivienda de interés social.
Acepta financiación bancaria.

Formas de pago:

Contado:

80% al compromiso

20% a la ocupación

Pagos durante obra:

30% al compromiso

60% en cuotas durante obra

10% a la ocupación

Gastos de ocupación 4%
u 706
Ref. CM
Nostrum Home
Referencia: ABU57511 AP6227705








Honorarios por intermediación:
3% + IVA para operaciones de compra.
Un mes de alquiler + IVA para operaciones de alquiler.

La información contenida en el presente documento ha sido proporcionada íntegramente por el/los propietarios del inmueble.

Arquibrokers Servicios Inmobiliarios no se responsabiliza por las diferencias ni las modificaciones que puedan surgir a partir de este documento.

Detalles de la Propiedad

ID

Tipo de Propiedad

Tipo de Operación

M² edificados

Habitaciones

Baños

1457382

Apartamento

Venta

35

2

1

Dormitorios

Garaje o Cochera

Año de Construcción

Referencia

Actualizado

1

1

2027

OD6E06

2026-03-24

Ubicación

114.6к U$S

Ubicación

Montevideo

Dirección

La Blanqueada, Bvar. José Batlle Y Ordóñez Y Juan Jacobo Rousseau - U706

Comodidades de la propiedad

Calefacción Individual

Terraza

Ascensor

GYM

Playroom

Living comedor

Se aceptan mascotas

Acciones Adicionales

Arquibrokers Servicios Inmobiliarios
+59...034 +59...398
598...034
Objeto similar
Cargando...
¡Gana dinero refiriendo colegas!

Invita a otros agentes inmobiliarios y gana 10% de comisión por cada promoción que realicen.