Cordón, Mercedes Y Minas - U1103

U$S 140,389

$ ~5,700,000 / U$S 3,265/m2

Dormitorios

1

Baños

1

Garaje o Cochera

1

M² edificados

43

Año de Construcción

2027

Tipo de Propiedad

Apartamento

hace más de

4 semanas

Vistas

108

Apartamento De Un Dormitorio En Venta En Cordón - 1103

Edificio en construcción a estrenar en abril de 2027.
Apartamento de 1 dormitorio en venta en Cordón.
Piso 11 al frente con orientación sur.
Living comedor con terraza al frente, cocina integrada con placard inferior, 1 dormitorio al frente con cortina de enrollar, 1 baño completo.
Cuenta con previsión para aire acondicionado.
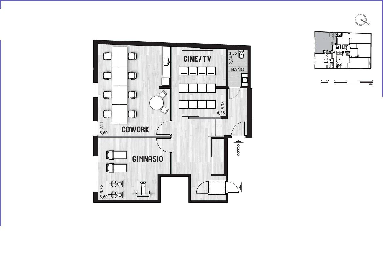
El edificio cuenta con los siguientes amenities: bicicletero, gimnasio, co work, microcine y 2 parrilleros exteriores con vista panoramica.

Garaje opcional desde U$S 15.450, no incluido en el precio.

Cuenta con los beneficios de la Ley 18.795 de vivienda promovida.

Forma de pago:

10% reserva

50% al compromiso

30% durante obra

10% a la ocupación

Gastos de ocupación 4.5%
u 1103
REF. AB
Soho Mercedes
Referencia: ABU62771 AP6885287








Honorarios por intermediación:
3% + IVA para operaciones de compra.
Un mes de alquiler + IVA para operaciones de alquiler.

La información contenida en el presente documento ha sido proporcionada íntegramente por el/los propietarios del inmueble.

Arquibrokers Servicios Inmobiliarios no se responsabiliza por las diferencias ni las modificaciones que puedan surgir a partir de este documento.

Detalles de la Propiedad

ID

Tipo de Propiedad

Tipo de Operación

M² edificados

Habitaciones

Baños

1426086

Apartamento

Venta

41

2

1

Dormitorios

Garaje o Cochera

Año de Construcción

Referencia

Actualizado

1

1

2027

AFB307

2026-03-04

Ubicación

140.4к U$S

Ubicación

Montevideo

Dirección

Cordón, Mercedes Y Minas - U1103

Comodidades de la propiedad

Calefacción Individual

Cochera

Terraza

Ascensor

GYM

Living comedor

Se aceptan mascotas

Acciones Adicionales

Arquibrokers Servicios Inmobiliarios
091502034
+59891502034
Objeto similar
Cargando...
¡Gana dinero refiriendo colegas!

Invita a otros agentes inmobiliarios y gana 10% de comisión por cada promoción que realicen.