Pocitos, Avda. Rivera Y Avda. Soca - U806

Consulta

Dormitorios

1

Baños

1

M² edificados

53

Año de Construcción

2026

Tipo de Propiedad

Apartamento

hace más de

3 meses

Vistas

363

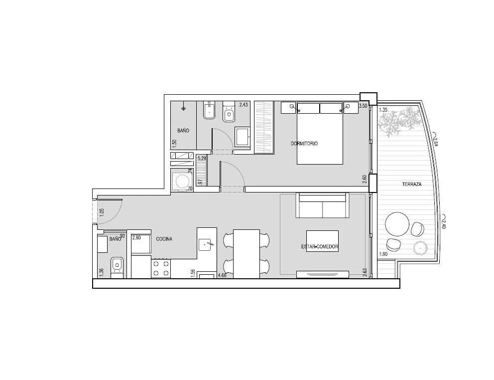
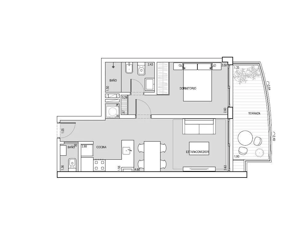
Apartamento De Un Dormitorio En Venta En Pocitos - 806

Edificio en construcción a estrenar en julio de 2026.

Apartamento de 1 dormitorio en venta en Pocitos.
Piso 8 al frente sobre Avda. Rivera.
Living comedor con terraza al frente, cocina integrada con placares y conexión para lavarropas y campana. 1 dormitorio con terraza y placard,
1 baño completo.
Cuenta con previsión para aire acondicionado y aberturas de aluminio con DVH.
Amenities: cowork, rooftop lounge con livings exteriores, fogones y parrilleros, club house con parrillero, espacio gourmet con cocina abierta,
rooftop bar y gimnasio.

Cuenta también con circuito cerrado de vigilancia, portería con monitoreo 24 horas, portero eléctrico con visor en cada unidad, cargadores para
coches eléctricos individuales en cada garaje. Garajes con bauleras.

Forma de pago 
Durante obra:
50% al compromiso
40% en cuotas durante la obra
10% a la ocupación
Gastos de ocupación 5%
El precio publicado es para esta forma de pago, consulte otras opciones de pago.
U 806
Pont Bleu
Ref. LC
Referencia: ABU54664 AP7303521




















Honorarios por intermediación:
3% + IVA para operaciones de compra.
Un mes de alquiler + IVA para operaciones de alquiler.

La información contenida en el presente documento ha sido proporcionada íntegramente por el/los propietarios del inmueble.

Arquibrokers Servicios Inmobiliarios no se responsabiliza por las diferencias ni las modificaciones que puedan surgir a partir de este documento.

Detalles de la Propiedad

ID

Tipo de Propiedad

Tipo de Operación

M² edificados

Habitaciones

1236245

Apartamento

Venta

48

2

Baños

Dormitorios

Año de Construcción

Referencia

Actualizado

1

1

2026

W6816F

2025-09-03

Ubicación

0 UYU

Ubicación

Montevideo

Dirección

Pocitos, Avda. Rivera Y Avda. Soca - U806

Comodidades de la propiedad

Calefacción Individual

Terraza

Ascensor

GYM

Living comedor

Se aceptan mascotas

Acciones Adicionales

Arquibrokers Servicios Inmobiliarios
+59...034 +59...398
598...034
Objeto similar
Cargando...
¡Gana dinero refiriendo colegas!

Invita a otros agentes inmobiliarios y gana 10% de comisión por cada promoción que realicen.