Carrasco, Cno. Brunel Y Av. Del Polo - U308

U$S 550,000

$ ~22,400,000 / U$S 3,618/m2

Dormitorios

3

Baños

2

Garaje o Cochera

1

M² edificados

152

Año de Construcción

2027

Tipo de Propiedad

Apartamento

hace más de

1 mes

Vistas

121

Apartamento De Tres Dormitorios En Venta En Carrasco - 308c

Edificio en construcción a estrenar en abril de 2026.

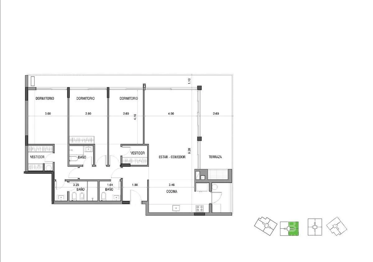
Apartamento de 3 dormitorios en venta en Carrasco.

Piso 3 torre C al frente con orientación norte.
Living comedor con salida a terraza con parrillero, cocina integrada con placares, terraza lavadero, 3 dormitorios, el principal en suite con vestidor, todos con salida a terraza, 2 baños completo y 1 baño social.
Amenities:

- Barbacoa equipadas ubicadas en el rooftop de uno de los edificios de cada etapa.

- Piscina exterior climatizada, rodeada con espacio para solárium, pavimentado con piso atérmico tipo deck.

- Solárium, terrazas acondicionadas en el rooftop de uno de los edificios de cada etapa.

- Sala de aparatos equipadas con caminadoras, spinning y multifuncionales.

- Laundry: En cada bloque se contará también con una sala equipada con máquinas lava-seca ropas de uso colectivo, mediante sistema de fichas.
- Espacio para guardar bicicletas.
Garaje opcional desde U$S 26.000, no incluido en el precio.
Forma de pago:

10% seña

40% compromiso

50% en cuotas trimestrales 

Gastos de ocupación 5%
U 308 C
Ref. RO
Novus Parques
Referencia ABU49528 AP5006570















Honorarios por intermediación:
3% + IVA para operaciones de compra.
Un mes de alquiler + IVA para operaciones de alquiler.

La información contenida en el presente documento ha sido proporcionada íntegramente por el/los propietarios del inmueble.

Arquibrokers Servicios Inmobiliarios no se responsabiliza por las diferencias ni las modificaciones que puedan surgir a partir de este documento.

Detalles de la Propiedad

ID

Tipo de Propiedad

Tipo de Operación

M² edificados

Habitaciones

Baños

1422937

Apartamento

Venta

113

4

2

Dormitorios

Garaje o Cochera

Año de Construcción

Referencia

Actualizado

3

1

2027

X418F6

2026-02-28

Ubicación

550к U$S

Ubicación

Montevideo

Dirección

Carrasco, Cno. Brunel Y Av. Del Polo - U308

Comodidades de la propiedad

Calefacción Individual

Cochera

Terraza

Vestidor

Ascensor

GYM

Lavadero

Living comedor

Se aceptan mascotas

Acciones Adicionales

Arquibrokers Servicios Inmobiliarios
+59...034 +59...398
598...034
Objeto similar
Cargando...
¡Gana dinero refiriendo colegas!

Invita a otros agentes inmobiliarios y gana 10% de comisión por cada promoción que realicen.