Carrasco Norte, Juan Pedro Beranger Y Dr. José F. Arias-402-r

U$S 303,100

$ ~12,100,000 / U$S 3,886/m2

Dormitorios

2

Baños

2

Garaje o Cochera

1

M² edificados

78

Año de Construcción

2026

Tipo de Propiedad

Apartamento

hace más de

5 meses

Vistas

410

Apartamento De Dos Dormitorios En Venta En Carrasco Norte - 402g

Edificio en construcción a estrenar en marzo de 2026.

Apartamento de 2 dormitorios en venta en Carrasco Norte.
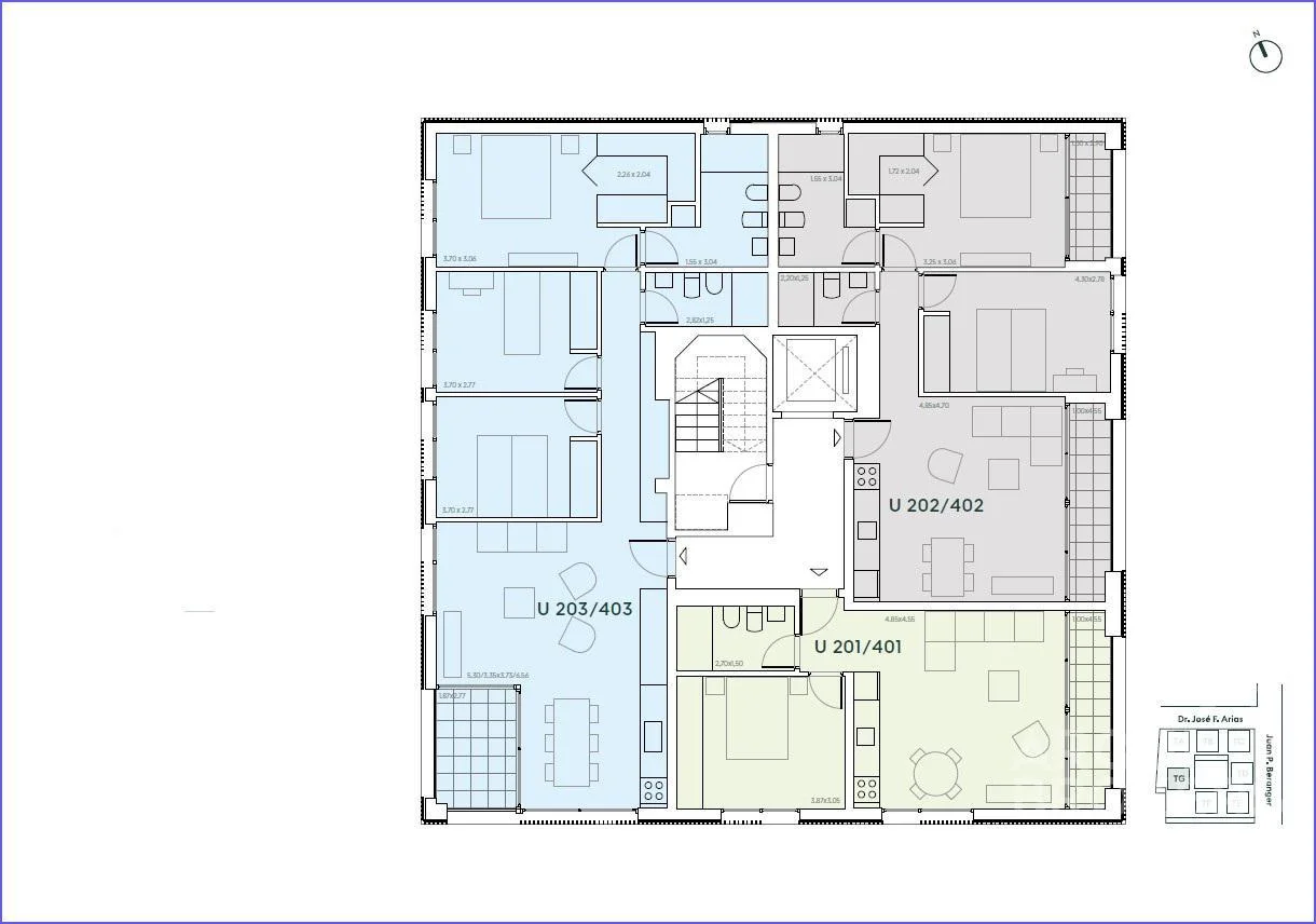
Piso 4 al frente en esquina con orientación este. Torre G.
Living comedor con terraza al frente, cocina integrada con placares, 2 dormitorios con placard, 1 en suite con terraza, 2 baños completos. 
Cuenta con piscina exterior, piscina interior, vestuarios, gimnasio, sala de yoga y pilates, sauna, sala eventos / espacio gourmet, rooftops con parrilleros (4), play room, cowork / business Center, sistemas de seguridad y vigilancia continua, espacios de estacionamiento (simples, dobles y accesibles), biciparking, bauleras.
Garajes opcionales individual U$S 25.000, dobles U$S 40.000, no incluidos en el precio.
Forma de pago:

5% seña

20% compromiso

65% en cuotas durante la obra

10% a la ocupación

Gastos de ocupación 4%
u 402G
Pr. RO
Brits
Referencia: ABU54557 AP5859498







Honorarios por intermediación:
3% + IVA para operaciones de compra.
Un mes de alquiler + IVA para operaciones de alquiler.

La información contenida en el presente documento ha sido proporcionada íntegramente por el/los propietarios del inmueble.

Arquibrokers Servicios Inmobiliarios no se responsabiliza por las diferencias ni las modificaciones que puedan surgir a partir de este documento.

Detalles de la Propiedad

ID

Tipo de Propiedad

Tipo de Operación

M² edificados

Habitaciones

Baños

1226233

Apartamento

Venta

69

3

2

Dormitorios

Garaje o Cochera

Año de Construcción

Referencia

Actualizado

2

1

2026

DFCF16

2025-08-23

Ubicación

303.1к U$S

Ubicación

Montevideo

Dirección

Carrasco Norte, Juan Pedro Beranger Y Dr. José F. Arias-402-r

Comodidades de la propiedad

Calefacción Individual

Terraza

Ascensor

GYM

Playroom

Sauna

Se aceptan mascotas

Acciones Adicionales

' ' Arquibrokers Servicios Inmobiliarios
+59...034 +59...398
598...034
Objeto similar
Cargando...
¡Gana dinero refiriendo colegas!

Invita a otros agentes inmobiliarios y gana 10% de comisión por cada promoción que realicen.