La Blanqueada, Bvar. Batlle Y Ordóñez Y Azara - U1003b

$ 37,000

$ ~928 / + $ 4,500 gastos comunes

Dormitorios

1

Baños

1

Garaje o Cochera

1

M² edificados

39

Tipo de Propiedad

Apartamento

hace más de

5 meses

Vistas

433

Apartamento De 1 Dormitorio En Alquiler En La Blanqueada

Apartamento de 1 dormitorio en alquiler en La Blanqueada.
Piso 10 al frente.
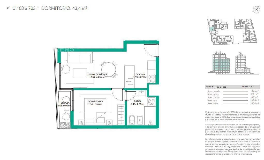
Living comedor con salida a terraza y cocina integrada, 1 dormitorio al frente y 1 baño.
Garaje incluido en el precio.

El edificio cuenta con:
•Excelente ubicación y conectividad
•Dos barbacoas, una de ellas equipada con horno a leña, plancha y paellera para gas y parrilla tradicional.
•Huerta orgánica en planta baja para los amantes de la jardinería
•Gimnasio equipado
•Rincón de juegos para los más pequeños
•Espacio para lectura y estudio, totalmente equipado.
•Servicio de portería y control de acceso
•Acceso digital a las unidades con portero inteligente, control de acceso con smartphone
•Comunicación interna del edificio a través de pantallas en espacios comunes.
u1003
Ref. AB
Ventura Bulevar B

Referencia: ABU23544 AP2974053

Honorarios por intermediación:
3% + IVA para operaciones de compra.
Un mes de alquiler + IVA para operaciones de alquiler.

La información contenida en el presente documento ha sido proporcionada íntegramente por el/los propietarios del inmueble.

Arquibrokers Servicios Inmobiliarios no se responsabiliza por las diferencias ni las modificaciones que puedan surgir a partir de este documento.

Detalles de la Propiedad

ID

Tipo de Propiedad

Tipo de Operación

M² edificados

Habitaciones

Baños

1204029

Apartamento

Alquiler

37

2

1

Dormitorios

Garaje o Cochera

Gastos Comunes

Referencia

Actualizado

1

1

$4500

N24C63

2025-07-31

Ubicación

37к $

Ubicación

Montevideo

Dirección

La Blanqueada, Bvar. Batlle Y Ordóñez Y Azara - U1003b

Comodidades de la propiedad

Calefacción Individual

Parrillero

Terraza

Ascensor

GYM

Playroom

WiFi

Living comedor

Se aceptan mascotas

Acciones Adicionales

Arquibrokers Servicios Inmobiliarios
+59...034 +59...398
598...034
Objeto similar
Cargando...
¡Gana dinero refiriendo colegas!

Invita a otros agentes inmobiliarios y gana 10% de comisión por cada promoción que realicen.