Carrasco, Camino Carrasco Al 6400

U$S 9,460

$ ~384,000

Baños

3

Garaje o Cochera

80

M² edificados

616

Tipo de Propiedad

Oficina

hace más de

3 semanas

Vistas

81

Alquiler Oficina Y Depósito - Carrasco Norte

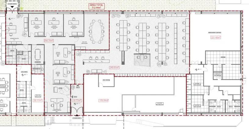
Características de las oficinas

- Superficie total: 1.943 m2
- Opción de división a oficinas independientes de 1.040 m2 + 616 m2
- Cuenta con espacio de almacenamiento con acceso desde el exterior de 158 m2
- Subsuelo con espacio de almacenamiento 170 m2
- Cocina equipada y comedor de gran capacidad
- Estacionamientos: 80
- Amplio jardín verde para esparcimiento
- Previsión para grupo electrógeno

- Sistema contra incendios con detectores
- Sistema de aire acondicionado
- Piso técnico
- Cielorraso
- Áreas de open space
- Salas de reuniones y Phoneboots
- Área de recepción
- Lockers
- Espacio de comedor con cocina completa
- Vestuarios con duchas

Buena accesibilidad, con cercanía a centro gastronómico y comercial de distintos rubros. Ubicado a metros de importantes barrios privados, los principales colegios, y a poca distancia del LATU.

Detalles de la Propiedad

ID

Tipo de Propiedad

Tipo de Operación

M² edificados

Habitaciones

1434834

Oficina

Alquiler

616

1

Baños

Garaje o Cochera

Referencia

Actualizado

3

80

A3598C

2026-03-11

Ubicación

9.5к U$S

Ubicación

Montevideo

Dirección

Carrasco, Camino Carrasco Al 6400

Comodidades de la propiedad

Calefacción

Patio

Acciones Adicionales

Jones Lang Lasalle
094...452
598...452
Objeto similar
Cargando...
¡Gana dinero refiriendo colegas!

Invita a otros agentes inmobiliarios y gana 10% de comisión por cada promoción que realicen.