Punta Carretas, Solano Garcia Y Coronel Mora

$ 132,000

Dormitorios

2

Baños

2

M² edificados

88

Año de Construcción

2022

Tipo de Propiedad

Local Comercial

hace más de

2 meses

Vistas

386

Alquiler Local Comercial Punta Carretas

EXCELENTE Local como a estrenar ESQUINA , diseño , excelentes vidrieras y exposición !!! mucho sol y luz !
Ubicación inmejorable de Punta Carretas : esquina con Solano García y Coronel Mora , zona de constante crecimiento y desarrollo, con todos los servicios al alcance.

Cortinas de enrrollar motorizadas - previsión para aires .

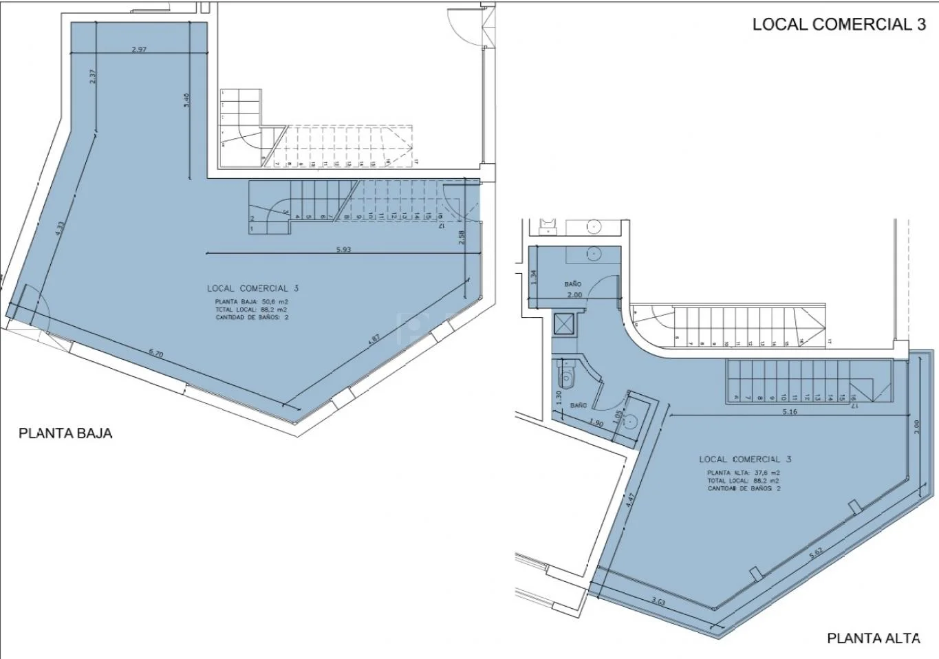
Dos plantas que miden en su totalidad 88,2 mts
Planta baja mide 50,6 mts y planta alta 37,6 mts
Terraza en planta alta
2 baños

Disponible a partir del 16/01/26

POR CONSULTAS COMUNICARSE CON PARODI INMOBILIARIA *** - *** (Llamadas/Whatsapp)
www.parodi.com.uy - [email protected]
Pueden seguirnos en Facebook e Instagram
Somos parte de GRUPO GUIA


Detalles de la Propiedad

ID

Tipo de Propiedad

Tipo de Operación

Habitaciones

Baños

1298752

Local Comercial

Alquiler

3

2

Dormitorios

Año de Construcción

Referencia

Actualizado

2

2022

D9240B

2025-10-27

Ubicación

132к $

Ubicación

Montevideo

Dirección

Punta Carretas, Solano Garcia Y Coronel Mora

Acciones Adicionales

Parodi
+59895449990
Objeto similar
Cargando...
¡Gana dinero refiriendo colegas!

Invita a otros agentes inmobiliarios y gana 10% de comisión por cada promoción que realicen.