Goes, Dr. Domingo Aramburu Y Arenal Grande, Montevideo

$ 130,000

$ ~3,204

Baños

1

Tipo de Propiedad

Local Comercial

hace más de

1 semana

Vistas

45

Alquiler De Local Comercial En Goes

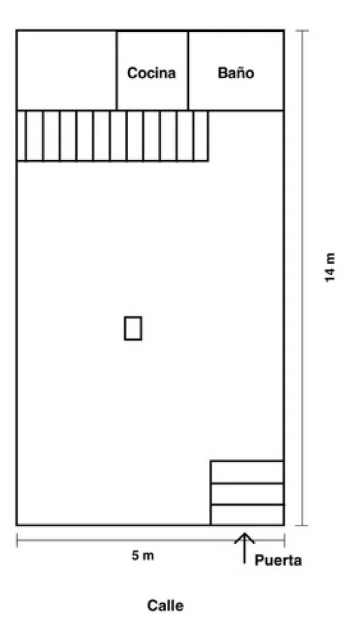
Local en una de las zonas más dinámicas de Montevideo. Ubicado en Goes, este espacio ofrece una excelente visibilidad y acceso, ideal para emprendedores que buscan establecer o expandir su negocio en un entorno en crecimiento.

Con un diseño versátil, este local se adapta a diversas actividades comerciales, desde tiendas hasta oficinas. Su ubicación estratégica garantiza un flujo constante de clientes, gracias a la cercanía con importantes vías de acceso y una variada oferta de servicios en la zona.

No deje pasar la oportunidad de invertir en un espacio que puede ser el inicio de su próximo gran proyecto.

¡Estamos aquí para ayudarle a dar el siguiente paso hacia el éxito!
Contacta con nuestros asesores hoy mismo al teléfono (092) 634 965 para obtener más información y programar una visita. Referencia Interna : Tera-11988

Detalles de la Propiedad

ID

Tipo de Propiedad

Tipo de Operación

Habitaciones

1445417

Local Comercial

Alquiler

1

Baños

Referencia

Actualizado

1

T1193D

2026-03-19

Ubicación

130к $

Ubicación

Montevideo

Dirección

Goes, Dr. Domingo Aramburu Y Arenal Grande, Montevideo

Acciones Adicionales

LIBRA INMOBILIARIA
598...965
598...965
Objeto similar
Cargando...
¡Gana dinero refiriendo colegas!

Invita a otros agentes inmobiliarios y gana 10% de comisión por cada promoción que realicen.