La Blanqueada, Acosta Y Lara 2336/22 Esq Juan Guzmán

$ 24,000

$ ~627 / + $ 1,700 gastos comunes

Dormitorios

1

Baños

1

M² edificados

66

Año de Construcción

1951

Tipo de Propiedad

Apartamento

hace más de

2 meses

Vistas

328

Alquiler Amplio Monoambiente Tipo Dúplex Con áreas Adicionales. La Blanqueada

LA BLANQUEADA
ACOSTA Y LARA 2336/22  ESQ. JUAN GUZMÁN

UNIDAD DÚPLEX MONOAMBIENTE CON ESPACIOS ADICIONALES


Excelente ubicación. En el corazón de La Blanqueada. A dos cuadras de Av. Luis Alberto Herrera. Próximo a las principales avenidas de la zona (Bv. Batlle y Ordoñez, Av. Centenario, Av. 8 de octubre y Av. Italia). Varios centros médicos en la zona SMI – CASMU – Hospital Evangélico. Conectividad hacia todo Montevideo.

Lindo apartamento dúplex, ubicado en complejo cerrado

Alquiler: $24.000

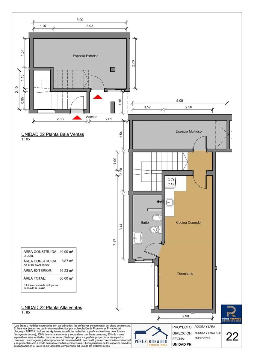
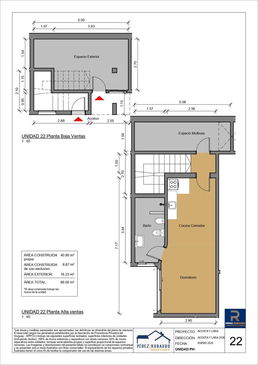
Planta Baja:

Área de acceso

Amplio depósito con área de lavadero

Planta Alta

Hall de distribución

Ambiente principal con cocina integrada

Baño completo

Amplio espacio techado. Admite múltiples usos

Área en planta alta: 49.77  m² 

Área en planta baja: 16.23 m²

Área total 66.00 m²

Estacionamientos  disponibles en alquiler.

Gastos comunes aproximados: $ 1700. Incluyen OSE, UTE de áreas comunes, mantenimiento de sanitaria, jardinería, limpieza de áreas comunes, mantenimiento de cámaras y honorarios de administración.

Tipos de garantías que acepta: Anda, Contaduría, Porto Seguros, Sura, Mapfre, Berkley, Surco o Fideciu.

Comisión Inmobiliaria : El equivalente al importe de un mes de alquiler más IVA .

Para coordinar visitas llamar de 10: 00 a 18:00 hs a los teléfonos   091 205 097, 092 403 497 o 29037490

Quedamos a las órdenes

Pérez Robaudo Inmobiliaria (Antes Propiedades & Inversiones)

Tel/Fax 2903 7490

Cel. 092600431

Av. 18 de julio 1322 esq. Ejido

Montevideo – Uruguay

Detalles de la Propiedad

ID

Tipo de Propiedad

Tipo de Operación

M² edificados

Habitaciones

Baños

1209826

Apartamento

Alquiler

63

2

1

Dormitorios

Año de Construcción

Gastos Comunes

Referencia

Actualizado

1

1951

$1700

B1BAFA

2025-10-23

Ubicación

24к $

Ubicación

Montevideo

Dirección

La Blanqueada, Acosta Y Lara 2336/22 Esq Juan Guzmán

Comodidades de la propiedad

Balcón

Depósito

Aire Acondicionado

Patio

Lavadero

Living comedor

Se aceptan mascotas

Acciones Adicionales

Pérez Robaudo - Inmobiliaria y Desarrolladora
+59...490 +59...545
598...545
Objeto similar
Cargando...
¡Gana dinero refiriendo colegas!

Invita a otros agentes inmobiliarios y gana 10% de comisión por cada promoción que realicen.