Playa Mansa, Av Chiverta 100

U$S 297,808

U$S 3,818/m2

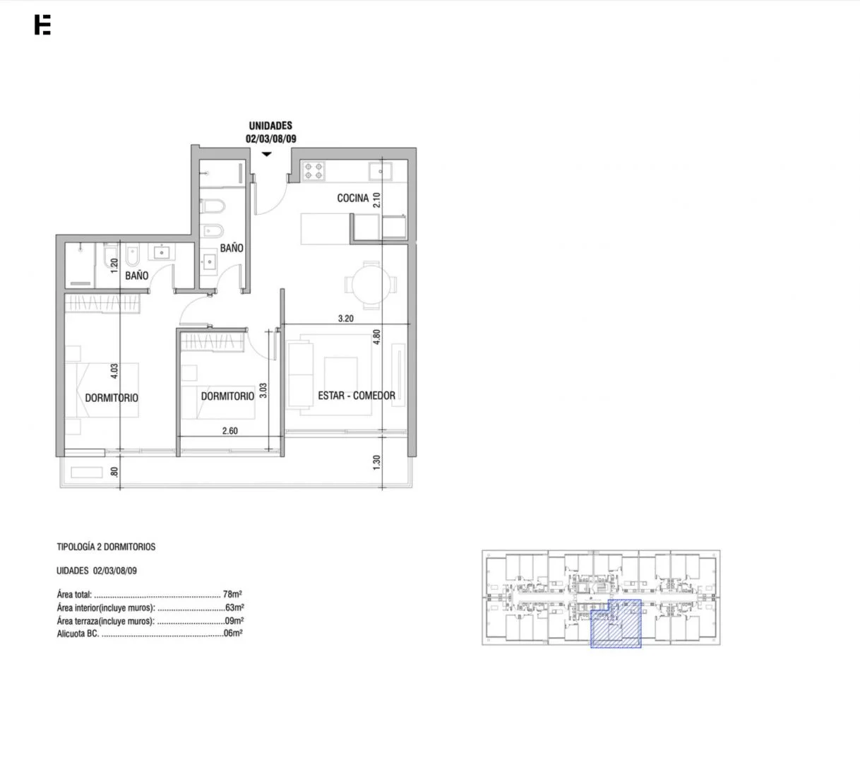
Dormitorios

2

Baños

2

Garaje o Cochera

1

M² edificados

78

Año de Construcción

2025

Tipo de Propiedad

Apartamento

hace más de

3 meses

Vistas

422

Torres Del Este Vende Apartamento 2 Dorm Central Punta Del E

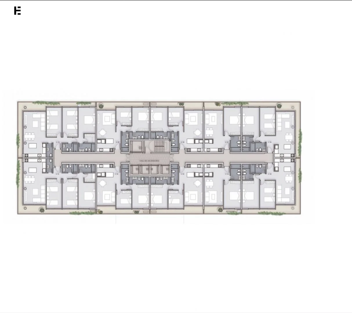
Torres del Este cuenta con una Superficie de terreno de 9500 m2, 140 metros de frente sobre Chiverta. 23 Pisos de apartamentos. 1er piso - 8 apartamentos. Del piso 2 al 23 son 10 apartamentos por piso. 5 Ascensores, cocheras en planta baja y 2 subsuelo de garajes.

Amenities de Torres del Este:
Barbacoas
Piscina exterior de más de 400 m2 de espejo de agua climatizada.
Piscina cerrada y climatizada.
Sauna seco, vestuarios y duchas.
Sala de juegos.
CoworkMeeting room
Salón para reuniones informales y relax, sociales ó familiares.
Cancha exterior de piso sintético para usos deportivos recreativos.
Kids Places. En el jardín dos estaciones de juegos para los niños más pequeños.

Servicios:
Recepción, vigilancia y seguridad.
Garaje.
Laundrys. Mediante sistema de fichas.
Portero eléctrico.
Portones automáticos.
CCTV
Wifi, En áreas comunes internas y externas.
Se entrega con anafe, campana extractora y calefón
Losa radiante optativa, si el cliente la quiere se le cotiza aparte. Debe decirlo al momento de la firma.

--Apartamento Publicado hace referencia a Planta central de 2 Dormitorios Tipo 02 y 03 plantas espejo Al frente. Consultar por opcion tipo 08 y 09 Contrafrente.
Cuenta con 2 dormitorios 2 baños (1 suite) cocina integrada. Terraza.
(4 x piso centrales) 02,03,08,09 área interior 63 m2 + terraza 9 m2

Forma de pago: Torre Mansa
10% reserva
20% compromiso de compraventa (30 dias)
60% financiado hasta en 6 meses 
10% a la ocupación

Entrega abril 2026

Cocheras optativas:

U$S 17.000 subsuelo 

-Gastos de ocupación 5%
- Comisión 3.66%



.
Caracteristicas: BALCON, GARAJE, LAVANDERíA, PLAYROOM, SALA DE JUEGOS, SOLARIUM, APTO PARA FAMILIASNIñOS, CANCHAS DEPORTIVAS, CONEXIóN A INTERNET, ESPACIOS DEPORTIVOS, ESTACIONAMIENTO, LAUNDRY, PARQUE, PORTERIA, SEGURIDAD, SERVICIO DE LIMPIEZA, SALóN DE USO COMúN, WIFI

XINTEL (UNIDAD-PSD-PSD-7962)

Detalles de la Propiedad

ID

Tipo de Propiedad

Tipo de Operación

M² edificados

M² de terraza

Habitaciones

1294319

Apartamento

Venta

63

62

3

Baños

Dormitorios

Garaje o Cochera

Año de Construcción

Referencia

Actualizado

2

2

1

2025

Z7B91C

2025-11-11

Ubicación

297.8к U$S

Ubicación

Maldonado

Dirección

Playa Mansa, Av Chiverta 100

Comodidades de la propiedad

Balcón

Ascensor

Barbacoa

GYM

Piscina

Playroom

WiFi

Solárium

Acciones Adicionales

Passadore-Otero Asesores en Negocios Inmobilarios
+59894609743
Objeto similar
Cargando...
¡Gana dinero refiriendo colegas!

Invita a otros agentes inmobiliarios y gana 10% de comisión por cada promoción que realicen.