Canelones, Camino De Los Horneros 100

U$S 2,190

Dormitorios

3

Baños

2

Garaje o Cochera

2

M² edificados

535

Año de Construcción

2024

Tipo de Propiedad

Casa

hace más de

3 meses

Vistas

518

Alquiler Casa Huertas De Los Horneros

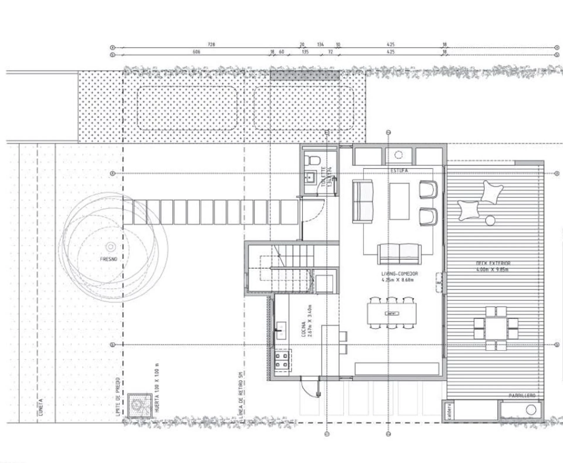
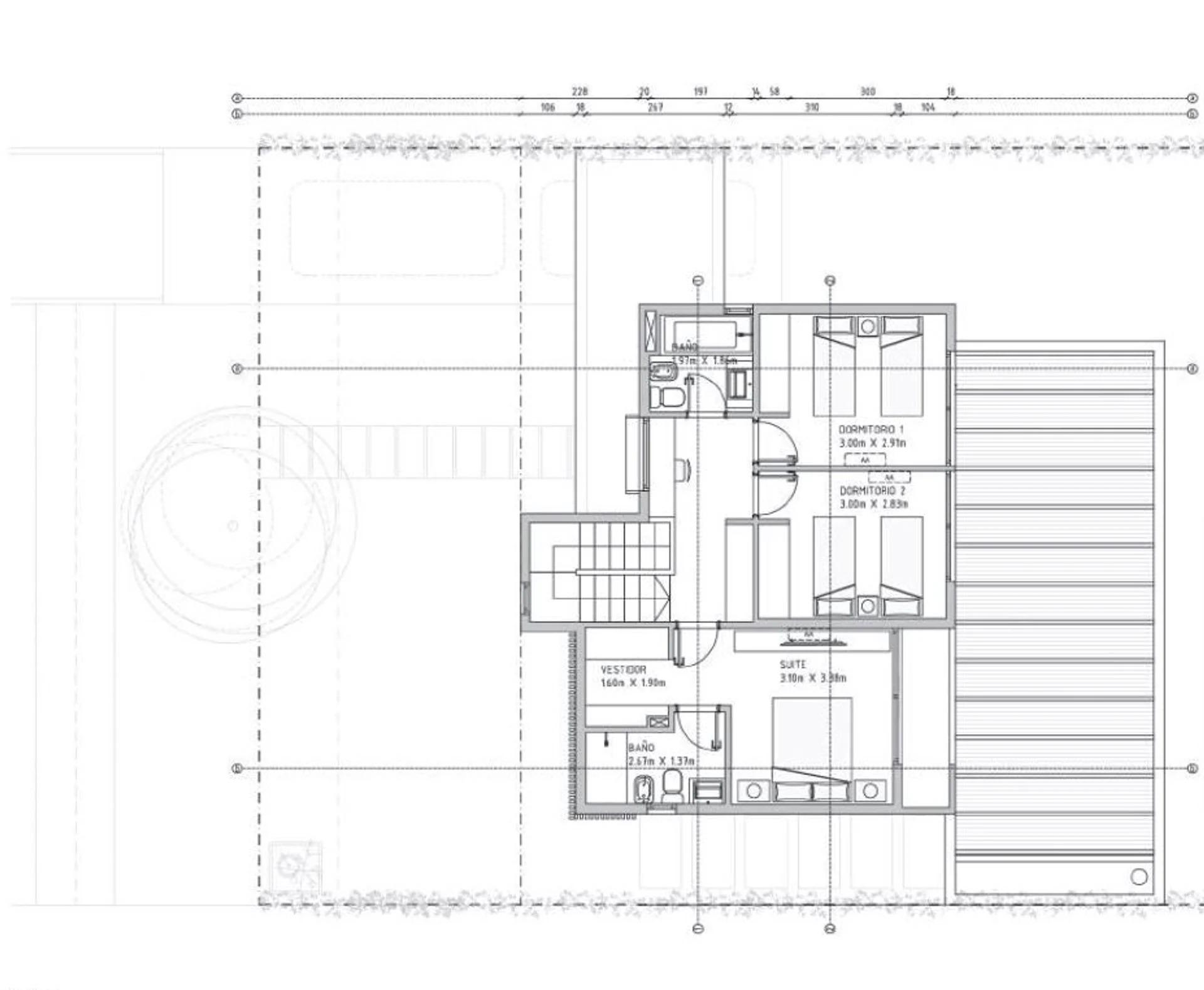
Corredor Responsable: - Contacto: Marianela Nuñez • Excelente casa en alquiler en Huertas de los Horneros, tipología 3, desarrollada en 2 niveles. • La unidad se desarrolla en un terreno de 525m2 de los cuales 135m2 son construidos y 43m2 pertenecen al deck exterior. • Cuenta con jardín y fondo verde, acceso vehicular y espacio de guardado para 2 o mas autos dentro del predio. • Todos los espacios tienen una excelente iluminación y ventilación cruzada. • Al ingresar nos encontramos con un recibidor desde el cual se accede al espacio central de la propiedad donde se desarrolla el amplio living comedor con estufa a leña vinculado también a una cómoda cocina semi integrada mediante una gran isla, la cual cuenta con un gran espacio de almacenamiento, anafe a gas, horno eléctrico y campana de extracción y cuenta con previsión para lavarropas y lavavajilla. Desde este espacio accedemos al maravilloso deck con parrillero y al fondo verde de la propiedad. Además cuenta con un baño social en esta planta. • Por medio de una cómoda escalera accedemos al nivel de planta alta que cuenta con 3 dormitorios, 1 de ellos en suite con vestidor y otro baño completo para uso de los otros dos dormitorios. Todos los dormitorios cuentan con placares empotrados de melamínico blanco, al igual que el vestidor y un placard extra en el sector de circulación hacia los dormitorios. Cuenta con mucho espacio de almacenaje. • Los baños completos cuentan con ducha en baño principal y bañera en el secundario. Mamparas de vidrio fijo, espejos y accesorios incluidos. • Todas las aberturas son de aluminio de primera calidad con doble vidrio hermético y mosquiteros. Cuentan con cortinas de enrollar en aluminio con apertura y cierre motorizado en dormitorios. • Cuenta con calefacción por losa radiante y agua caliente a caldera a gas. • Son 4 unidades disponibles de las cuales 2 de ellas cuentan con aire acondicionado, cortinas y luminarias ya colocadas. Gastos comunes: $10.000 aprox Garantías: Aseguradoras o aval bancario, consultar por otras garantías. • El complejo: - Seguridad 24hs - Clubhouse - Piscina abierta - Canchas de tenis y padel - Cowork para residentes - Entorno natural con huertas y granja para los niños - Área de juegos infantiles - Day care, jardín de infantes - Talleres de cocina, jardinería y paisajismo, pintura y cerámica - Puntos de recarga para autos eléctricos - Monopatines eléctricos y bicicletas para uso dentro del barrio Comisión inmobiliaria una cuota de alquiler + IVA Compartimos con todos los colegas Cualquier consulta no dudes en preguntar! Cada Oficina es de propiedad, gestión y desarrollo independiente La presente publicación describe las características esenciales del inmueble, debiéndose consultar al responsable de la operación por la eventual actualización de las medidas, descripciones arquitectónicas y funcionales, servicios, impuestos, precios y demás información, cuyos valores son aproximados.

Detalles de la Propiedad

ID

Tipo de Propiedad

Tipo de Operación

M² edificados

M² del terreno

Habitaciones

1267609

Casa

Alquiler

135

5352

4

Baños

Dormitorios

Garaje o Cochera

Año de Construcción

Referencia

Actualizado

2

3

2

2024

R8F3D2

2025-10-14

Ubicación

2.2к U$S

Ubicación

Canelones

Dirección

Canelones, Camino De Los Horneros 100

Comodidades de la propiedad

Parrillero

Piscina

Acciones Adicionales

RE/MAX
099001901
Objeto similar
Cargando...
¡Gana dinero refiriendo colegas!

Invita a otros agentes inmobiliarios y gana 10% de comisión por cada promoción que realicen.