Punta Rieles, Susana Pintos 2700

U$S 695,000

U$S 23/m2

Bathrooms

1

Area

30853

Category

Land

more than

3 months ago

Views

640

Venta Terreno Polo LogÍstico Punta De Rieles

Corredor Responsable: -
Contacto: Andrea Ceriani
El inmueble se emplaza en un lugar próximo a camino Maldonado (400m) y Felipe Cardozo en su conexiòn con Camino Carrasco.

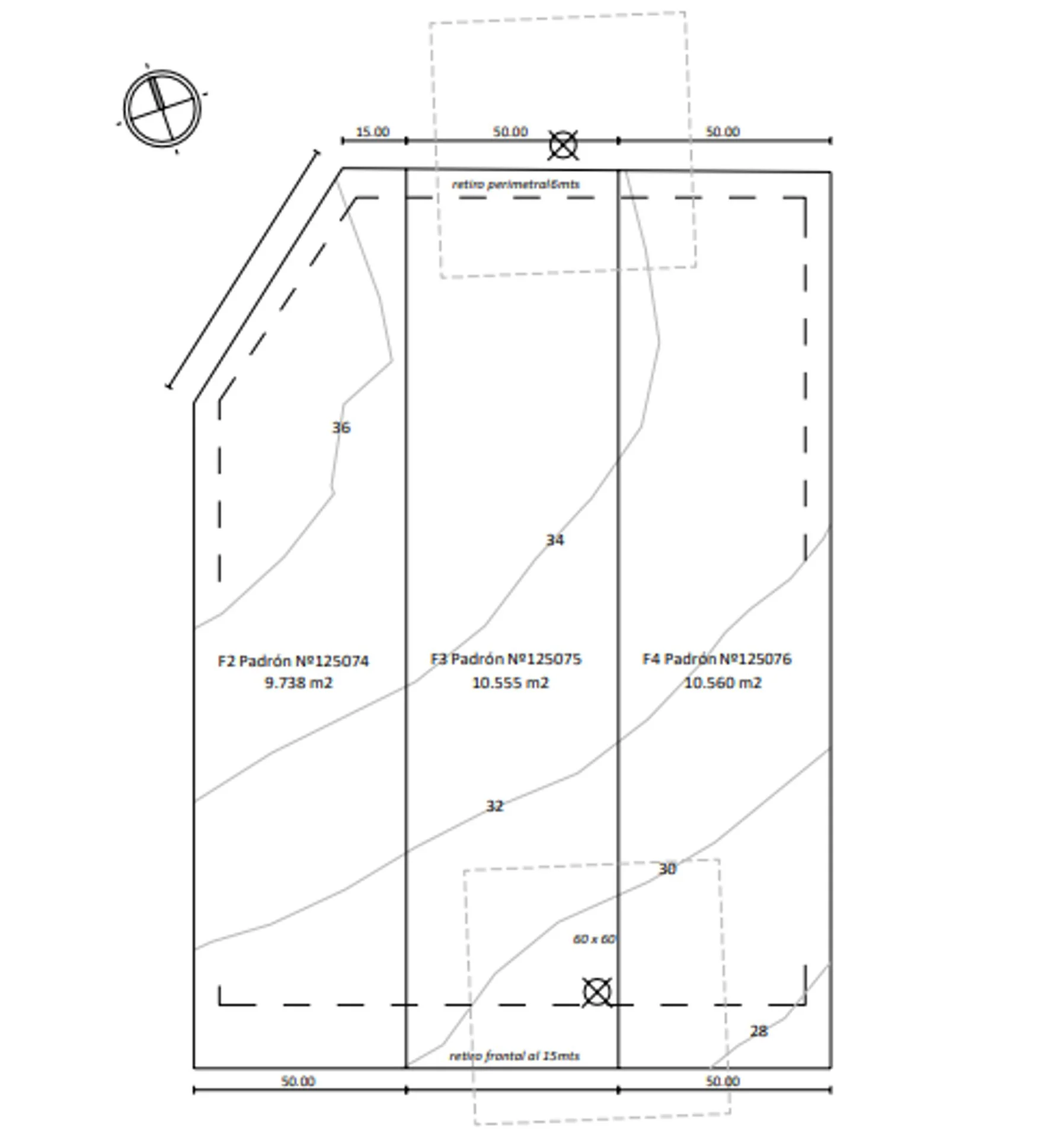
Ubicados en la calle Susana Pintos son 3 padrones con frente a los números 2700, 2746 y 2776.

Área total de los tres terrenos contiguos que suman 30853m2 de los cuales cada padrón consta de

1) 9738 m2.
2)10.555 m2.
3)10560 m2.

Se trata de un predio ubicado en zona donde se han implantado varios emprendimientos industriales y de logística, producto de la proximidad con la ciudad y sus conexiones de circulación.

El terreno es francamente alto con respecto a la calle y sus alrededores, tiene una servidumbre de línea de alta tensión en los planos.

Es una excelente oportunidad para desarrollo de proyectos inmobiliarios o depósitos de logística.

Comisión inmobiliaria 3%+IVA.
Cada Oficina es de propiedad, gestión y desarrollo independiente
La presente publicación describe las características esenciales del inmueble, debiéndose consultar al responsable de la operación por la eventual actualización de las medidas, descripciones arquitectónicas y funcionales, servicios, impuestos, precios y demás información, cuyos valores son aproximados.

Property details

ID

Category

Type

Area

Built Area

1267897

Land

Sale

30853

30853

Terrain

Rooms

Bathrooms

Code

Updated

308532

1

1

T26CA9

2025-10-05

Location

695к U$S

Location

Montevideo

Address

Punta Rieles, Susana Pintos 2700

Additional Actions

RE/MAX Focus
Similar object
Loading...
Earn money by referring colleagues!

Invite other real estate agents and earn 10% commission for every promotion they make.