Tres Cruces, Doctor Salvador Ferrer Serra 2200

U$S 420,000

U$S 1,203/m2

Bathrooms

1

Area

349

Category

Land

more than

2 months ago

Views

276

Venta Terreno Para Desarrollo, Tres Cruces

Corredor Responsable: -
Contacto: Nicolás Folle Delgado
Se vende padrón de 349m2 ubicado sobre Dr. Salvador Ferrer Serra. Oportunidad estratégica en Tres Cruces, una de las zonas de mayor dinamismo residencial e inversión de Montevideo.

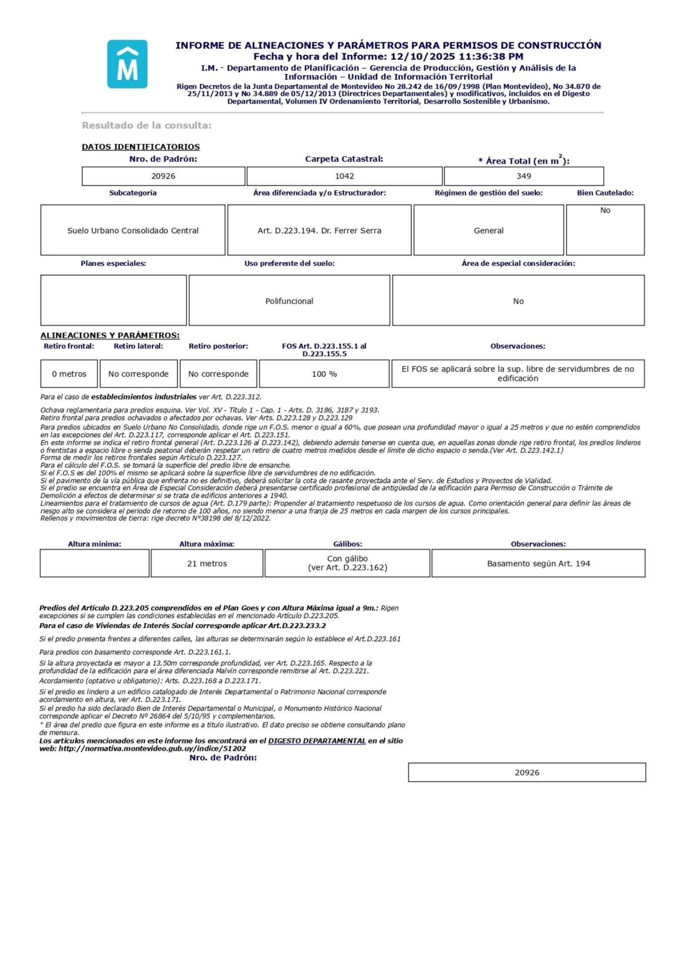
+ Informe de Alineaciones del padrón:

Número de padrón: 20926

Terreno: 349 m² / Construido: 153 m²

FOS (Factor de ocupación del suelo): 100 %

Frente: 9.52m / Profundidad: 36.83m

Retiro frontal: 0 m

Sin retiro lateral ni posterior

Altura máxima: 21 m + opción de gálibo

Oportunidad para inversores y desarrolladores:
Excelente ubicación, con conectividad de transporte, servicios, comercios y gran demanda de vivienda en altura.
Cada Oficina es de propiedad, gestión y desarrollo independiente
La presente publicación describe las características esenciales del inmueble, debiéndose consultar al responsable de la operación por la eventual actualización de las medidas, descripciones arquitectónicas y funcionales, servicios, impuestos, precios y demás información, cuyos valores son aproximados.

Property details

ID

Category

Type

Area

Terrain

1300588

Land

Sale

349

3492

Rooms

Bathrooms

Code

Updated

1

1

A559B1

2025-11-28

Location

420к U$S

Location

Montevideo

Address

Tres Cruces, Doctor Salvador Ferrer Serra 2200

Additional Actions

RE/MAX
099001901
Similar object
Loading...
Earn money by referring colleagues!

Invite other real estate agents and earn 10% commission for every promotion they make.