Parque Rodó, Juan D. Jackson 1100

U$S 530,000

$ ~21,200,000 / U$S 860/m2

Bathrooms

1

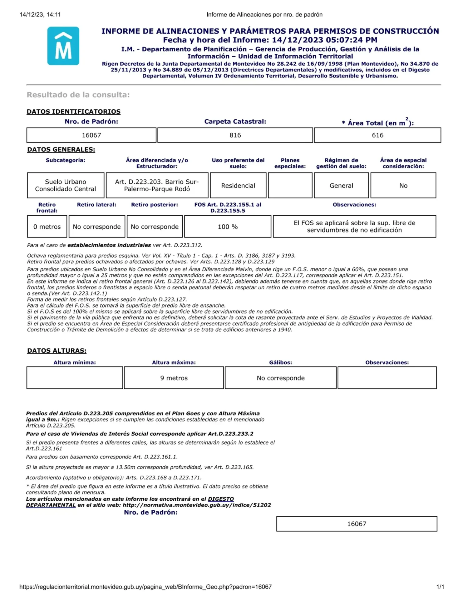
Area

616

Category

Land

more than

4 months ago

Views

274

Venta Terreno Para Desarrollo Parque Rodo

Corredor Responsable: -
Contacto: Victoria Escobal Dutra
VENTA TERRENO PARQUE RODO

IDEAL DESARROLLADORES.

FRENTE 13,65 MTS

FONDO 46,19 MTS


ALTURA MAXIMA 9 METROS.

SUPERFICIE CONSTRUIDA 753 M2

Se adjunta plano con relevamiento de superficie construida

COMISION INMOBILIARIA 3 % + IVA

COMPARTIMOS CON TODOS LOS COLEGAS.
Cada Oficina es de propiedad, gestión y desarrollo independiente
La presente publicación describe las características esenciales del inmueble, debiéndose consultar al responsable de la operación por la eventual actualización de las medidas, descripciones arquitectónicas y funcionales, servicios, impuestos, precios y demás información, cuyos valores son aproximados.

Property details

ID

Category

Type

Area

Built Area

1232113

Land

Sale

616

616

Terrain

Rooms

Bathrooms

Code

Updated

6162

1

1

L1D1E9

2025-09-09

Location

530к U$S

Location

Montevideo

Address

Parque Rodó, Juan D. Jackson 1100

Additional Actions

RE/MAX Focus
26 ...323
Similar object
Loading...
Earn money by referring colleagues!

Invite other real estate agents and earn 10% commission for every promotion they make.