1
1
56
2023
Apartment
2 weeks ago
53
Corredor Responsable:  - 
Contacto: Cristina Caulin
Bienvenido a Horus Art 3!
CON RENTA! 
Horus Art 3 es un proyecto que fusiona historia y modernidad, declarado Monumento Histórico y Bien de Interés Departamental. 
El proyecto cuenta con todos los beneficios tributarios y económicos comprendidos dentro de la Ley de Vivienda de Interés Social (N0 18.795)
Situado en la esquina de Soriano y Héctor Gutiérrez Ruiz, se compone de dos torres de 10 pisos, en una ubicación privilegiada con acceso a múltiples servicios y a solo pasos de la rambla sur de Montevideo.
Calidad de Construcción y diseño contemporaneo.
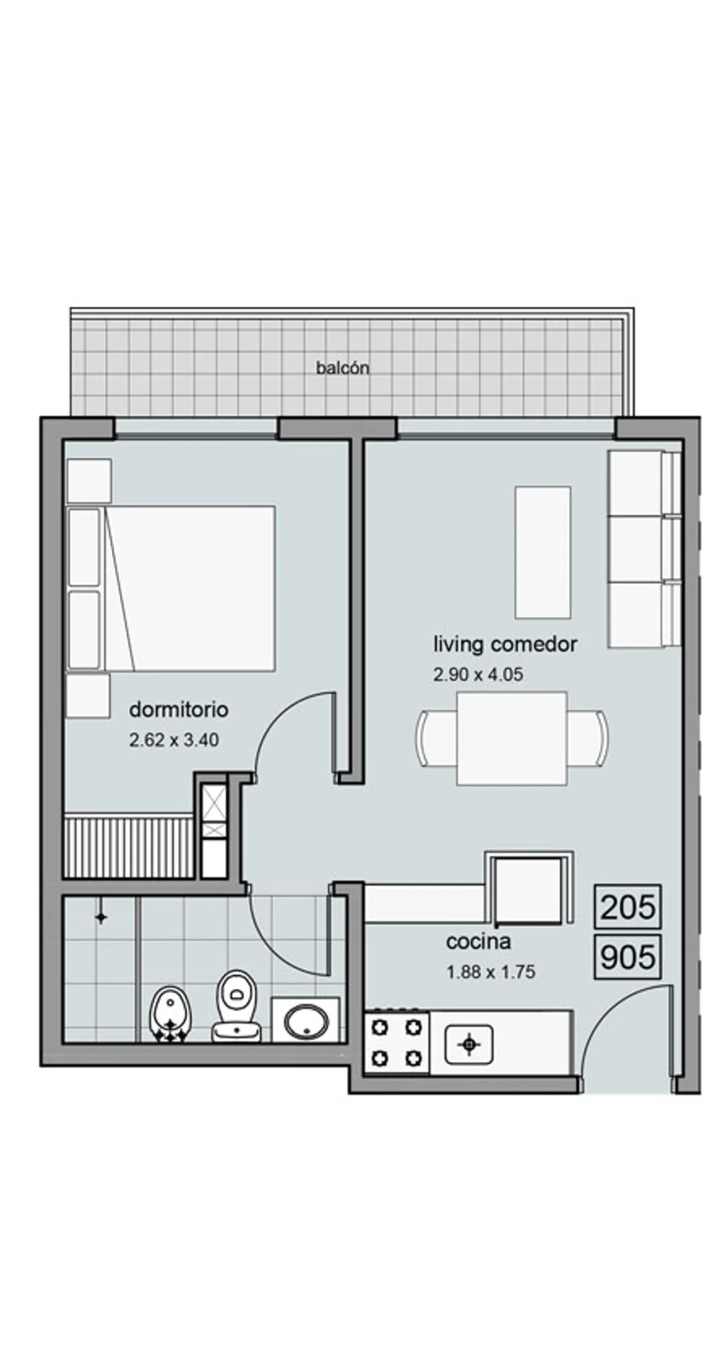
Cocina Integrada equipada con Anafe y Campana. Placares sobre y bajo mesada.
Baño Completo
Living Comedor - Pisos de vinílico
1 dormitorio con Placard empotrado
Todas las aberturas son de aluminio y DVH (Doble Vidrio Hermético) 
Conexión para aire acondicionado
Superficie propia 35.43 m2
Superficie balcón 5.18
Superficie espacios  comunes 15.37 m2
Metros totales 55.98
Garajes opcionales  U$S 20,000.-
Conexiones 4%
AGENDÁ YA TU VISITA!
Cada Oficina es de propiedad, gestión y desarrollo independiente
La presente publicación describe las características esenciales del inmueble, debiéndose consultar al responsable de la operación por la eventual actualización de las medidas, descripciones arquitectónicas y funcionales, servicios, impuestos, precios y demás información, cuyos valores son aproximados.
ID
Category
Type
Area
Built Area
Rooms
1283345
Apartment
Sale
56
56
2
Bathrooms
Bedrooms
Construction Year
Code
Updated
1
1
2023
Q8225C
2025-10-16
Location
Montevideo
Address
Centro, Soriano 1100
Invite other real estate agents and earn 10% commission for every promotion they make.
Code sent to
Select Promotion Option:
Cargando formulario de pago...
© Real Estate Evolution, 2023-2025
