Ciudad Vieja, Bartolome Mitre Al 1400

U$S 830,000

$ ~33,200,000 / U$S 1,660/m2

Bathrooms

3

Garage

5

Area

500

Construction Year

1980

Category

Office

more than

6 months ago

Views

825

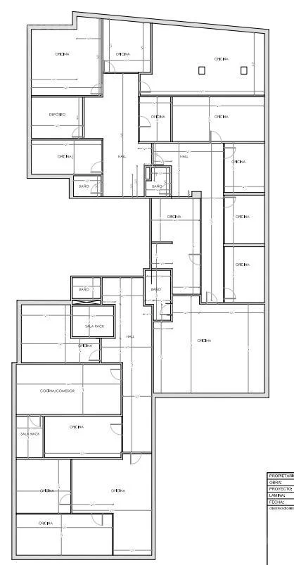
Venta De Piso Completo Y 5 Garajes En Ciudad Vieja

Venta de Propiedad Horizontal – Oficina en 2do Piso
Precio Total: USD 830,000 | Precio por Mitad: USD 435,000

Excelente propiedad en una de las mejores ubicaciones dentro del núcleo comercial. Oficina en propiedad horizontal ubicada en el 2do piso de un edificio con 15 unidades. Ideal para alquilar por separado o para una multinacional, con una distribución que asegura una excelente rentabilidad.

Características:

*4 baños
*Cocina
*Sala de conferencias de uso común
*5 cocheras exclusivas
*Pisos flotantes en todas las oficinas
*Oficinas separadas con mamparas de vidrio y metal
*Divisiones listas para venta, marcadas por agrimensor y arquitecto

Ubicación:

*Barrio comercial con gran oferta de comercios
*Excelente acceso a transporte colectivo
*A pasos del puerto

La propiedad se ofrece en su totalidad o por mitades, con una rentabilidad distribuida de forma equilibrada en ambas partes. Permuta por propiedad de menor valor también disponible.

¡Una excelente oportunidad de inversión con altos rendimientos!
COF7180082
.

Property details

ID

Category

Type

Area

Built Area

Terrain

1194933

Office

Sale

500

480

5002

Rooms

Bathrooms

Garage

Construction Year

Code

Updated

1

3

5

1980

AB6978

2025-08-26

Location

830к U$S

Location

Montevideo

Address

Ciudad Vieja, Bartolome Mitre Al 1400

Amenities

WiFi

Cable TV Installation

Air Conditioning

Additional Actions

COVELLO INTERNATIONAL
+59...062
598...062
Similar object
Loading...
Earn money by referring colleagues!

Invite other real estate agents and earn 10% commission for every promotion they make.