Pocitos, Doctor Enrique Muñoz 900

U$S 42,000

$ ~1,690,000 / U$S 2,100/m2

Bathrooms

1

Area

20

Construction Year

2022

Category

Special business

more than

1 week ago

Views

45

Venta De Cochera Amplia A Metros De Ort, Pocitos.

Corredor Responsable: -
Contacto: Gabriela Sierra
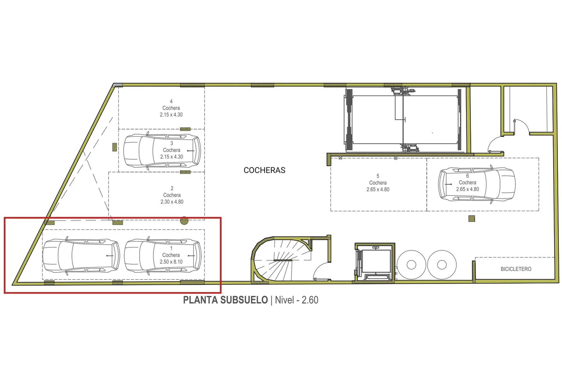
Venta de cochera en un punto de gran demanda en el barrio de Pocitos. Ubicado en el edificio Yass Pocitos sobre la calle Enrique Muñoz. Zona de colegios y Universidades, con alta demanda de estacionamientos.

Cochera ubicada en el subsuelo del edificio. El acceso a la misma es través del portón exterior del edificio y cuenta con un ascensor montacargas que conecta con los distintos niveles de estacionamiento.

Dimensiones: 2.5 x 8.10

Gastos comunes: $ 3.390
Tributos domiciliarios bimensuales: $ 1.558
Contribución anual: $ 1600

Consulte por bauleras disponibles.
Cada Oficina es de propiedad, gestión y desarrollo independiente
La presente publicación describe las características esenciales del inmueble, debiéndose consultar al responsable de la operación por la eventual actualización de las medidas, descripciones arquitectónicas y funcionales, servicios, impuestos, precios y demás información, cuyos valores son aproximados.

Property details

ID

Category

Type

Area

Built Area

1470627

Special business

Sale

20

20

Rooms

Bathrooms

Construction Year

Code

Updated

1

1

2022

D4B53F

2026-04-07

Location

42к U$S

Location

Montevideo

Address

Pocitos, Doctor Enrique Muñoz 900

Additional Actions

RE/MAX
098...909
598...909
Similar object
Loading...
Earn money by referring colleagues!

Invite other real estate agents and earn 10% commission for every promotion they make.