Pocitos, Doctor Enrique Muñoz 900

U$S 30,000

Bathrooms

1

Area

9

Construction Year

2022

Category

Special business

more than

1 month ago

Views

204

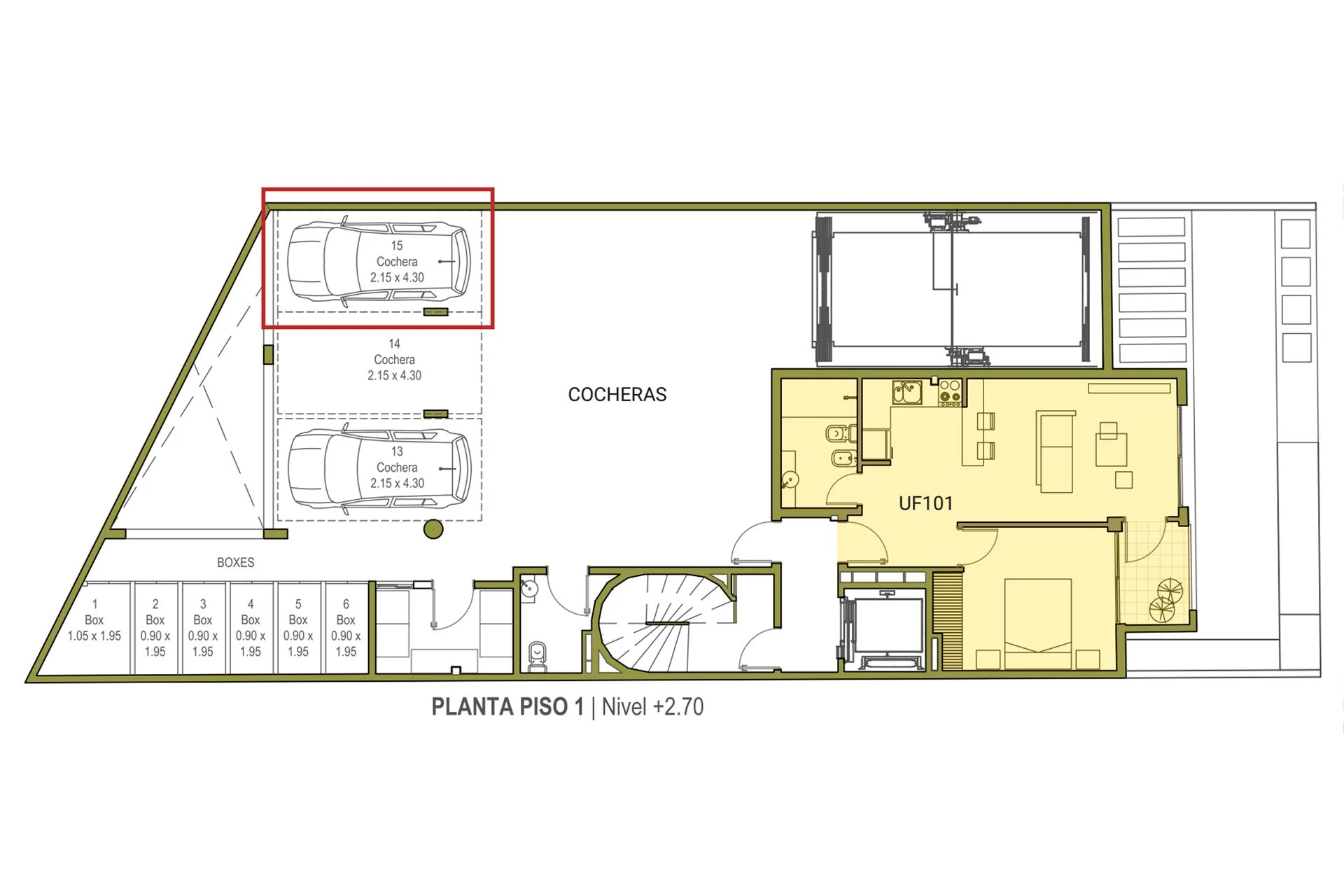
Venta De Cochera A Metros De La Ort, Pocitos.

Corredor Responsable: -
Contacto: Gabriela Sierra
Venta de cochera en un punto de gran demanda en el barrio de Pocitos. 

Ubicado en el edificio Yass Pocitos sobre la calle Enrique Muñoz. Zona de colegios y Universidades, con alta demanda de estacionamientos.

Cochera ubicada en el primer piso, de muy fácil acceso. El acceso a la misma es través del portón exterior del edificio y cuenta con un ascensor montacargas que conecta con los distintos niveles de estacionamiento. Esta unidad de cochera se encuentra de frente saliendo del ascensor.

Dimensiones: 2.15 x 4.30m

Gastos comunes $ 1526
Tributos domiciliarios bimensuales: $ 1558
Contribución anual $1500

Consulte por bauleras disponibles.

Cada Oficina es de propiedad, gestión y desarrollo independiente
La presente publicación describe las características esenciales del inmueble, debiéndose consultar al responsable de la operación por la eventual actualización de las medidas, descripciones arquitectónicas y funcionales, servicios, impuestos, precios y demás información, cuyos valores son aproximados.

Property details

ID

Category

Type

Area

Built Area

1338118

Special business

Rent

9

9

Rooms

Bathrooms

Construction Year

Code

Updated

1

1

2022

Z9B8D0

2025-12-04

Location

30к U$S

Location

Montevideo

Address

Pocitos, Doctor Enrique Muñoz 900

Additional Actions

RE/MAX
099001901
Similar object
Loading...
Earn money by referring colleagues!

Invite other real estate agents and earn 10% commission for every promotion they make.