Carrasco Norte, Capri 2200

U$S 230,000

$ ~9,340,000 / U$S 2,840/m2

Bedrooms

2

Bathrooms

1

Garage

1

Area

81

Construction Year

2026

Category

Home

more than

4 weeks ago

Views

77

Venta Casa 2d Cochera Jardin Carrasco Norte - Pozo

Corredor Responsable: -
Contacto: Maria Florencia Fertitta
PLAZA CAPRI HOUSING - ESTRENA DICIEMBRE 2026

Ubicado frente a la plaza Capri, en una de las zonas con mayor crecimiento y valorización de Montevideo, ofrece el equilibrio ideal entre tranquilidad, conectividad y entorno natural.

El proyecto destaca por sus ambientes luminosos, excelente calidad de terminaciones y una distribución pensada para aprovechar cada metro con funcionalidad y estilo.
Cada unidad cuenta con espacios de guardado ampliados, parrillero propio, cochera con box adicional y previsión para cargador de auto eléctrico, reflejando una propuesta moderna, eficiente y adaptada al estilo de vida actual.

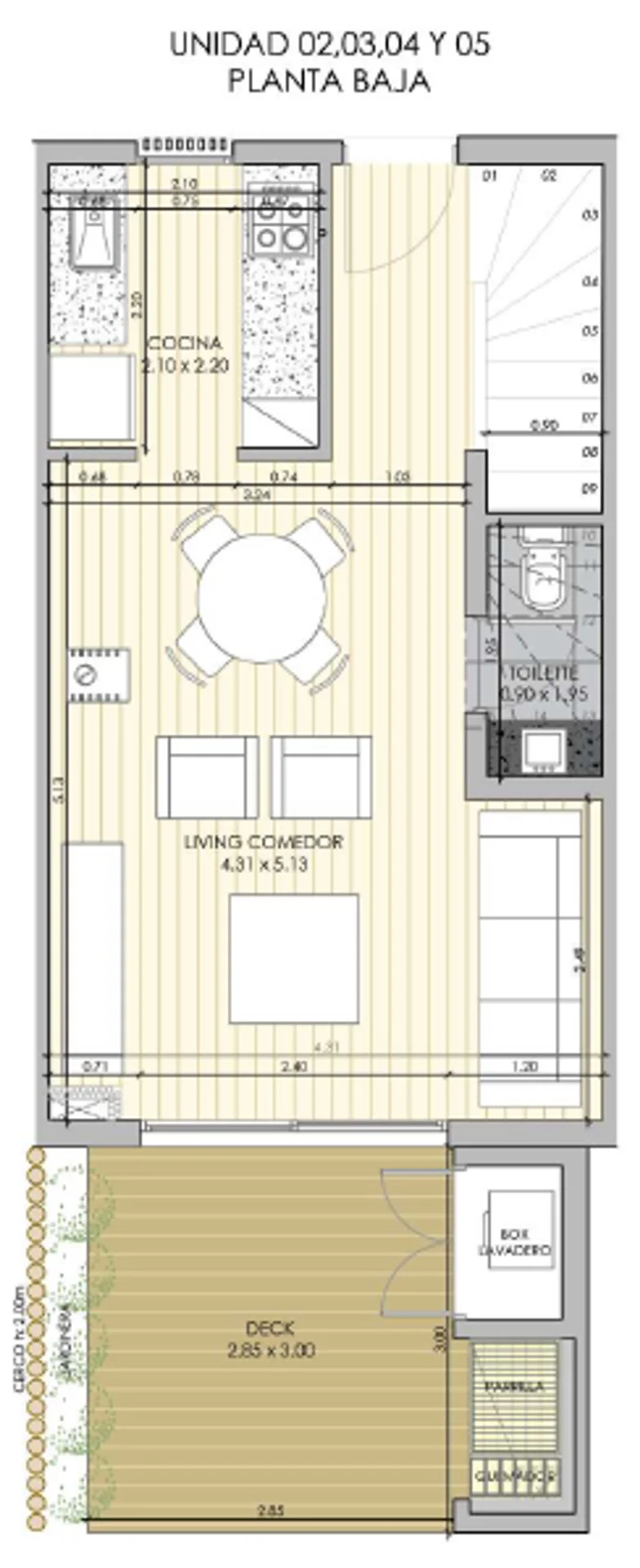
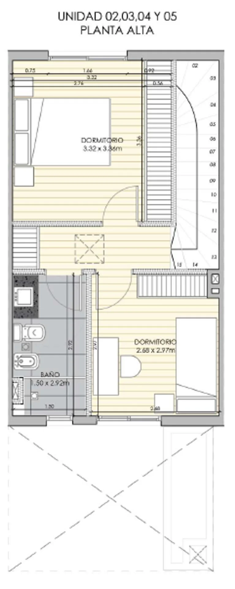
UNIDADES 002, 003, 005
2 baños completos
Living-comedor con estufa de alto rendimiento
Cocina integrada con horno, anafe y campana incluidos
Patio con deck y parrillero
Box exterior + segundo box en cochera
Cochera individual con acceso propio
Previsión para aire acondicionado en dormitorios y estar
Cortinas de enrollar eléctricas en dormitorio principal
Aberturas de aluminio negro con DVH (doble vidriado hermético)
Pisos vinílicos símil madera y porcelanatos en baños

Ideal para familias, parejas o quienes buscan calidad de vida y valorización futura.

Forma de Pago
10% reserva
20% promesa
60% en etapas de avance de obra
10% contra entrega

Gastos de ocupación: 3%

Cada Oficina es de propiedad, gestión y desarrollo independiente
La presente publicación describe las características esenciales del inmueble, debiéndose consultar al responsable de la operación por la eventual actualización de las medidas, descripciones arquitectónicas y funcionales, servicios, impuestos, precios y demás información, cuyos valores son aproximados.

Property details

ID

Category

Type

Area

Built Area

Terrain

Rooms

1426240

Home

Sale

81

70

812

3

Bathrooms

Bedrooms

Garage

Construction Year

Code

Updated

1

2

1

2026

WEBF22

2026-03-04

Location

230к U$S

Location

Montevideo

Address

Carrasco Norte, Capri 2200

Additional Actions

RE/MAX
099001901
Similar object
Loading...
Earn money by referring colleagues!

Invite other real estate agents and earn 10% commission for every promotion they make.